4-Bedroom, 3581 Sq Ft Craftsman Plan with Guest Room

Front elevation of Craftsman home (ThePlanCollection: House Plan #213-1008)

Images/Plans copyrighted by designer. Photos may reflect homeowner modifications.

About House Plan #213-1008

Sq Ft
3581
Sq Ft
Bedrooms
4
Bedrooms
Bathroom
4
Baths
Half Baths
1
Half Baths
Bedrooms
3
Cars
Bedrooms
2
Stories
Bedrooms
102' 4'
Width
Bedrooms
62
Depth
Starting at$1400.00What's included
STEP 1Bedrooms
STEP 2Bedrooms
STEP 3Bedrooms

Subtotal:$0
Plan Collection

How much will it cost to build?

Estimate your costs based on your location and materials.

Free Cost Instant Estimator

Floor Plans

Floor Plan First Story
Floor Plan First Story
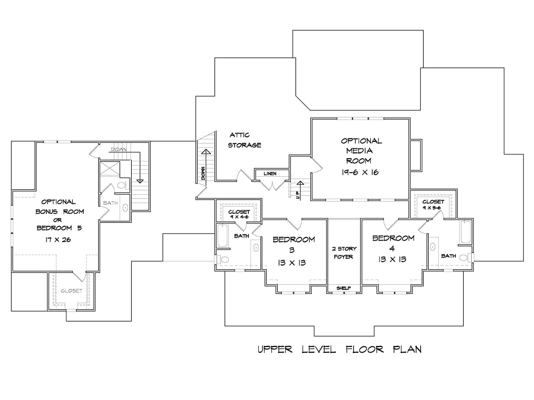
Floor Plan Second Story
Floor Plan Second Story
Plan Collection

Can I modify this plan?

Yes! This plan can be customized—contact us for a free quote.

Additional Notes from Designer

Alternative foundations for this plan are available as a modification. Please complete and submit our "Modify this Plan" form to get a free quote.

House Plan Description

This beautiful Modern home with Craftsman touches is 3,581 square feet with 4 bedrooms, 4.5 baths, and a 3-car garage. In this remarkable home, you will find:

  • Family Room
  • Dining Room
  • Mudroom
  • Walk-in Pantry
  • Guest Room
  • Master Bedroom with Walk-in Closet
  • Attic
  • Optional Bedroom
  • Optional Media Room

Home Details

Summary
Plan #:213-1008
Starting at:$1400.00
Floors:2
Bedrooms:4
Full Baths:4
Half Baths:1
Garage:
Square Footage
Heated Area:3581 Sq. Ft.
First Floor:2673 Sq. Ft.
Second Floor:908 Sq. Ft.
Unheated Area:
Second Floor:1018 Sq. Ft.
Dimensions
Width:102' 4''
Depth:62' 8''
Architectural Styles
Exterior Wall Material
Vinyl SidingBrickWood SidingShakes
Roofing Type
Gable/Dormer
Roofing Material
Asphalt ShinglesMetal
Roof Pitch
12/1210/12
Ceiling Height
9 Foot Ceiling
Special Feature
FireplaceDining RoomGuest RoomMud RoomBonus RoomFamily RoomMain Level LaundrySplit BathroomStorageVaulted CeilingsOpen Floor Plan
Garage Type
Attached GarageCourtyard Entry
Fireplaces
Two Fireplaces
Exterior Wall Framing
2x4
Building Lot Type
Flat Site
Kitchen Features
Kitchen IslandNook/Breakfast AreaWalk-in Pantry
Porches and Exterior Features
Wrap Around PorchCovered Rear Patio
Master Suite Features
Main Floor MasterMaster BathroomWalk In Closet

What’s Included

Most plan sets include the following:

What’s Not Included

These items are  NOT included:

Related House Plans

Plan Collection
Plan Collection
Plan Collection
Plan#180-1020
Starting at$1800
4304
Sq Ft
2
Story
4
Bed
4.5
Bath
3
Car
Plan Collection
Plan Collection
Plan Collection
Plan#106-1292
Starting at$1695
3302
Sq Ft
2
Story
4
Bed
4.5
Bath
5
Car
Plan Collection
Plan Collection
Plan Collection
Plan#106-1167
Starting at$1695
4140
Sq Ft
2
Story
4
Bed
4.5
Bath
3
Car
View All

Other Plans By This Designer

Plan Collection
Plan Collection
Plan Collection
Plan#213-1004
Starting at$1400
3061
Sq Ft
1
Story
3
Bed
3.5
Bath
3
Car
Plan Collection
Plan Collection
Plan Collection
Plan#213-1009
Starting at$1400
3277
Sq Ft
2
Story
4
Bed
4.5
Bath
3
Car
Plan Collection
Plan Collection
Plan Collection
Plan#213-1019
Starting at$1400
3990
Sq Ft
1
Story
4
Bed
4.5
Bath
3
Car