3-Bedroom, 3381 Sq Ft European Plan with Walk-in Pantry

Front view of European home (ThePlanCollection: House Plan #146-1402)

Images/Plans copyrighted by designer. Photos may reflect homeowner modifications.

About House Plan #146-1402

Sq Ft
3381
Sq Ft
Bedrooms
3
Bedrooms
Bathroom
2
Baths
Half Baths
1
Half Baths
Bedrooms
3
Cars
Bedrooms
1
Stories
Bedrooms
84' 0'
Width
Bedrooms
88
Depth
Starting at$1213.25What's included
STEP 1Bedrooms
STEP 2Bedrooms
STEP 3Bedrooms

Subtotal:$0
Plan Collection

How much will it cost to build?

Estimate your costs based on your location and materials.

Free Cost Instant Estimator

Floor Plans

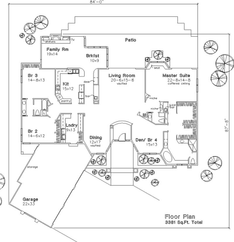
Floor Plan First Story
Floor Plan First Story
Plan Collection

Can I modify this plan?

Yes! This plan can be customized—contact us for a free quote.

House Plan Description

This European-style home boasts elegant exterior detailing in stucco banding that reflects interior features that are fit for a king. The dramatic entry court features a raised roof and a Palladian window. The central living spaces offer vaulted ceilings and expansive windows. The front-facing den accesses the living room and the master suite and could serve equally well as a fourth bedroom. The glassed-in breakfast room overlooks the rear patio and opens to a spacious kitchen and a cozy family room. A wet bar is centrally located. A sunny sitting area, a handy juice bar and a luxurious bath...

Home Details

Summary
Plan #:146-1402
Starting at:$1213.25
Floors:1
Bedrooms:3
Full Baths:2
Half Baths:1
Garage:
Square Footage
Heated Area:3381 Sq. Ft.
First Floor:3381 Sq. Ft.
Unheated Area:
Dimensions
Architectural Styles
Exterior Wall Material
Stucco
Roofing Type
Hip
Roofing Material
Asphalt Shingles
Special Feature
FireplaceDining RoomMud RoomFamily RoomMain Level LaundrySplit BathroomDenVaulted Ceilings
Garage Type
Attached GarageCourtyard Entry
Fireplaces
One Fireplace
Exterior Wall Framing
2x6
Building Lot Type
Flat Site
Kitchen Features
Nook/Breakfast AreaWalk-in PantryPeninsula/Eating BarEat-In Kitchen
Porches and Exterior Features
CourtyardCovered Front PorchSundeck
Master Suite Features
Main Floor MasterMaster BathroomWalk In ClosetSitting Area

What’s Included

Most plan sets include the following:

What’s Not Included

These items are  NOT included:

icon text-secondary-400 includedArchitectural or Engineering Stamp - handled locally if required.

icon text-secondary-400 includedSite Plan - handled locally when required.

icon text-secondary-400 includedMechanical Drawings (location of heating and air equipment and ductwork) - your subcontractors handle this.

icon text-secondary-400 includedPlumbing Drawings (drawings showing the actual plumbing pipe sizes and locations) - your subcontractors handle this.

icon text-secondary-400 includedEnergy calculations - handled locally when required.

Related House Plans

Plan Collection
Plan Collection
Plan Collection
Plan#142-1209
Starting at$1395
2854
Sq Ft
1
Story
3
Bed
2
Bath
3
Car
Plan Collection
Plan Collection
Plan Collection
Plan#117-1126
Starting at$1345
2662
Sq Ft
1
Story
3
Bed
2.5
Bath
3
Car
Plan Collection
Plan Collection
Plan Collection
Plan#153-2032
Starting at$1850
2879
Sq Ft
1
Story
3
Bed
2.5
Bath
3
Car
View All

Other Plans By This Designer

Plan Collection
Plan Collection
Plan Collection
Plan#146-2806
Starting at$980
1933
Sq Ft
2
Story
3
Bed
2
Bath
0
Car
Plan Collection
Plan Collection
Plan Collection
Plan#146-2810
Starting at$1285
3594
Sq Ft
2
Story
4
Bed
3.5
Bath
2
Car
Plan Collection
Plan Collection
Plan Collection
Plan#146-1917
Starting at$1120
2525
Sq Ft
2
Story
4
Bed
2.5
Bath
3
Car