4-Bedroom, 3337 Sq Ft Cottage Plan with Cathedral Ceilings

Cottage style luxury home (ThePlanCollection: Plan #198-1082)

Images/Plans copyrighted by designer. Photos may reflect homeowner modifications.

About House Plan #198-1082

Sq Ft
3337
Sq Ft
Bedrooms
4
Bedrooms
Bathroom
3
Baths
Half Baths
1
Half Baths
Bedrooms
3
Cars
Bedrooms
1.5
Stories
Bedrooms
71' 2'
Width
Bedrooms
68
Depth
Starting at$1945.00What's included
STEP 1Bedrooms
STEP 2Bedrooms
STEP 3Bedrooms

Subtotal:$0
Plan Collection

How much will it cost to build?

Estimate your costs based on your location and materials.

Free Cost Instant Estimator

Floor Plans

Floor Plan Main Level
Floor Plan Main Level
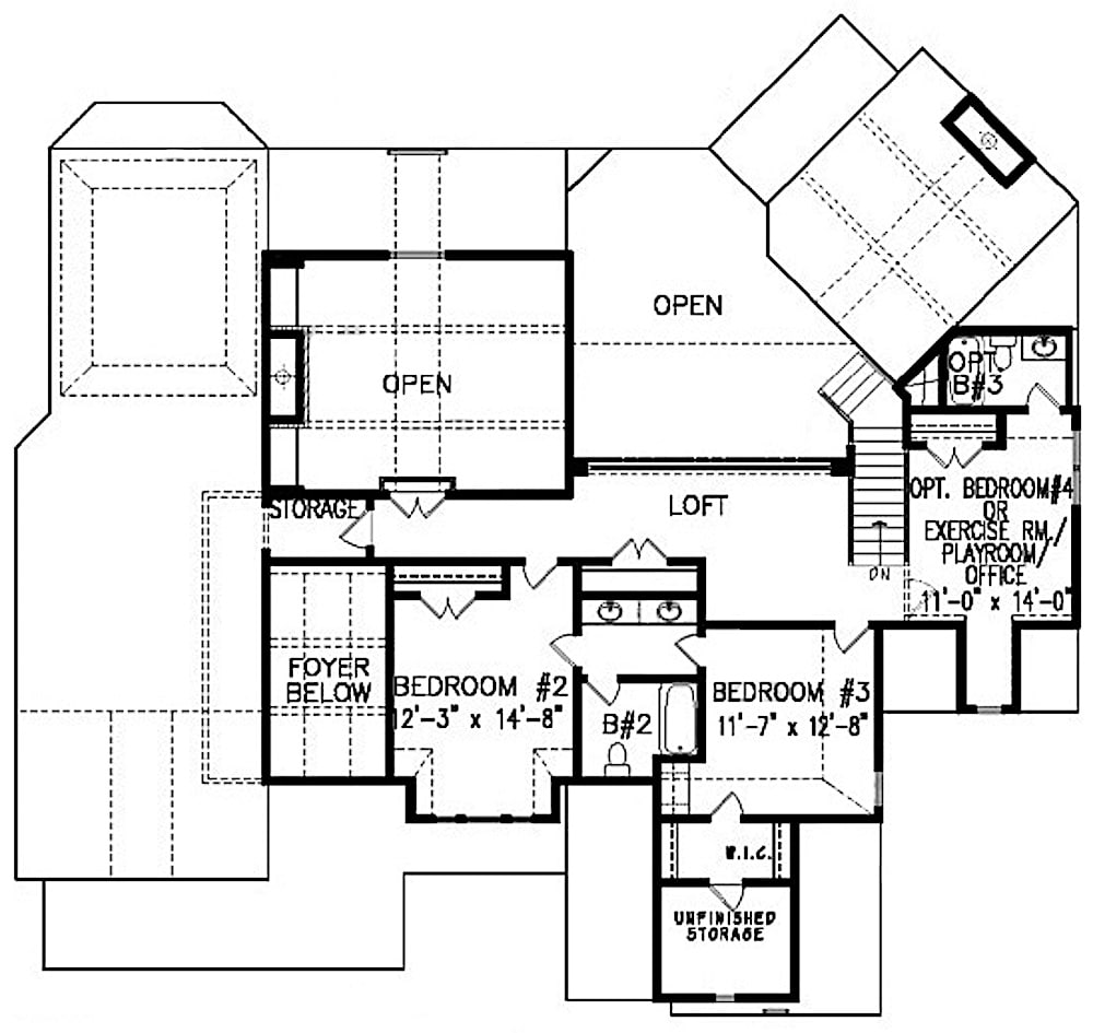
Floor Plan Upper Level
Floor Plan Upper Level
Plan Collection

Can I modify this plan?

Yes! This plan can be customized—contact us for a free quote.

Additional Notes from Designer

NO Material lists.

House Plan Description

Luxury was never more welcoming than in this charming Cottage style home with Southern influences. It all begins with the front porch, which spans the front of the house up to the garage. Enter the home, and you'll find a space that's designed for entertaining, from the dining room on the right to the grand room with fireplace, large kitchen with breakfast area, cozy keeping room with another fireplace, and two covered porches, one off the keeping room and one off the grand room. There's also a study/living room back at the front of the house with an optional (third)...

Home Details

Summary
Plan #:198-1082
Starting at:$1945.00
Floors:1.5
Bedrooms:4
Full Baths:3
Half Baths:1
Garage:
Square Footage
Heated Area:3337 Sq. Ft.
First Floor:2546 Sq. Ft.
Second Floor:791 Sq. Ft.
Unheated Area:
Dimensions
Width:71' 2''
Depth:68' 6''
Architectural Styles
Exterior Wall Material
Aluminum SidingRock/StoneWood Siding
Roofing Type
Gable
Roofing Material
Asphalt ShinglesMetal
Special Feature
FireplaceDining RoomHome OfficeFamily RoomMain Level LaundryLibraryColor PhotosLoftSplit BathroomStorageOpen Floor PlanInterior Photos
Garage Type
Attached GarageSide EntryFront Entry
Fireplaces
Three Fireplaces
Building Lot Type
Corner Lot
Kitchen Features
Kitchen IslandNook/Breakfast AreaWalk-in PantryPeninsula/Eating BarEat-In Kitchen
Porches and Exterior Features
Covered Front PorchCovered Rear Porch
Master Suite Features
Main Floor MasterMaster BathroomWalk In ClosetSplit Master Bedroom

What’s Included

Most plan sets include the following:

icon text-secondary-400 includedExterior elevations

icon text-secondary-400 includedFoundation plan

icon text-secondary-400 includedDetailed floor plans

icon text-secondary-400 includedInterior details

icon text-secondary-400 includedRoof plan

icon text-secondary-400 includedCross-section details

icon text-secondary-400 includedElectrical layout

What’s Not Included

These items are  NOT included:

icon text-secondary-400 includedArchitectural or Engineering Stamp - handled locally if required.

icon text-secondary-400 includedSite Plan - handled locally when required.

icon text-secondary-400 includedMechanical Drawings (location of heating and air equipment and ductwork) - your subcontractors handle this.

icon text-secondary-400 includedPlumbing Drawings (drawings showing the actual plumbing pipe sizes and locations) - your subcontractors handle this.

icon text-secondary-400 includedEnergy calculations - handled locally when required.

Related House Plans

Plan Collection
Plan Collection
Plan Collection
Plan#142-1185
Starting at$1395
2742
Sq Ft
1.5
Story
4
Bed
3.5
Bath
2
Car
Plan Collection
Plan Collection
Plan Collection
Plan#161-1001
Starting at$2200
3339
Sq Ft
1.5
Story
4
Bed
3.5
Bath
3
Car
Plan Collection
Plan Collection
Plan Collection
Plan#153-1990
Starting at$1850
3084
Sq Ft
1.5
Story
4
Bed
3.5
Bath
2
Car
View All

Other Plans By This Designer

Plan Collection
Plan Collection
Plan Collection
Plan#198-1053
Starting at$2195
2498
Sq Ft
1.5
Story
3
Bed
3
Bath
3
Car
Plan Collection
Plan Collection
Plan Collection
Plan#198-1054
Starting at$2630
4376
Sq Ft
2
Story
4
Bed
4.5
Bath
3
Car
Plan Collection
Plan Collection
Plan Collection
Plan#198-1060
Starting at$1985
3970
Sq Ft
2
Story
5
Bed
4.5
Bath
2
Car