6-Bedroom, 3310 Sq Ft Farmhouse Plan with His & Her Closets

Farmhouse home (ThePlanCollection: Plan #200-1079)

Images/Plans copyrighted by designer. Photos may reflect homeowner modifications.

About House Plan #200-1079

Sq Ft
3310
Sq Ft
Bedrooms
6
Bedrooms
Bathroom
3
Baths
Half Baths
0
Half Baths
Bedrooms
2
Cars
Bedrooms
2
Stories
Bedrooms
67' 10'
Width
Bedrooms
53
Depth
Starting at$1625.00What's included
STEP 1Bedrooms
STEP 2Bedrooms
STEP 3Bedrooms

Subtotal:$0
Plan Collection

How much will it cost to build?

Estimate your costs based on your location and materials.

Free Cost Instant Estimator

Floor Plans

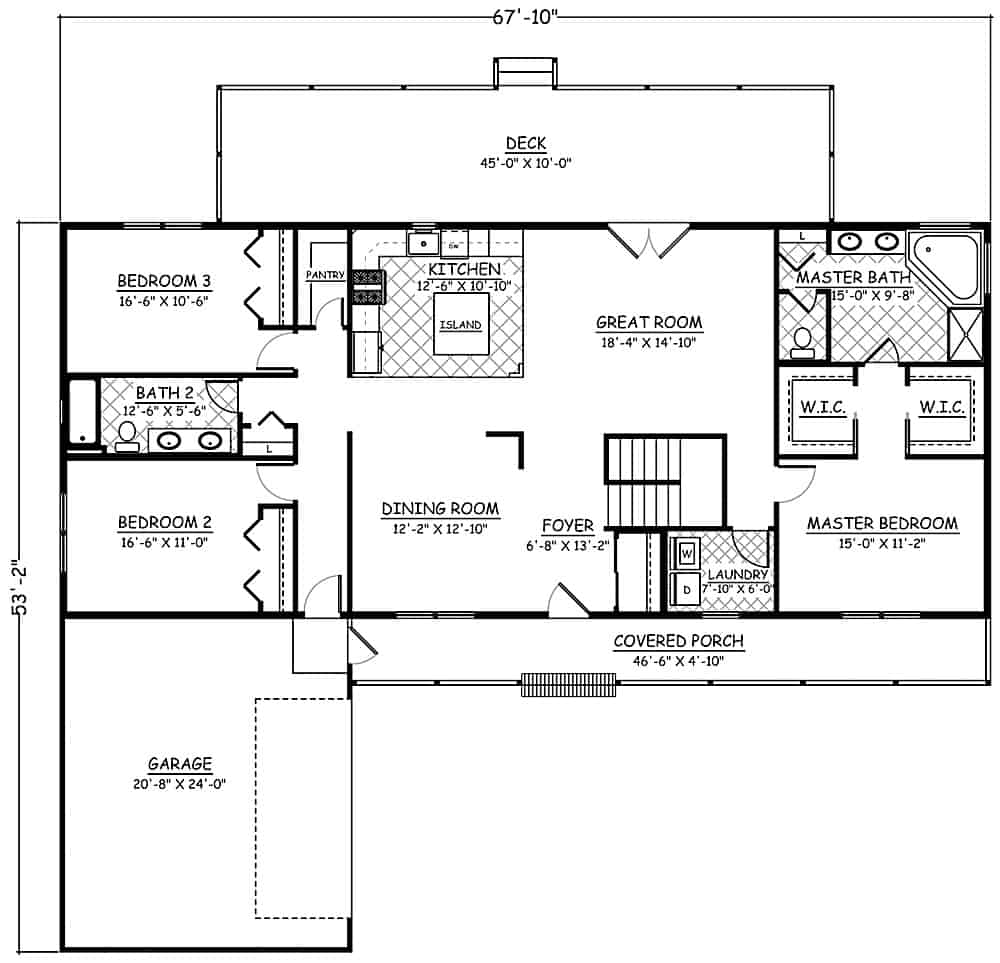
Floor Plan Main Level
Floor Plan Main Level
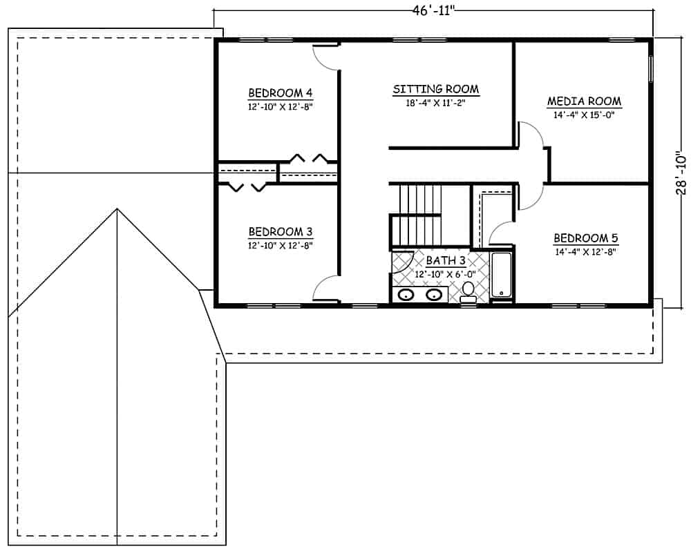
Floor Plan Upper Level
Floor Plan Upper Level
Plan Collection

Can I modify this plan?

Yes! This plan can be customized—contact us for a free quote.

House Plan Description

This Farmhouse style home has everything a homeowner could possibly desire – an impressive and great example of a well designed home that is spacious and inviting. The home has room for all members of the family to get away to a quite spot. An impressive covered porch embraces the house on its lengthy front facade. The striking 2-story floor plan has 3310 square feet of living space and includes 6 bedrooms and 3 full bathrooms.

Home Details

Summary
Plan #:200-1079
Starting at:$1625.00
Floors:2
Bedrooms:6
Full Baths:3
Half Baths:0
Garage:
Square Footage
Heated Area:3310 Sq. Ft.
First Floor:1957 Sq. Ft.
Second Floor:1353 Sq. Ft.
Unheated Area:
Garage:517 Sq. Ft.
Porch:677 Sq. Ft.
Dimensions
Width:67' 10''
Depth:53' 2''
Architectural Styles
Exterior Wall Material
Vinyl SidingBrickWood Siding
Roofing Type
Gable
Roofing Material
Asphalt Shingles
Roof Pitch
3/128/12
Ceiling Height
8 Foot Ceiling
Special Feature
Dining RoomFamily RoomMain Level LaundryMedia RoomDenOpen Floor PlanL-Shaped
Garage Type
Attached GarageCourtyard Entry
Exterior Wall Framing
2x6
Kitchen Features
Kitchen IslandWalk-in PantryPeninsula/Eating Bar
Porches and Exterior Features
Covered Front PorchSundeck
Master Suite Features
Main Floor MasterMaster BathroomWalk In ClosetSplit Master Bedroom

What’s Included

Most plan sets include the following:

icon text-secondary-400 includedColor Cover

icon text-secondary-400 includedFoundation Plan

icon text-secondary-400 includedMain Level Floor Plan

icon text-secondary-400 includedUpper Level Floor Plan (if applicable)

icon text-secondary-400 includedExterior Elevations

icon text-secondary-400 includedRoof Plan (Birdseye View)

icon text-secondary-400 includedBuilding Sections

icon text-secondary-400 includedConstruction Details

icon text-secondary-400 includedMain Level Structural Framing Plan

icon text-secondary-400 includedUpper Level Structural Framing Plan (if applicable)

icon text-secondary-400 includedCeiling Structural Framing Plan

icon text-secondary-400 includedRoof Structural Framing Plan

icon text-secondary-400 includedLighting Fixture and Outlet Plan

What’s Not Included

These items are  NOT included:

icon text-secondary-400 includedArchitectural or Engineering Stamp - handled locally if required.

icon text-secondary-400 includedSite Plan - handled locally when required.

icon text-secondary-400 includedMechanical Drawings (location of heating and air equipment and ductwork) - your subcontractors handle this.

icon text-secondary-400 includedPlumbing Drawings (drawings showing the actual plumbing pipe sizes and locations) - your subcontractors handle this.

icon text-secondary-400 includedEnergy calculations - handled locally when required.

Related House Plans

Plan Collection
Plan Collection
Plan Collection
Plan#108-1484
Starting at$1200
3759
Sq Ft
2
Story
6
Bed
3
Bath
3
Car
Plan Collection
Plan Collection
Plan Collection
Plan#120-2488
Starting at$1255
3322
Sq Ft
2
Story
6
Bed
3.5
Bath
3
Car
Plan Collection
Plan Collection
Plan Collection
Plan#145-1368
Starting at$1100
3198
Sq Ft
2
Story
6
Bed
3.5
Bath
3
Car
View All

Other Plans By This Designer

Plan Collection
Plan Collection
Plan Collection
Plan#200-1070
Starting at$1150
1293
Sq Ft
1
Story
3
Bed
2
Bath
0
Car
Plan Collection
Plan Collection
Plan Collection
Plan#200-1057
Starting at$1150
1381
Sq Ft
1
Story
3
Bed
2
Bath
0
Car
Plan Collection
Plan Collection
Plan Collection
Plan#200-1060
Starting at$1150
1400
Sq Ft
1
Story
3
Bed
2
Bath
0
Car