5-Bedroom, 3242 Sq Ft Country Plan with Kitchen Island

Front view of Country home (ThePlanCollection: House Plan #146-1889)

Images/Plans copyrighted by designer. Photos may reflect homeowner modifications.

About House Plan #146-1889

Sq Ft
3242
Sq Ft
Bedrooms
5
Bedrooms
Bathroom
2
Baths
Half Baths
1
Half Baths
Bedrooms
3
Cars
Bedrooms
2
Stories
Bedrooms
71' 0'
Width
Bedrooms
69
Depth
Starting at$1213.25What's included
STEP 1Bedrooms
STEP 2Bedrooms
STEP 3Bedrooms

Subtotal:$0
Plan Collection

How much will it cost to build?

Estimate your costs based on your location and materials.

Free Cost Instant Estimator

Floor Plans

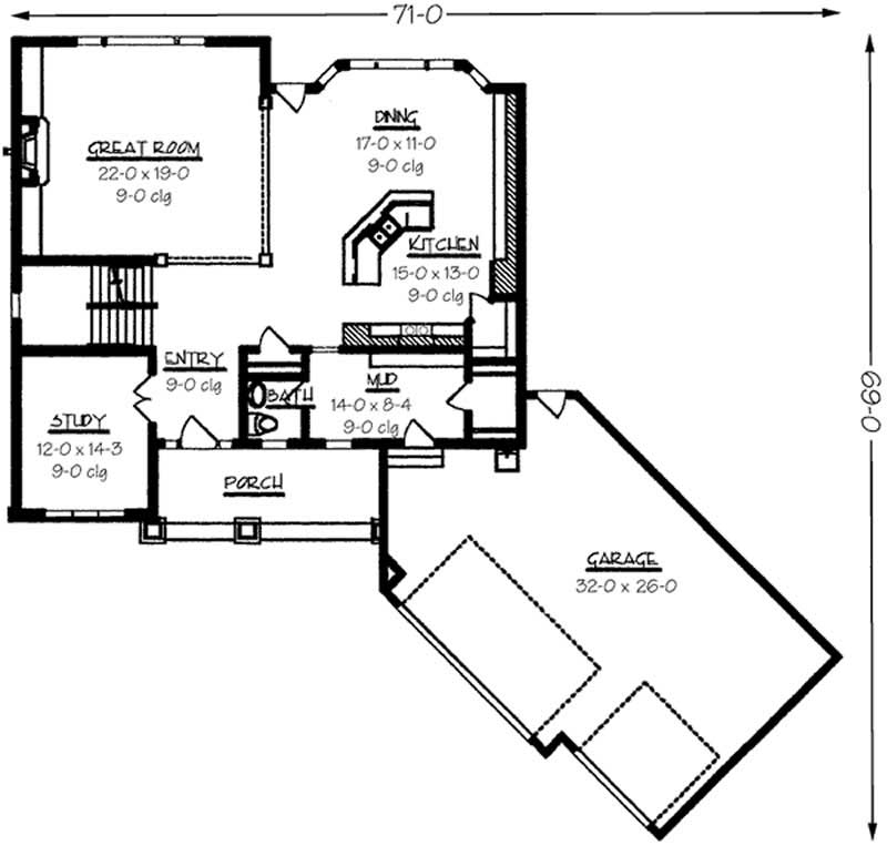
Main Level
Main Level
Upper Level
Upper Level
Plan Collection

Can I modify this plan?

Yes! This plan can be customized—contact us for a free quote.

House Plan Description

With a nod to the Craftsman and bungalow styles of a century ago, this home extends a pleasant facade to neighbors and passersby. Tapered columns introduce a breezy porch, which is perfect for relaxing with friends on summer evenings. Inside, the sidelighted entry offers double doors to a quiet study, which would make a great home office. Stately columns define the spacious Great Room, where a handsome fireplace adds a special ambience. The open kitchen provides an angled island and a handy corner pantry. Upstairs, the fabulous owner's suite hosts an oversized tub and a separate shower.

Home Details

Summary
Plan #:146-1889
Starting at:$1213.25
Floors:2
Bedrooms:5
Full Baths:2
Half Baths:1
Garage:
Square Footage
Heated Area:3242 Sq. Ft.
First Floor:1552 Sq. Ft.
Second Floor:1690 Sq. Ft.
Unheated Area:
Basement:1462 Sq. Ft.
Garage:813 Sq. Ft.
Dimensions
Ridge Height:32-0' 0''
Architectural Styles
Exterior Wall Material
Rock/StoneWood Siding
Roofing Type
Gable
Roof Pitch
9/12
Ceiling Height
9 Foot Ceiling
Special Feature
FireplaceHome OfficeColor Photos
Garage Type
Attached GarageFront Entry
Fireplaces
One Fireplace
Exterior Wall Framing
2x6

What’s Included

Most plan sets include the following:

What’s Not Included

These items are  NOT included:

icon text-secondary-400 includedArchitectural or Engineering Stamp - handled locally if required.

icon text-secondary-400 includedSite Plan - handled locally when required.

icon text-secondary-400 includedMechanical Drawings (location of heating and air equipment and ductwork) - your subcontractors handle this.

icon text-secondary-400 includedPlumbing Drawings (drawings showing the actual plumbing pipe sizes and locations) - your subcontractors handle this.

icon text-secondary-400 includedEnergy calculations - handled locally when required.

Related House Plans

Plan Collection
Plan Collection
Plan Collection
Plan#173-1007
Starting at$1300
3464
Sq Ft
2
Story
5
Bed
2.5
Bath
3
Car
Plan Collection
Plan Collection
Plan Collection
Plan#105-1068
Starting at$680
2658
Sq Ft
2
Story
5
Bed
2.5
Bath
3
Car
Plan Collection
Plan Collection
Plan Collection
Plan#173-1020
Starting at$1300
2599
Sq Ft
2
Story
5
Bed
2.5
Bath
2
Car
View All

Other Plans By This Designer

Plan Collection
Plan Collection
Plan Collection
Plan#146-2806
Starting at$980
1933
Sq Ft
2
Story
3
Bed
2
Bath
0
Car
Plan Collection
Plan Collection
Plan Collection
Plan#146-2810
Starting at$1285
3594
Sq Ft
2
Story
4
Bed
3.5
Bath
2
Car
Plan Collection
Plan Collection
Plan Collection
Plan#146-1917
Starting at$1120
2525
Sq Ft
2
Story
4
Bed
2.5
Bath
3
Car