4-Bedroom, 3192 Sq Ft Country Plan with Main Level Laundry

Country home plan (ThePlanCollection: House Plan #169-1153)

Images/Plans copyrighted by designer. Photos may reflect homeowner modifications.

About House Plan #169-1153

Sq Ft
3192
Sq Ft
Bedrooms
4
Bedrooms
Bathroom
3
Baths
Half Baths
1
Half Baths
Bedrooms
3
Cars
Bedrooms
2
Stories
Bedrooms
85' 0'
Width
Bedrooms
53
Depth
Starting at$1300.00What's included
STEP 1Bedrooms
STEP 2Bedrooms
STEP 3Bedrooms

Subtotal:$0
Plan Collection

How much will it cost to build?

Estimate your costs based on your location and materials.

Free Cost Instant Estimator

Floor Plans

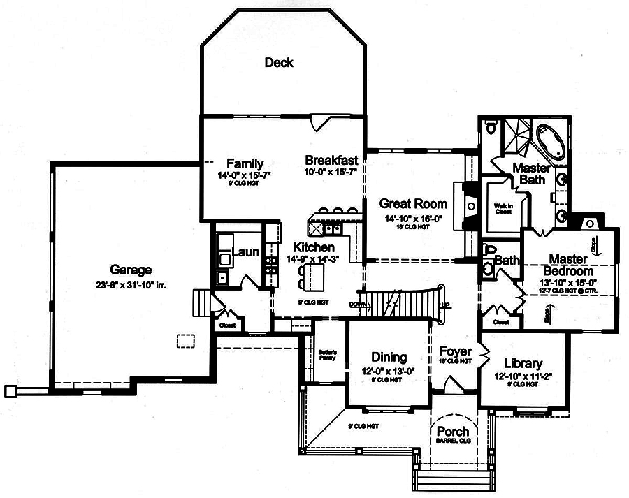
Floor Plan Main Level
Floor Plan Main Level
Floor Plan Basement
Floor Plan Basement
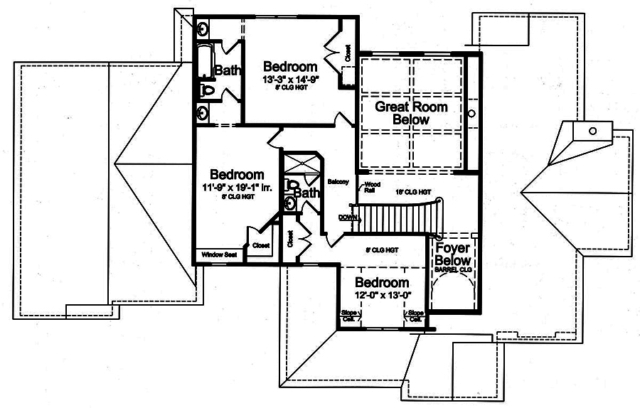
Floor Plan Upper Level
Floor Plan Upper Level
Plan Collection

Can I modify this plan?

Yes! This plan can be customized—contact us for a free quote.

Additional Notes from Designer

PLEASE NOTE: 5 sets and 8 sets include a PDF as well.

House Plan Description

This lovely Country style home plan with Traditional influences (House Plan #169-1153) has 3192 square feet of living space. The 2 story floor plan includes 4 bedrooms.

Home Details

Summary
Plan #:169-1153
Starting at:$1300.00
Floors:2
Bedrooms:4
Full Baths:3
Half Baths:1
Garage:
Square Footage
Heated Area:3192 Sq. Ft.
First Floor:2231 Sq. Ft.
Second Floor:961 Sq. Ft.
Unheated Area:
Basement:2231 Sq. Ft.
Garage:749 Sq. Ft.
Dimensions
Depth:53' 2''
Architectural Styles
Exterior Wall Material
Vinyl SidingRock/StoneWood SidingShakes
Roofing Type
GableHip
Roofing Material
Asphalt Shingles
Roof Pitch
12/128/12
Ceiling Height
9 Foot Ceiling8 Foot Ceiling
Special Feature
FireplaceDining RoomFamily RoomMain Level LaundryLibrarySplit BathroomBalconyOpen Floor Plan
Garage Type
Attached GarageSide Entry
Fireplaces
One Fireplace
Exterior Wall Framing
2x4
Building Lot Type
Corner Lot
Kitchen Features
Kitchen IslandButler's PantryNook/Breakfast AreaPeninsula/Eating BarEat-In Kitchen
Porches and Exterior Features
Covered Front PorchSundeck
Master Suite Features
Main Floor MasterMaster BathroomWalk In ClosetSplit Master Bedroom

What’s Included

Most plan sets include the following:

icon text-secondary-400 includedGeneral notes and specifications

icon text-secondary-400 includedFront, rear and side elevations (1/4" scale)

icon text-secondary-400 includedFoundation plan (1/4" scale) indicating beam and column sizes along with lower level framing

icon text-secondary-400 includedReinforced foundation and footing details

icon text-secondary-400 includedFirst floor plan (1/4" scale) includes all necessary framing information, window rough openings, beam sizes and framing details for specialized areas

icon text-secondary-400 includedStairs, sections, cabinet layouts, window flashing and miscellaneous details necessary for understanding of construction method

icon text-secondary-400 includedRoof plan (1/8" scale) indicating pitches and wall height as well as truss profiles indicating heel heights and raised ceiling areas

What’s Not Included

These items are  NOT included:

icon text-secondary-400 includedArchitectural or Engineering Stamp - handled locally if required.

icon text-secondary-400 includedSite Plan - handled locally when required.

icon text-secondary-400 includedMechanical Drawings (location of heating and air equipment and duct work) - your subcontractors handle this.

icon text-secondary-400 includedPlumbing Drawings (drawings showing the actual plumbing pipe sizes and locations) - your subcontractors handle this.

icon text-secondary-400 includedEnergy calculations - handled locally when required.

Related House Plans

Plan Collection
Plan Collection
Plan Collection
Plan#161-1067
Starting at$2400
3897
Sq Ft
2
Story
4
Bed
3.5
Bath
3
Car
Plan Collection
Plan Collection
Plan Collection
Plan#120-2176
Starting at$1255
3124
Sq Ft
2
Story
4
Bed
3.5
Bath
2
Car
Plan Collection
Plan Collection
Plan Collection
Plan#109-1191
Starting at$1495
2909
Sq Ft
2
Story
4
Bed
3.5
Bath
0
Car
View All

Other Plans By This Designer

Plan Collection
Plan Collection
Plan Collection
Plan#169-1146
Starting at$720
1664
Sq Ft
2
Story
3
Bed
2.5
Bath
2
Car
Plan Collection
Plan Collection
Plan Collection
Plan#169-1195
Starting at$720
1706
Sq Ft
1
Story
3
Bed
2
Bath
3
Car
Plan Collection
Plan Collection
Plan Collection
Plan#169-1055
Starting at$720
1791
Sq Ft
1
Story
3
Bed
2
Bath
1
Car