6-Bedroom, 3075 Sq Ft Country Plan with Walk In Closet

Front view of Country home (ThePlanCollection: House Plan #145-1009)

Images/Plans copyrighted by designer. Photos may reflect homeowner modifications.

About House Plan #145-1009

Sq Ft
3075
Sq Ft
Bedrooms
6
Bedrooms
Bathroom
4
Baths
Half Baths
0
Half Baths
Bedrooms
4
Cars
Bedrooms
2
Stories
Bedrooms
84' 5'
Width
Bedrooms
64
Depth
Starting at$1100.00What's included
STEP 1Bedrooms
STEP 2Bedrooms
STEP 3Bedrooms

Subtotal:$0
Plan Collection

How much will it cost to build?

Estimate your costs based on your location and materials.

Free Cost Instant Estimator

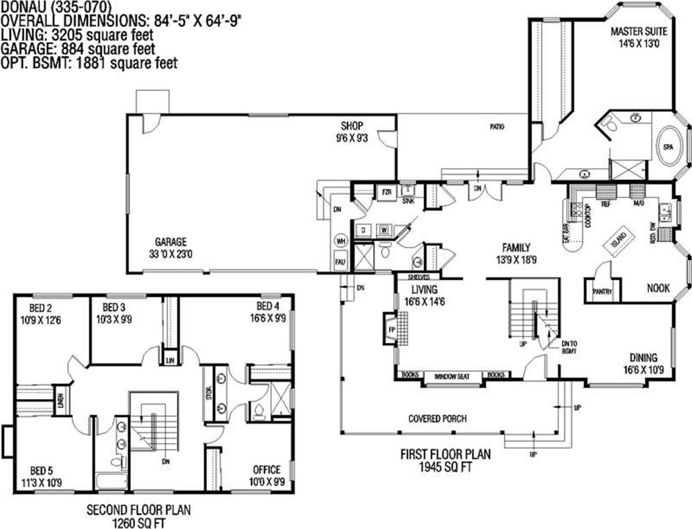
Floor Plans

First Floor
First Floor
Plan Collection

Can I modify this plan?

Yes! This plan can be customized—contact us for a free quote.

Additional Notes from Designer

NOTE: Due to a family emergency, NO modifications are available with this designer at this time. If you would like to purchase a CAD or Right Reading Reverse, please contact us for availability and price as not all plans are available in CAD or RRR.

House Plan Description

This beautiful country style home with traditional design attributes has 3075 square feet of living space. The two story floor plan includes 6 bedrooms.

Home Details

Summary
Plan #:145-1009
Starting at:$1100.00
Floors:2
Bedrooms:6
Full Baths:4
Half Baths:0
Garage:
Square Footage
Heated Area:3075 Sq. Ft.
First Floor:1815 Sq. Ft.
Second Floor:1260 Sq. Ft.
Unheated Area:
Garage:966 Sq. Ft.
Dimensions
Width:84' 5''
Depth:64' 9''
Ridge Height:29' 0''
Architectural Styles
Exterior Wall Material
Vinyl Siding
Roofing Type
Gable
Roofing Material
Asphalt Shingles
Roof Pitch
4/126/12
Ceiling Height
9 Foot Ceiling
Garage Type
Attached Garage
Exterior Wall Framing
2x6
Building Lot Type
Flat Site
Kitchen Features
Peninsula/Eating Bar
Porches and Exterior Features
Covered Front Porch

What’s Included

Most plan sets include the following:

icon text-secondary-400 includedFloor plans

icon text-secondary-400 includedFoundations

icon text-secondary-400 includedElevations

icon text-secondary-400 includedFraming

icon text-secondary-400 includedElectrical

icon text-secondary-400 includedRoofing

icon text-secondary-400 includedDetailed Construction Notes

What’s Not Included

These items are  NOT included:

icon text-secondary-400 includedArchitectural or Engineering Stamp - handled locally if required.

icon text-secondary-400 includedSite Plan - handled locally when required.

icon text-secondary-400 includedMechanical Drawings (location of heating and air equipment and ductwork) - your subcontractors handle this.

icon text-secondary-400 includedPlumbing Drawings (drawings showing the actual plumbing pipe sizes and locations) - your subcontractors handle this.

icon text-secondary-400 includedEnergy calculations - handled locally when required.

Related House Plans

Plan Collection
Plan Collection
Plan Collection
Plan#132-1308
Starting at$1245
2886
Sq Ft
2
Story
6
Bed
4
Bath
2
Car
Plan Collection
Plan Collection
Plan Collection
Plan#145-1801
Starting at$1100
3227
Sq Ft
2
Story
6
Bed
4
Bath
2
Car
Plan Collection
Plan Collection
Plan Collection
Plan#145-1383
Starting at$1100
3469
Sq Ft
2
Story
6
Bed
4
Bath
3
Car
View All

Other Plans By This Designer

Plan Collection
Plan Collection
Plan Collection
Plan#145-1555
Starting at$1000
2778
Sq Ft
1
Story
3
Bed
2.5
Bath
4
Car
Plan Collection
Plan Collection
Plan Collection
Plan#145-1442
Starting at$800
770
Sq Ft
1
Story
2
Bed
1
Bath
0
Car
Plan Collection
Plan Collection
Plan Collection
Plan#145-1200
Starting at$900
1746
Sq Ft
1
Story
3
Bed
2
Bath
2
Car