Contemporary Duplex Plan with Matching 3-Bedroom, 2-Bathroom Units per unit

Front elevation of Contemporary duplex home (ThePlanCollection: House Plan #108-2051)

Images/Plans copyrighted by designer. Photos may reflect homeowner modifications.

About House Plan #108-2051

Sq Ft
3054
Sq Ft
Bedrooms
6
Bedrooms
Bathroom
4
Baths
Half Baths
0
Half Baths
Bedrooms
4
Cars
Bedrooms
2
Stories
Bedrooms
72' 0'
Width
Bedrooms
47
Depth
Starting at$2200.00What's included
STEP 1Bedrooms
STEP 2Bedrooms
STEP 3Bedrooms

Subtotal:$0
Plan Collection

How much will it cost to build?

Estimate your costs based on your location and materials.

Free Cost Instant Estimator

Floor Plans

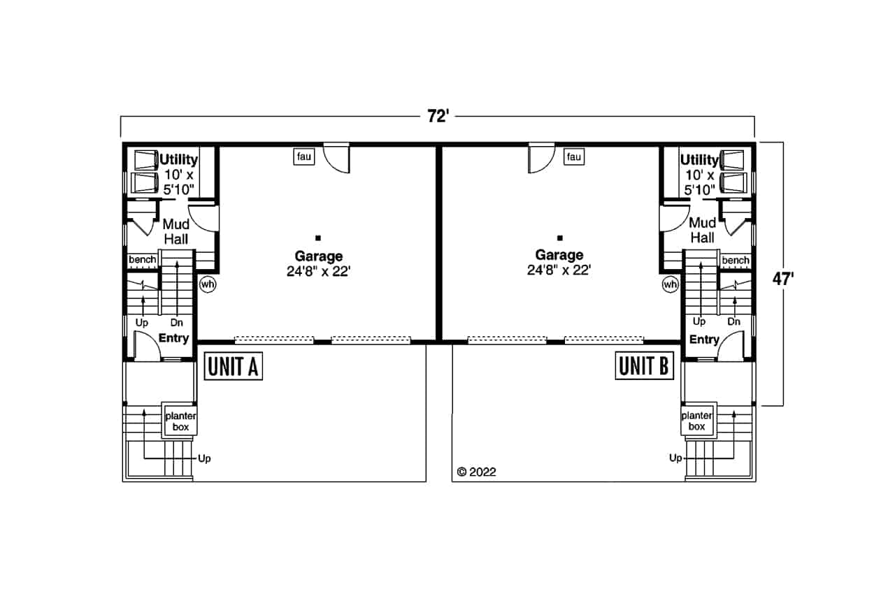
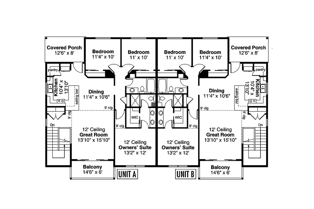
Main Level
Main Level
Basement
Basement
Plan Collection

Can I modify this plan?

Yes! This plan can be customized—contact us for a free quote.

Additional Notes from Designer

PLEASE NOTE!! For this designer, The PDF that comes with the PRINT Packages (5 set+PDF and 8 set+PDF) is NOT Modifiable - it is for printing ONLY! PLEASE NOTE!! Optional Foundations (foundations that cost extra money) will take 5-10 business days to complete.

This multi-family plan has two identical units. Each unit has 1527 living square feet, 3 bedrooms, 2 bathrooms, and 2 garage spaces.

House Plan Description

The remarkable feat of architectural design achievement is displayed by this 2-unit Contemporay-style home. With an excellent and sincere design, this house is perfect for any family! The 1-story floor plan has a total of 3054 living sq ft (1527 living sq ft per unit):

  • 3 bedrooms per unit
  • 2 full baths per unit
  • 2 garage spaces per unit
  • Open concept layout
  • Roomy walk-in kitchen pantry
  • Spacious utility room
  • Mudroom with a bench
  • Lots of storage space

Home Details

Summary
Plan #:108-2051
Starting at:$2200.00
Floors:2
Bedrooms:6
Full Baths:4
Half Baths:0
Garage:
Square Footage
Heated Area:3054 Sq. Ft.
Basement:500 Sq. Ft.
First Floor:2554 Sq. Ft.
Unheated Area:
Garage:1190 Sq. Ft.
Dimensions
Architectural Styles
Exterior Wall Material
Vinyl SidingStuccoWood Siding
Roofing Type
GableShed
Roofing Material
Asphalt Shingles
Roof Pitch
2/12
Ceiling Height
10 Foot Ceiling9 Foot Ceiling
Special Feature
Mud RoomMain Level LaundryStorageBalconyOpen Floor Plan
Garage Type
Attached GarageFront Entry
Exterior Wall Framing
2x6
Building Lot Type
View Lot
Kitchen Features
Walk-in PantryPeninsula/Eating Bar
Porches and Exterior Features
Covered Front PorchCovered Rear Porch
Master Suite Features
Main Floor MasterMaster BathroomWalk In Closet

What’s Included

Most plan sets include the following:

icon text-secondary-400 included Artist’s rendering of the home,

icon text-secondary-400 included Front/Rear/Left and Right Elevations,

icon text-secondary-400 included Main floor plan, Second or Basement floor plans (if applicable),

icon text-secondary-400 included Foundation plan and detail,

icon text-secondary-400 included Floor framing plan,

icon text-secondary-400 included Roof framing plan, supporting details and

icon text-secondary-400 included Electric layout.

What’s Not Included

These items are  NOT included:

icon text-secondary-400 includedArchitectural or Engineering Stamp - handled locally if required.

icon text-secondary-400 includedSite Plan - handled locally when required.

icon text-secondary-400 includedMechanical Drawings (location of heating and air equipment and ductwork) - your subcontractors handle this.

icon text-secondary-400 includedPlumbing Drawings (drawings showing the actual plumbing pipe sizes and locations) - your subcontractors handle this.

icon text-secondary-400 includedEnergy calculations - handled locally when required.

Related House Plans

Plan Collection
Plan Collection
Plan Collection
Plan#157-1017
Starting at$970
3544
Sq Ft
2
Story
6
Bed
4
Bath
2
Car
Plan Collection
Plan Collection
Plan Collection
Plan#108-1851
Starting at$1450
3058
Sq Ft
2
Story
6
Bed
4.5
Bath
2
Car
Plan Collection
Plan Collection
Plan Collection
Plan#138-1055
Starting at$1250
2986
Sq Ft
2
Story
6
Bed
4.5
Bath
4
Car
View All

Other Plans By This Designer

Plan Collection
Plan Collection
Plan Collection
Plan#108-1923
Starting at$1150
2928
Sq Ft
1
Story
4
Bed
3
Bath
2
Car
Plan Collection
Plan Collection
Plan Collection
Plan#108-1538
Starting at$725
1216
Sq Ft
2
Story
2
Bed
2
Bath
0
Car
Plan Collection
Plan Collection
Plan Collection
Plan#108-2031
Starting at$450
1808
Sq Ft
2
Story
2
Bed
1
Bath
2
Car