European Duplex Plan: 3 Bedrm, 1715 Sq Ft Per Unit Home

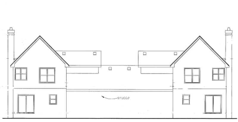
Front elevation of European home (ThePlanCollection: House Plan #120-1602)

Images/Plans copyrighted by designer. Photos may reflect homeowner modifications.

About House Plan #120-1602

Sq Ft
3440
Sq Ft
Bedrooms
6
Bedrooms
Bathroom
4
Baths
Half Baths
2
Half Baths
Bedrooms
4
Cars
Bedrooms
2
Stories
Bedrooms
80' 0'
Width
Bedrooms
44
Depth
Starting at$2030.00What's included
STEP 1Bedrooms
STEP 2Bedrooms
STEP 3Bedrooms

Subtotal:$0
Plan Collection

How much will it cost to build?

Estimate your costs based on your location and materials.

Free Cost Instant Estimator

Floor Plans

Floor Plan Main Level
Floor Plan Main Level
Upper Level Floor Plan
Upper Level Floor Plan
Plan Collection

Can I modify this plan?

Yes! This plan can be customized—contact us for a free quote.

Additional Notes from Designer

PLEASE NOTE! If you order an optional foundation and a materials list, the materials list will NOT include the optional foundation, only the standard foundation. The designer can provide an updated materials list for a fee, so please ask for a quote!

House Plan Description

This grand European style house designed as a multi-unit (Plan #120-1602) has over 1710 square feet of living space per unit. The two story floor plan includes 3 bedrooms, 2 bathrooms, 1 half bath, and a two-car garage per unit.

Home Details

Summary
Plan #:120-1602
Starting at:$2030.00
Floors:2
Bedrooms:6
Full Baths:4
Half Baths:2
Garage:
Square Footage
Heated Area:3440 Sq. Ft.
First Floor:1576 Sq. Ft.
Second Floor:1854 Sq. Ft.
Unheated Area:
Dimensions
Depth:44' 4''
Architectural Styles
Exterior Wall Material
StuccoRock/Stone
Roofing Type
Gable
Roofing Material
Asphalt Shingles
Ceiling Height
9 Foot Ceiling
Special Feature
FireplaceFamily RoomMain Level Laundry
Garage Type
Attached GarageFront Entry
Fireplaces
Two Fireplaces
Building Lot Type
Flat Site
Kitchen Features
Nook/Breakfast AreaPeninsula/Eating BarEat-In Kitchen
Porches and Exterior Features
Portico
Master Suite Features
Master BathroomWalk In ClosetSecond Floor Master

What’s Included

Most plan sets include the following:

icon text-secondary-400 includedCover Page. Each home plan features the front elevation and informative reference sections including, general notes and design criteria*, abbreviations, and symbols for your plan.

icon text-secondary-400 includedElevations. Scaled elevations for the front, rear, and sides are provided. All elevations are detailed and an aerial view of the roof is provided.

icon text-secondary-400 includedFoundations. Foundations are fully engineered for each design, whether slab or basement.

icon text-secondary-400 includedMain Level Floor Plan

icon text-secondary-400 includedSecond Level Floor Plan

icon text-secondary-400 includedElectrical layout

icon text-secondary-400 includedWall & Stair Sections

What’s Not Included

These items are  NOT included:

icon text-secondary-400 includedArchitectural or Engineering Stamp - handled locally if required.

icon text-secondary-400 includedSite Plan - handled locally when required.

icon text-secondary-400 includedMechanical Drawings (location of heating and air equipment and ductwork) - your subcontractors handle this.

icon text-secondary-400 includedPlumbing Drawings (drawings showing the actual plumbing pipe sizes and locations) - your subcontractors handle this.

icon text-secondary-400 includedEnergy calculations - handled locally when required.

Related House Plans

Plan Collection
Plan Collection
Plan Collection
Plan#157-1017
Starting at$970
3544
Sq Ft
2
Story
6
Bed
4
Bath
2
Car
Plan Collection
Plan Collection
Plan Collection
Plan#108-1851
Starting at$1450
3058
Sq Ft
2
Story
6
Bed
4.5
Bath
2
Car
Plan Collection
Plan Collection
Plan Collection
Plan#138-1055
Starting at$1250
2986
Sq Ft
2
Story
6
Bed
4.5
Bath
4
Car
View All

Other Plans By This Designer

Plan Collection
Plan Collection
Plan Collection
Plan#120-2655
Starting at$1005
800
Sq Ft
1
Story
2
Bed
1
Bath
0
Car
Plan Collection
Plan Collection
Plan Collection
Plan#120-2696
Starting at$1105
1642
Sq Ft
1
Story
3
Bed
2.5
Bath
2
Car
Plan Collection
Plan Collection
Plan Collection
Plan#120-1117
Starting at$1105
1699
Sq Ft
2
Story
3
Bed
2.5
Bath
2
Car