Modern Farmhouse Duplex Plan with Matching 3-Bedroom, 2.5-Bathroom Units

Front elevation of Duplex/Multi-Unit home (ThePlanCollection: House Plan #120-2807)

Images/Plans copyrighted by designer. Photos may reflect homeowner modifications.

About House Plan #120-2807

Sq Ft
2934
Sq Ft
Bedrooms
6
Bedrooms
Bathroom
4
Baths
Half Baths
2
Half Baths
Bedrooms
4
Cars
Bedrooms
2
Stories
Bedrooms
70' 0'
Width
Bedrooms
38
Depth
Starting at$2030.00What's included
STEP 1Bedrooms
STEP 2Bedrooms
STEP 3Bedrooms

Subtotal:$0
Plan Collection

How much will it cost to build?

Estimate your costs based on your location and materials.

Free Cost Instant Estimator

Floor Plans

Floor Plan First Story
Floor Plan First Story
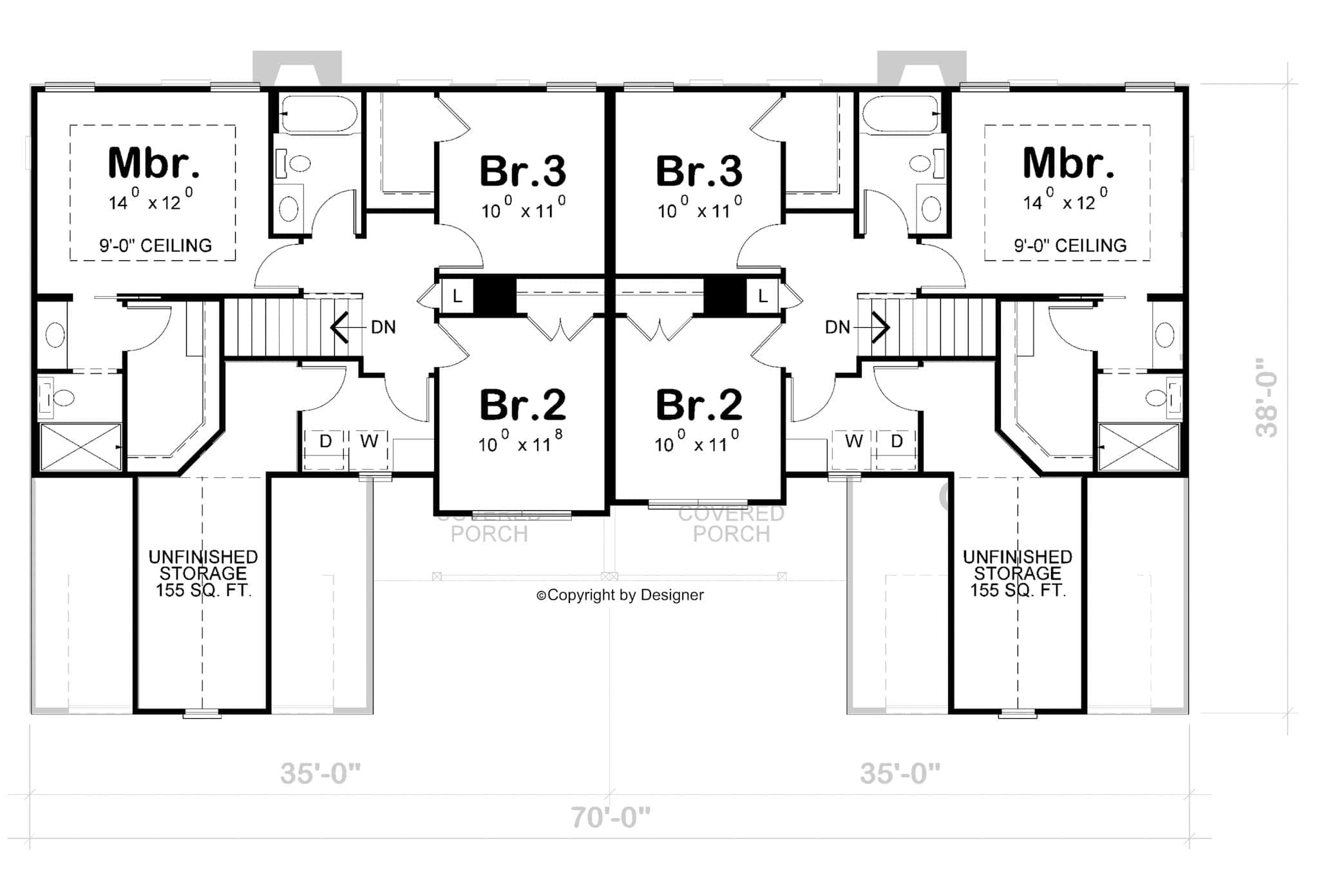
Floor Plan Second Story
Floor Plan Second Story
Plan Collection

Can I modify this plan?

Yes! This plan can be customized—contact us for a free quote.

Additional Notes from Designer

PLEASE NOTE! If you order an optional foundation and a materials list, the materials list will NOT include the optional foundation, only the standard foundation. The designer can provide an updated materials list for a fee, so please ask for a quote!

Note: This multi-family plan has two identical units. Each unit has 1,467 living square feet, 3 bedrooms, 2 bathrooms, and 2 garage spaces.

House Plan Description

Exemplifying exceptional architectural design, the 2-unit Modern Farmhouse style home radiates excellence and sincerity, making it the perfect sanctuary for families. Its 2-story floor plan encompasses a total of 2,934 living sq ft (1,467 living sq ft per unit) and boasts an array of top-notch amenities:

  • 3 Bedrooms, 2.5 Baths, 2-Car Garage Spaces (per unit)
  • Flex Room, Family Room
  • Master Bedroom with Walk-in Closet, Master Bathroom

Home Details

Summary
Plan #:120-2807
Starting at:$2030.00
Floors:2
Bedrooms:6
Full Baths:4
Half Baths:2
Garage:
Square Footage
Heated Area:2934 Sq. Ft.
First Floor:1358 Sq. Ft.
Second Floor:1576 Sq. Ft.
Unheated Area:
Garage:878 Sq. Ft.
Dimensions
Architectural Styles
Exterior Wall Material
Lap Siding
Roofing Type
Gable
Roofing Material
Asphalt Shingles
Roof Pitch
12/128/12
Ceiling Height
9 Foot Ceiling8 Foot Ceiling
Special Feature
FireplaceMud RoomFamily RoomSecond Level LaundryExercise RoomOpen Floor Plan
Garage Type
Attached GarageFront Entry
Fireplaces
Two Fireplaces
Exterior Wall Framing
2x4
Building Lot Type
Down Site
Kitchen Features
Peninsula/Eating Bar
Porches and Exterior Features
Covered Front Porch
Master Suite Features
Master BathroomWalk In ClosetSecond Floor Master

What’s Included

Most plan sets include the following:

icon text-secondary-400 includedCover Page. Each home plan features the front elevation and informative reference sections including, general notes and design criteria*, abbreviations, and symbols for your plan.

icon text-secondary-400 includedElevations. Scaled elevations for the front, rear, and sides are provided. All elevations are detailed and an aerial view of the roof is provided.

icon text-secondary-400 includedFoundations. Foundations are fully engineered for each design, whether slab or basement.

icon text-secondary-400 includedMain Level Floor Plan

icon text-secondary-400 includedSecond Level Floor Plan

icon text-secondary-400 includedElectrical layout

icon text-secondary-400 includedWall & Stair Sections

What’s Not Included

These items are  NOT included:

icon text-secondary-400 includedArchitectural or Engineering Stamp - handled locally if required.

icon text-secondary-400 includedSite Plan - handled locally when required.

icon text-secondary-400 includedMechanical Drawings (location of heating and air equipment and ductwork) - your subcontractors handle this.

icon text-secondary-400 includedPlumbing Drawings (drawings showing the actual plumbing pipe sizes and locations) - your subcontractors handle this.

icon text-secondary-400 includedEnergy calculations - handled locally when required.

Related House Plans

Plan Collection
Plan Collection
Plan Collection
Plan#157-1017
Starting at$970
3544
Sq Ft
2
Story
6
Bed
4
Bath
2
Car
Plan Collection
Plan Collection
Plan Collection
Plan#108-1851
Starting at$1450
3058
Sq Ft
2
Story
6
Bed
4.5
Bath
2
Car
Plan Collection
Plan Collection
Plan Collection
Plan#138-1055
Starting at$1250
2986
Sq Ft
2
Story
6
Bed
4.5
Bath
4
Car
View All

Other Plans By This Designer

Plan Collection
Plan Collection
Plan Collection
Plan#120-2655
Starting at$1005
800
Sq Ft
1
Story
2
Bed
1
Bath
0
Car
Plan Collection
Plan Collection
Plan Collection
Plan#120-2696
Starting at$1105
1642
Sq Ft
1
Story
3
Bed
2.5
Bath
2
Car
Plan Collection
Plan Collection
Plan Collection
Plan#120-1117
Starting at$1105
1699
Sq Ft
2
Story
3
Bed
2.5
Bath
2
Car