Estimate your costs based on your location and materials.
Yes! This plan can be customized—contact us for a free quote.
Yes! This plan can be customized—contact us for a free quote.
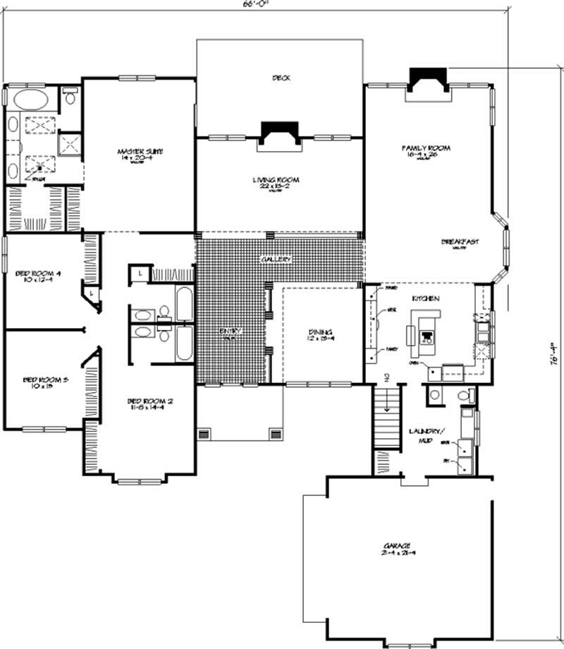
Striking roof gables, an elegant stucco finish and an eye-catching entry portico accent the exterior of this well-appointed one-story design. The interior is dominated by vaulted spaces filled with luxurious features. The vaulted entry showcases the formal dining room, which boasts a 10-ft.-high tray ceiling and elegant columns. Plant shelves lie above both openings to the dining room. A 2-ft. half-wall and columns separate the gallery from the vaulted living room. Spectacular windows with quarter-round transoms flank the living room fireplace. The vaulted family room offers a second...
Estimate your costs based on your location and materials.
All sales of house plans, modifications, and other products found on this site are final. No refunds or exchanges can be given once your order has begun the fulfillment process. Please see our Policies for additional information.
All plans offered on ThePlanCollection.com are designed to conform to the local building codes when and where the original plan was drawn.
The homes as shown in photographs and renderings may differ from the actual blueprints. For more detailed information, please review the floor plan images herein carefully.
Estimate your costs based on your location and materials.