Estimate your costs based on your location and materials.
Yes! This plan can be customized—contact us for a free quote.
Yes! This plan can be customized—contact us for a free quote.
PLEASE NOTE! When ordering options such as an optional foundation, RRR or 2x4 or 2x6 conversions, the designer may require an additional 2-5 business days to create it. Please keep this in mind when ordering.
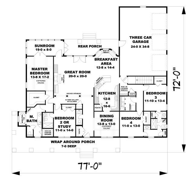
A lovely Craftsman with today's style, this beauty is clad in stone and siding to give it that classy touch. Enter the Foyer and view your lovely Dining Room, true style, with a Coffered Ceiling. To the left you will find a Powder Room with easy access for guests. Ahead are arched openings and columns, creating drama and giving the Great Room a classic appeal. A gas fireplace, built-in entertainment center and French doors highlight this area.
Step out onto your rear covered porch and enjoy the view or retreat into your own Sunroom. The Kitchen contains lots of cabinetry, a...
Estimate your costs based on your location and materials.
All sales of house plans, modifications, and other products found on this site are final. No refunds or exchanges can be given once your order has begun the fulfillment process. Please see our Policies for additional information.
All plans offered on ThePlanCollection.com are designed to conform to the local building codes when and where the original plan was drawn.
The homes as shown in photographs and renderings may differ from the actual blueprints. For more detailed information, please review the floor plan images herein carefully.
Estimate your costs based on your location and materials.