Estimate your costs based on your location and materials.
Yes! This plan can be customized—contact us for a free quote.
Yes! This plan can be customized—contact us for a free quote.
PLEASE NOTE! When ordering options such as an optional foundation, RRR or 2x4 or 2x6 conversions, the designer may require an additional 2-5 business days to create it. Please keep this in mind when ordering.
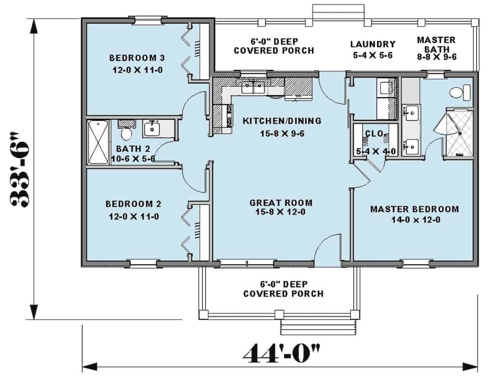
This Country Ranch style home has a total living area of only 1035 square feet, but it lives bigger than its footprint suggests. The lovely home, with its cozy covered entry and simple yet elegant design, features spaces that are bound to please all members of the family.
Upon stepping onto delightful front porch, you'll be welcomed by the main entrance door, which leads directly into the open floor plan, beginning with the Great Room – sure to be the central gathering spot for all. A few steps from the Great Room...
Estimate your costs based on your location and materials.
All sales of house plans, modifications, and other products found on this site are final. No refunds or exchanges can be given once your order has begun the fulfillment process. Please see our Policies for additional information.
All plans offered on ThePlanCollection.com are designed to conform to the local building codes when and where the original plan was drawn.
The homes as shown in photographs and renderings may differ from the actual blueprints. For more detailed information, please review the floor plan images herein carefully.
Estimate your costs based on your location and materials.