Front elevation of Colonial home (ThePlanCollection: House Plan #189-1083)

Images/Plans copyrighted by designer. Photos may reflect homeowner modifications.

About House Plan #189-1083

Sq Ft
2815
Sq Ft
Bedrooms
2
Bedrooms
Bathroom
2
Baths
Half Baths
1
Half Baths
Bedrooms
2
Cars
Bedrooms
2
Stories
Bedrooms
21' 8'
Width
Bedrooms
49
Depth
Starting at$1620.00What's included
STEP 1Bedrooms
STEP 2Bedrooms
STEP 3Bedrooms

Subtotal:$0
Plan Collection

How much will it cost to build?

Estimate your costs based on your location and materials.

Free Cost Instant Estimator

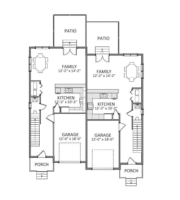
Floor Plans

Floor Plan Main Level
Floor Plan Main Level
Floor Plan Upper Level
Floor Plan Upper Level
Plan Collection

Can I modify this plan?

Yes! This plan can be customized—contact us for a free quote.

Additional Notes from Designer

Please Note: CAD Files for this plan typically take 2-3 additional business days to prepare. PLEASE NOTE: Some options (different foundations, RRR, etc.) may take an additional 2-3 business days to prepare! Please keep this in mind regarding shipping when ordering. Thank you!

Please Note: Total square feet under the roof: 3331

House Plan Description

This lovely Colonial style home with Craftsman influences (Multi-Family House Plan #189-1083) has 2815 square feet of living space per unit. The 2 story floor plan includes 2 bedrooms per unit.

Home Details

Summary
Plan #:189-1083
Starting at:$1620.00
Floors:2
Bedrooms:2
Full Baths:2
Half Baths:1
Garage:
Square Footage
Heated Area:2815 Sq. Ft.
First Floor:1371 Sq. Ft.
Second Floor:1444 Sq. Ft.
Unheated Area:
Garage:432 Sq. Ft.
Dimensions
Width:21' 8''
Depth:49' 9''
Ridge Height:32' 0''
Architectural Styles
Roof Pitch
10/12
Ceiling Height
9 Foot Ceiling8 Foot Ceiling
Special Feature
Main Level Laundry
Garage Type
Attached Garage
Exterior Wall Framing
2x6
Building Lot Type
Narrow Lot Design
Porches and Exterior Features
Covered Front PorchPatio
Master Suite Features
Second Floor Master

What’s Included

Most plan sets include the following:

icon text-secondary-400 includedFoundation Detail

icon text-secondary-400 includedFloor plans

icon text-secondary-400 includedExterior Elevations

icon text-secondary-400 includedCross-section elevations

icon text-secondary-400 includedInterior elevations

icon text-secondary-400 includedArial view

icon text-secondary-400 includedColor rendering of the front elevation

icon text-secondary-400 includedRoof plan

icon text-secondary-400 includedRoof Framing

icon text-secondary-400 includedCeiling Framing

icon text-secondary-400 includedFloor Framing

icon text-secondary-400 includedElectrical Layout

icon text-secondary-400 includedNotes and Details

What’s Not Included

These items are  NOT included:

icon text-secondary-400 includedArchitectural or Engineering Stamp - handled locally if required.

icon text-secondary-400 includedSite Plan - handled locally when required.

icon text-secondary-400 includedMechanical Drawings (location of heating and air equipment and ductwork) - your subcontractors handle this.

icon text-secondary-400 includedPlumbing Drawings (drawings showing the actual plumbing pipe sizes and locations) - your subcontractors handle this.

icon text-secondary-400 includedEnergy calculations - handled locally when required.

Related House Plans

Plan Collection
Plan Collection
Plan Collection
Plan#196-1225
Starting at$1145
2528
Sq Ft
2
Story
2
Bed
2.5
Bath
2
Car
Plan Collection
Plan Collection
Plan Collection
Plan#146-1418
Starting at$1015
2280
Sq Ft
2
Story
2
Bed
2.5
Bath
2
Car
Plan Collection
Plan Collection
Plan Collection
Plan#145-1809
Starting at$950
2244
Sq Ft
2
Story
2
Bed
2
Bath
1
Car
View All

Other Plans By This Designer

Plan Collection
Plan Collection
Plan Collection
Plan#189-1118
Starting at$1595
2737
Sq Ft
2
Story
4
Bed
3
Bath
2
Car
Plan Collection
Plan Collection
Plan Collection
Plan#189-1013
Starting at$1595
3263
Sq Ft
2
Story
5
Bed
3.5
Bath
2
Car
Plan Collection
Plan Collection
Plan Collection
Plan#189-1135
Starting at$1595
2954
Sq Ft
1
Story
3
Bed
3
Bath
3
Car