Duplex Farmhouse With 3 Bedrooms, 1378 Sq Ft Per Unit Home

Front elevation of Farmhouse home (ThePlanCollection: House Plan #108-2055)

Images/Plans copyrighted by designer. Photos may reflect homeowner modifications.

About House Plan #108-2055

Sq Ft
2756
Sq Ft
Bedrooms
6
Bedrooms
Bathroom
4
Baths
Half Baths
2
Half Baths
Bedrooms
4
Cars
Bedrooms
2
Stories
Bedrooms
76' 0'
Width
Bedrooms
44
Depth
Starting at$2100.00What's included
STEP 1Bedrooms
STEP 2Bedrooms
STEP 3Bedrooms

Subtotal:$0
Plan Collection

How much will it cost to build?

Estimate your costs based on your location and materials.

Free Cost Instant Estimator

Floor Plans

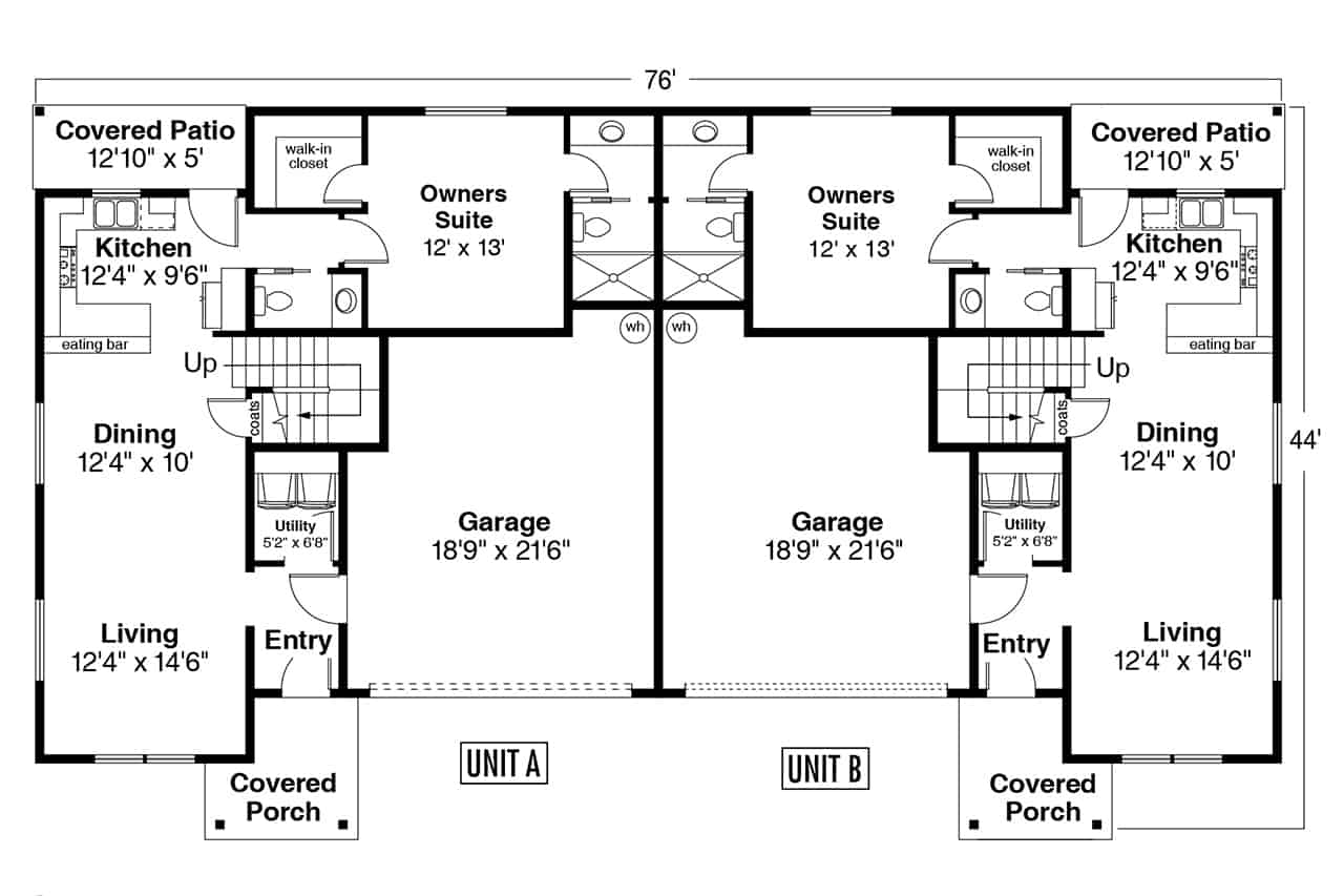
Main Level
Main Level
Upper Level
Upper Level
Plan Collection

Can I modify this plan?

Yes! This plan can be customized—contact us for a free quote.

Additional Notes from Designer

PLEASE NOTE!! For this designer, The PDF that comes with the PRINT Packages (5 set+PDF and 8 set+PDF) is NOT Modifiable - it is for printing ONLY! PLEASE NOTE!! Optional Foundations (foundations that cost extra money) will take 5-10 business days to complete.

This multi-family plan has two identical units. Each unit has 1378 living square feet, 3 bedrooms, 2.5 bathrooms, and 2 garage spaces.

 

House Plan Description

This country farmhouse duplex provides awesome details and everything you need to feel at home. The multi-family home has a total of 2756 living square feet (1378 living sq ft per unit) and includes these special amenities: 3 Bedrooms, 2.5 Baths and 2 Garage Spaces per Unit.

Home Details

Summary
Plan #:108-2055
Starting at:$2100.00
Floors:2
Bedrooms:6
Full Baths:4
Half Baths:2
Garage:
Square Footage
Heated Area:2756 Sq. Ft.
First Floor:1896 Sq. Ft.
Second Floor:860 Sq. Ft.
Unheated Area:
Garage:818 Sq. Ft.
Dimensions
Architectural Styles
Exterior Wall Material
Vinyl SidingWood Siding
Roofing Type
Gable
Roofing Material
Asphalt Shingles
Roof Pitch
6/12
Ceiling Height
9 Foot Ceiling
Special Feature
Dining RoomMud RoomMain Level LaundryStorageOpen Floor Plan
Garage Type
Attached GarageFront Entry
Exterior Wall Framing
2x6
Kitchen Features
Peninsula/Eating Bar
Porches and Exterior Features
Covered Front PorchCovered Rear Patio
Master Suite Features
Main Floor MasterMaster BathroomWalk In ClosetSplit Master Bedroom

What’s Included

Most plan sets include the following:

icon text-secondary-400 included Artist’s rendering of the home,

icon text-secondary-400 included Front/Rear/Left and Right Elevations,

icon text-secondary-400 included Main floor plan, Second or Basement floor plans (if applicable),

icon text-secondary-400 included Foundation plan and detail,

icon text-secondary-400 included Floor framing plan,

icon text-secondary-400 included Roof framing plan, supporting details and

icon text-secondary-400 included Electric layout.

What’s Not Included

These items are  NOT included:

icon text-secondary-400 includedArchitectural or Engineering Stamp - handled locally if required.

icon text-secondary-400 includedSite Plan - handled locally when required.

icon text-secondary-400 includedMechanical Drawings (location of heating and air equipment and ductwork) - your subcontractors handle this.

icon text-secondary-400 includedPlumbing Drawings (drawings showing the actual plumbing pipe sizes and locations) - your subcontractors handle this.

icon text-secondary-400 includedEnergy calculations - handled locally when required.

Related House Plans

Plan Collection
Plan Collection
Plan Collection
Plan#108-1851
Starting at$1450
3058
Sq Ft
2
Story
6
Bed
4.5
Bath
2
Car
Plan Collection
Plan Collection
Plan Collection
Plan#138-1055
Starting at$1250
2986
Sq Ft
2
Story
6
Bed
4.5
Bath
4
Car
Plan Collection
Plan Collection
Plan Collection
Plan#120-1602
Starting at$2030
3440
Sq Ft
2
Story
6
Bed
4.5
Bath
4
Car
View All

Other Plans By This Designer

Plan Collection
Plan Collection
Plan Collection
Plan#108-1923
Starting at$1150
2928
Sq Ft
1
Story
4
Bed
3
Bath
2
Car
Plan Collection
Plan Collection
Plan Collection
Plan#108-1538
Starting at$725
1216
Sq Ft
2
Story
2
Bed
2
Bath
0
Car
Plan Collection
Plan Collection
Plan Collection
Plan#108-2031
Starting at$450
1808
Sq Ft
2
Story
2
Bed
1
Bath
2
Car