5-Bedroom, 2715 Sq Ft Farmhouse Plan with Guest Suite

Front elevation of Farmhouse home (ThePlanCollection: House Plan #193-1292)

Images/Plans copyrighted by designer. Photos may reflect homeowner modifications.

About House Plan #193-1292

Sq Ft
2715
Sq Ft
Bedrooms
5
Bedrooms
Bathroom
3
Baths
Half Baths
1
Half Baths
Bedrooms
4
Cars
Bedrooms
1.5
Stories
Bedrooms
106' 4'
Width
Bedrooms
67
Depth
Starting at$1350.00What's included
STEP 1Bedrooms
STEP 2Bedrooms
STEP 3Bedrooms

Subtotal:$0
Plan Collection

How much will it cost to build?

Estimate your costs based on your location and materials.

Free Cost Instant Estimator

Floor Plans

Main Level
Main Level
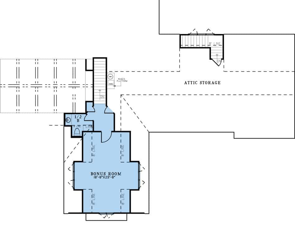
Upper Level
Upper Level
Plan Collection

Can I modify this plan?

Yes! This plan can be customized—contact us for a free quote.

Additional Notes from Designer

For this designer, if you choose optional features such as but not limited to: 2x6 exterior walls, reverse or optional basement, the designer will need an additional 2-5 business days to adjust the plan accordingly. Please keep this in mind when choosing your shipping option. if you would like Express or Priority shipping, the designer will ship the plan to you using the method you choose but you will still have the 2-5 business day waiting period BEFORE they ship! This designer does not offer Framing. Please feel free to contact us with any questions!

Note: Porch sq ft figures may include any deck sq ft as well.

House Plan Description

This notable Farmhouse home with Rustic vibes is 2,715 square feet with 5 bedrooms, 3.5 baths, and a 4-car garage. Additionally, this home is equipped with these wonderful amenities:

  • Great Room, Home Office, Living Room, Guest Suite
  • Grilling Porch, Dining Room, Kitchen with Walk-in Pantry
  • Master Bedroom with Master Bedroom and Walk-in Closet
  • Bonus Room, Attic Storage

Home Details

Summary
Plan #:193-1292
Starting at:$1350.00
Floors:1.5
Bedrooms:5
Full Baths:3
Half Baths:1
Garage:
Square Footage
Heated Area:2715 Sq. Ft.
First Floor:2715 Sq. Ft.
Unheated Area:
Bonus Room:492 Sq. Ft.
Garage:1238 Sq. Ft.
Porch:427 Sq. Ft.
Dimensions
Width:106' 4''
Depth:67' 8''
Architectural Styles
Exterior Wall Material
Vinyl SidingRock/StoneWood SidingBoard and Batten
Roofing Type
Gable/Dormer
Roofing Material
Asphalt ShinglesMetal
Roof Pitch
3/1210/12
Ceiling Height
9 Foot Ceiling8 Foot Ceiling
Special Feature
FireplaceDining RoomGuest RoomHome OfficeBonus RoomFamily RoomMain Level LaundryColor PhotosStorageVaulted CeilingsOpen Floor PlanInterior Photos
Garage Type
Attached GarageSide Entry
Fireplaces
One Fireplace
Exterior Wall Framing
2x4
Building Lot Type
Flat Site
Kitchen Features
Kitchen IslandWalk-in PantryOutdoor KitchenEat-In Kitchen
Porches and Exterior Features
Covered Front PorchCovered Rear PorchPatio
Master Suite Features
Main Floor MasterMaster BathroomWalk In ClosetSplit Master Bedroom

What’s Included

Most plan sets include the following:

icon text-secondary-400 included Each plan set includes the following:

icon text-secondary-400 included floorplan

icon text-secondary-400 included 4 side exterior elevations,

icon text-secondary-400 included electrical plan,

icon text-secondary-400 included birds-eye view of the roof,

icon text-secondary-400 included foundation plan,

icon text-secondary-400 included and some miscellaneous details. Please Note We do not offer framing, plumbing, HVAC, or window scheduling. This will have to be done on a local level, probably by your building team!

What’s Not Included

These items are  NOT included:

icon text-secondary-400 includedArchitectural or Engineering Stamp - handled locally if required.

icon text-secondary-400 includedSite Plan - handled locally when required.

icon text-secondary-400 includedMechanical Drawings (location of heating and air equipment and ductwork) - your subcontractors handle this.

icon text-secondary-400 includedPlumbing Drawings (drawings showing the actual plumbing pipe sizes and locations) - your subcontractors handle this.

icon text-secondary-400 includedEnergy calculations - handled locally when required.

icon text-secondary-400 includedNo Framing

Related House Plans

Plan Collection
Plan Collection
Plan Collection
Plan#115-1434
Starting at$1800
2570
Sq Ft
1.5
Story
5
Bed
3
Bath
2
Car
Plan Collection
Plan Collection
Plan Collection
Plan#202-1021
Starting at$1095
3217
Sq Ft
1.5
Story
5
Bed
3.5
Bath
2
Car
Plan Collection
Plan Collection
Plan Collection
Plan#202-1019
Starting at$1095
3275
Sq Ft
1.5
Story
5
Bed
3.5
Bath
3
Car
View All

Other Plans By This Designer

Plan Collection
Plan Collection
Plan Collection
Plan#193-1108
Starting at$1350
1905
Sq Ft
1.5
Story
3
Bed
2
Bath
0
Car
Plan Collection
Plan Collection
Plan Collection
Plan#193-1179
Starting at$1000
2006
Sq Ft
1.5
Story
3
Bed
2.5
Bath
2
Car
Plan Collection
Plan Collection
Plan Collection
Plan#193-1145
Starting at$1200
1897
Sq Ft
1
Story
4
Bed
2.5
Bath
3
Car