5-Bedroom, 3275 Sq Ft Contemporary Plan with Mudroom

Contemporary home (ThePlanCollection: Plan #202-1019)

Images/Plans copyrighted by designer. Photos may reflect homeowner modifications.

About House Plan #202-1019

Sq Ft
3275
Sq Ft
Bedrooms
5
Bedrooms
Bathroom
3
Baths
Half Baths
1
Half Baths
Bedrooms
3
Cars
Bedrooms
1.5
Stories
Bedrooms
76' 0'
Width
Bedrooms
120
Depth
Starting at$1995.00What's included
STEP 1Bedrooms
STEP 2Bedrooms
STEP 3Bedrooms

Subtotal:$0
Plan Collection

How much will it cost to build?

Estimate your costs based on your location and materials.

Free Cost Instant Estimator

Floor Plans

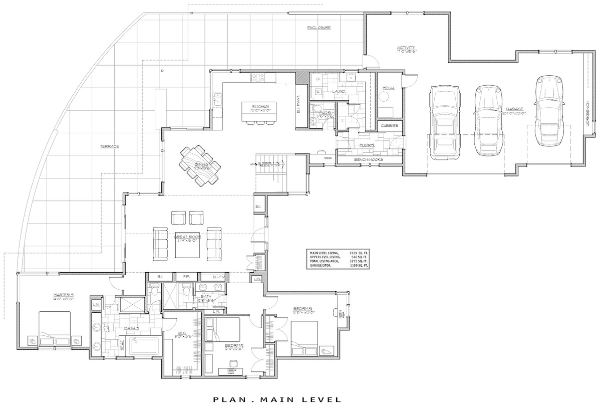
Floor Plan Main Level
Floor Plan Main Level
Floor Plan Upper Level
Floor Plan Upper Level
Plan Collection

Can I modify this plan?

Yes! This plan can be customized—contact us for a free quote.

House Plan Description

What you are looking at can be your new investment – a luxurious Northwest Contemporary home with Covered Outdoor Living and a great open floor plan. This modern home is perfect for a view lot. It covers a total heated floor area of 3,275 square feet of comfortable space. The master suite in its secluded rear wing on the first floor is masterfully planned to provide you as its owner all the luxury you deserve, with its large full bath and walk-in closet. The front wing houses 2 other bedrooms, with shared full bathrooms, and the other 2 remaining...

Home Details

Summary
Plan #:202-1019
Starting at:$1995.00
Floors:1.5
Bedrooms:5
Full Baths:3
Half Baths:1
Garage:
Square Footage
Heated Area:3275 Sq. Ft.
First Floor:2729 Sq. Ft.
Second Floor:546 Sq. Ft.
Unheated Area:
Garage:1159 Sq. Ft.
Porch:1140 Sq. Ft.
Dimensions
Architectural Styles
Exterior Wall Material
Vinyl SidingWood Siding
Roofing Type
GableFlat
Roofing Material
Metal
Roof Pitch
3/128/12
Ceiling Height
9 Foot Ceiling
Special Feature
FireplaceDining RoomGuest RoomMud RoomFamily RoomMain Level LaundryColor PhotosColor PhotosSplit BathroomDenOpen Floor PlanInterior PhotosInterior PhotosL-Shaped
Garage Type
Attached GarageCourtyard Entry
Fireplaces
One Fireplace
Exterior Wall Framing
2x6
Kitchen Features
Kitchen IslandPeninsula/Eating Bar
Porches and Exterior Features
Covered Front PorchCovered Rear PorchPatio
Master Suite Features
Main Floor Master

What’s Included

Most plan sets include the following:

icon text-secondary-400 includedCover sheet with renderings or photos

icon text-secondary-400 includedSite plan sheet with an original site plan for reference

icon text-secondary-400 includedFloor plans

icon text-secondary-400 includedExterior elevations

icon text-secondary-400 includedSections

icon text-secondary-400 includedTypical detail sheets

icon text-secondary-400 includedStructural sheets

icon text-secondary-400 includedFoundation/floor framing

icon text-secondary-400 includedRoof framing

What’s Not Included

These items are  NOT included:

icon text-secondary-400 includedArchitectural or Engineering Stamp - handled locally if required.

icon text-secondary-400 includedSite Plan - handled locally when required.

icon text-secondary-400 includedMechanical Drawings (location of heating and air equipment and ductwork) - your subcontractors handle this.

icon text-secondary-400 includedPlumbing Drawings (drawings showing the actual plumbing pipe sizes and locations) - your subcontractors handle this.

icon text-secondary-400 includedEnergy calculations - handled locally when required.

Related House Plans

Plan Collection
Plan Collection
Plan Collection
Plan#202-1021
Starting at$1095
3217
Sq Ft
1.5
Story
5
Bed
3.5
Bath
2
Car
Plan Collection
Plan Collection
Plan Collection
Plan#140-1091
Starting at$1045
3245
Sq Ft
1.5
Story
5
Bed
3
Bath
3
Car
Plan Collection
Plan Collection
Plan Collection
Plan#198-1160
Starting at$1245
3154
Sq Ft
1.5
Story
5
Bed
3.5
Bath
2
Car
View All

Other Plans By This Designer

Plan Collection
Plan Collection
Plan Collection
Plan#202-1021
Starting at$1095
3217
Sq Ft
1.5
Story
5
Bed
3.5
Bath
2
Car
Plan Collection
Plan Collection
Plan Collection
Plan#202-1013
Starting at$995
3264
Sq Ft
1
Story
3
Bed
3.5
Bath
3
Car
Plan Collection
Plan Collection
Plan Collection
Plan#202-1017
Starting at$795
4412
Sq Ft
2
Story
5
Bed
5.5
Bath
3
Car