4-Bedroom, 2634 Sq Ft Florida Style Plan with Nook/Breakfast Area

Front view of Florida Style home (ThePlanCollection: House Plan #146-1206)

Images/Plans copyrighted by designer. Photos may reflect homeowner modifications.

About House Plan #146-1206

Sq Ft
2634
Sq Ft
Bedrooms
4
Bedrooms
Bathroom
3
Baths
Half Baths
0
Half Baths
Bedrooms
2
Cars
Bedrooms
1
Stories
Bedrooms
69' 0'
Width
Bedrooms
64
Depth
Starting at$1120.00What's included
STEP 1Bedrooms
STEP 2Bedrooms
STEP 3Bedrooms

Subtotal:$0
Plan Collection

How much will it cost to build?

Estimate your costs based on your location and materials.

Free Cost Instant Estimator

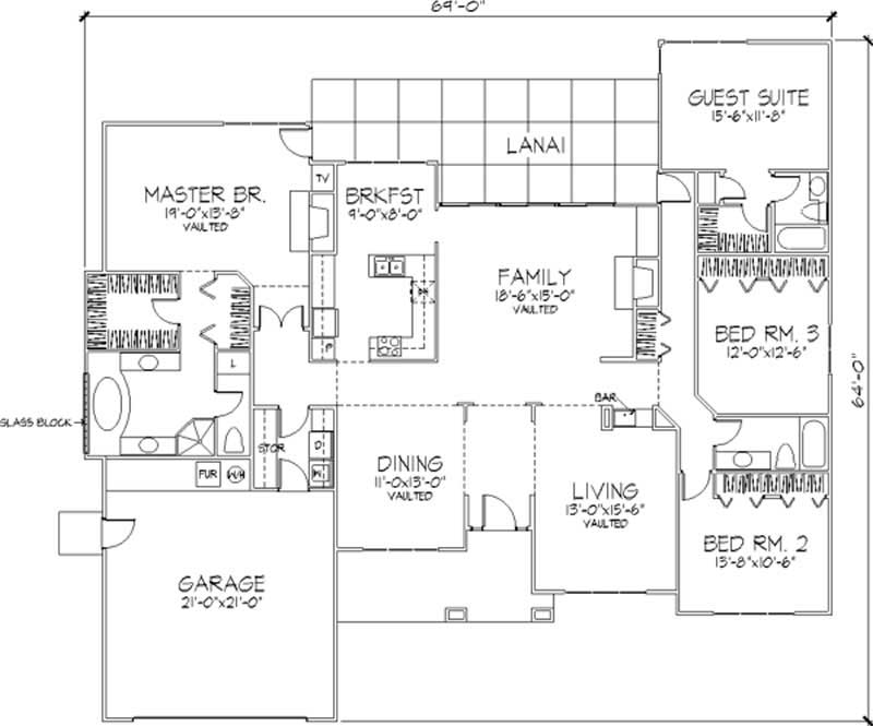
Floor Plans

Floor Plan First Story
Floor Plan First Story
Plan Collection

Can I modify this plan?

Yes! This plan can be customized—contact us for a free quote.

House Plan Description

This Mediterranean home uses contemporary space-planning combined with the styling potential of stucco to strike a fresh spark of vitality in these revived mission materials. The entry is flanked by vaulted dining and living rooms, while straight ahead a large vaulted family room features an exciting fireplace. A deluxe master suite flaunts its own fireplace, a walk-in closet and a private bath complete with a spa tub.

Home Details

Summary
Plan #:146-1206
Starting at:$1120.00
Floors:1
Bedrooms:4
Full Baths:3
Half Baths:0
Garage:
Square Footage
Heated Area:2634 Sq. Ft.
First Floor:2634 Sq. Ft.
Unheated Area:
Dimensions
Ridge Height:19' 0''
Architectural Styles
Exterior Wall Material
Stucco
Roofing Type
Hip
Roofing Material
Tiles
Roof Pitch
6/12
Special Feature
FireplaceDining RoomGuest RoomMud RoomFamily RoomMain Level LaundrySplit BathroomStorage
Garage Type
Attached GarageFront Entry
Fireplaces
Two Fireplaces
Exterior Wall Framing
2x4
Building Lot Type
Flat Site
Kitchen Features
Nook/Breakfast AreaWalk-in PantryEat-In Kitchen
Porches and Exterior Features
Covered Front PorchCovered Lanai
Master Suite Features
Main Floor MasterFireplace in MasterMaster BathroomWalk In Closet

What’s Included

Most plan sets include the following:

What’s Not Included

These items are  NOT included:

icon text-secondary-400 includedArchitectural or Engineering Stamp - handled locally if required.

icon text-secondary-400 includedSite Plan - handled locally when required.

icon text-secondary-400 includedMechanical Drawings (location of heating and air equipment and ductwork) - your subcontractors handle this.

icon text-secondary-400 includedPlumbing Drawings (drawings showing the actual plumbing pipe sizes and locations) - your subcontractors handle this.

icon text-secondary-400 includedEnergy calculations - handled locally when required.

Related House Plans

Plan Collection
Plan Collection
Plan Collection
Plan#153-1153
Starting at$1100
2788
Sq Ft
1
Story
4
Bed
3.5
Bath
3
Car
Plan Collection
Plan Collection
Plan Collection
Plan#153-1359
Starting at$1350
3022
Sq Ft
1
Story
4
Bed
3
Bath
3
Car
Plan Collection
Plan Collection
Plan Collection
Plan#107-1019
Starting at$1350
3276
Sq Ft
1
Story
4
Bed
3.5
Bath
0
Car
View All

Other Plans By This Designer

Plan Collection
Plan Collection
Plan Collection
Plan#146-2806
Starting at$980
1933
Sq Ft
2
Story
3
Bed
2
Bath
0
Car
Plan Collection
Plan Collection
Plan Collection
Plan#146-2810
Starting at$1285
3594
Sq Ft
2
Story
4
Bed
3.5
Bath
2
Car
Plan Collection
Plan Collection
Plan Collection
Plan#146-1917
Starting at$1120
2525
Sq Ft
2
Story
4
Bed
2.5
Bath
3
Car