5-Bedroom, 2630 Sq Ft Florida Style Plan with Walk-in Pantry

Front view of Florida Style home (ThePlanCollection: House Plan #146-2336)

Images/Plans copyrighted by designer. Photos may reflect homeowner modifications.

About House Plan #146-2336

Sq Ft
2630
Sq Ft
Bedrooms
5
Bedrooms
Bathroom
3
Baths
Half Baths
0
Half Baths
Bedrooms
3
Cars
Bedrooms
2
Stories
Bedrooms
61' 0'
Width
Bedrooms
57
Depth
Starting at$1120.00What's included
STEP 1Bedrooms
STEP 2Bedrooms
STEP 3Bedrooms

Subtotal:$0
Plan Collection

How much will it cost to build?

Estimate your costs based on your location and materials.

Free Cost Instant Estimator

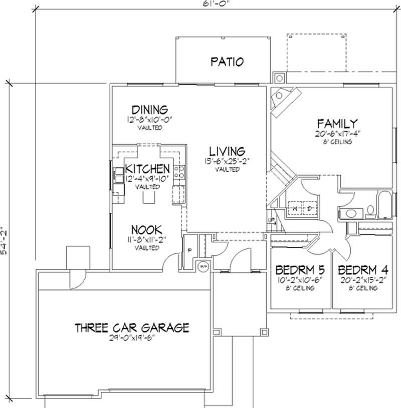
Floor Plans

Main Level
Main Level
Upper Level
Upper Level
Plan Collection

Can I modify this plan?

Yes! This plan can be customized—contact us for a free quote.

House Plan Description

This design's dining and living areas offer an open feeling with vaulted ceilings and great views out the back of the home through large windows. A huge master suite upstairs offers a vaulted ceiling, a large walk-in closet and a private bath. Four other bedrooms offer ample accommodations for family and guests, or easily convert into den/study areas.

Home Details

Summary
Plan #:146-2336
Starting at:$1120.00
Floors:2
Bedrooms:5
Full Baths:3
Half Baths:0
Garage:
Square Footage
Heated Area:2630 Sq. Ft.
First Floor:1722 Sq. Ft.
Second Floor:908 Sq. Ft.
Unheated Area:
Dimensions
Ridge Height:20-0' 0''
Architectural Styles
Exterior Wall Material
Stucco
Roofing Type
Gable
Roofing Material
Other Composites
Special Feature
Guest Room
Garage Type
Attached GarageFront Entry
Fireplaces
One Fireplace
Exterior Wall Framing
2x6

What’s Included

Most plan sets include the following:

What’s Not Included

These items are  NOT included:

icon text-secondary-400 includedArchitectural or Engineering Stamp - handled locally if required.

icon text-secondary-400 includedSite Plan - handled locally when required.

icon text-secondary-400 includedMechanical Drawings (location of heating and air equipment and ductwork) - your subcontractors handle this.

icon text-secondary-400 includedPlumbing Drawings (drawings showing the actual plumbing pipe sizes and locations) - your subcontractors handle this.

icon text-secondary-400 includedEnergy calculations - handled locally when required.

Related House Plans

Plan Collection
Plan Collection
Plan Collection
Plan#107-1169
Starting at$1250
2647
Sq Ft
2
Story
5
Bed
3
Bath
2
Car
Plan Collection
Plan Collection
Plan Collection
Plan#159-1032
Starting at$1250
2817
Sq Ft
2
Story
5
Bed
3
Bath
3
Car
Plan Collection
Plan Collection
Plan Collection
Plan#159-1019
Starting at$1250
2841
Sq Ft
2
Story
5
Bed
3
Bath
2
Car
View All

Other Plans By This Designer

Plan Collection
Plan Collection
Plan Collection
Plan#146-2806
Starting at$980
1933
Sq Ft
2
Story
3
Bed
2
Bath
0
Car
Plan Collection
Plan Collection
Plan Collection
Plan#146-2810
Starting at$1285
3594
Sq Ft
2
Story
4
Bed
3.5
Bath
2
Car
Plan Collection
Plan Collection
Plan Collection
Plan#146-1917
Starting at$1120
2525
Sq Ft
2
Story
4
Bed
2.5
Bath
3
Car