3-Bedroom, 2576 Sq Ft Country Plan with Split Master Bedroom

Country style home (ThePlanCollection: House Plan #194-1020)
Plan Collection View Video

Images/Plans copyrighted by designer. Photos may reflect homeowner modifications.

About House Plan #194-1020

Sq Ft
2576
Sq Ft
Bedrooms
3
Bedrooms
Bathroom
3
Baths
Half Baths
0
Half Baths
Bedrooms
2
Cars
Bedrooms
1
Stories
Bedrooms
79' 0'
Width
Bedrooms
63
Depth
Starting at$1395.00What's included
STEP 1Bedrooms
STEP 2Bedrooms
STEP 3Bedrooms

Subtotal:$0
Plan Collection

How much will it cost to build?

Estimate your costs based on your location and materials.

Free Cost Instant Estimator

Floor Plans

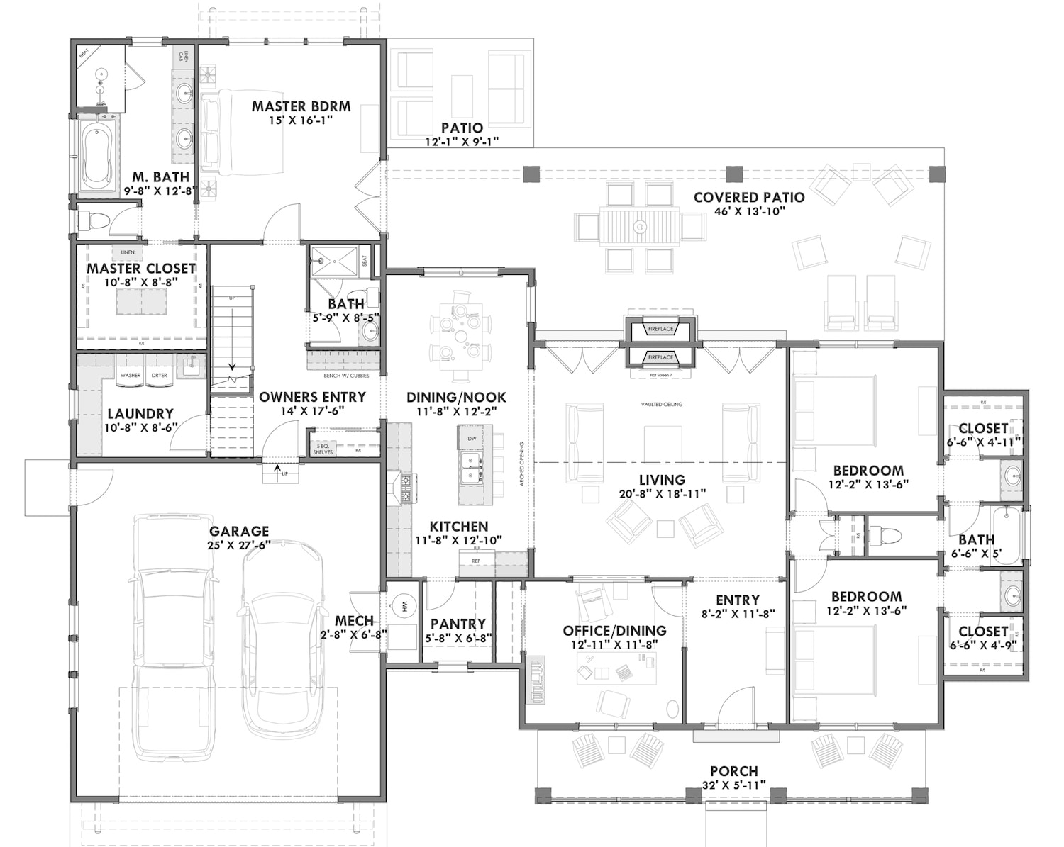
Floor Plan Main Level
Floor Plan Main Level
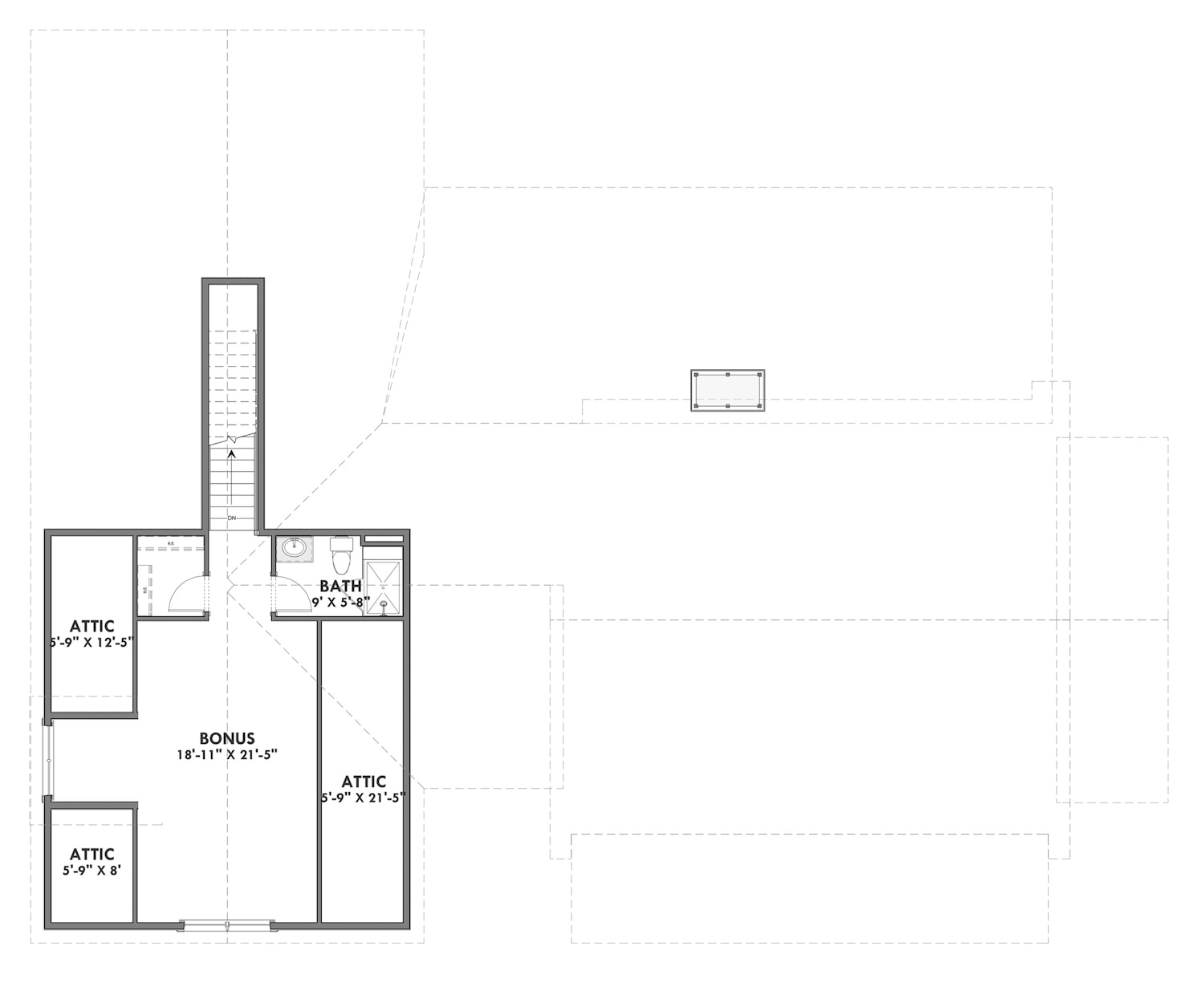
Floor Plan Bonus Room
Floor Plan Bonus Room
Plan Collection

Can I modify this plan?

Yes! This plan can be customized—contact us for a free quote.

House Plan Description

This well-done Country style home plan with Ranch influences (House Plan #194-1020) has 2576 square feet of living space. The 1 story floor plan includes 3 bedrooms.

Home Details

Summary
Plan #:194-1020
Starting at:$1395.00
Floors:1
Bedrooms:3
Full Baths:3
Half Baths:0
Garage:
Square Footage
Heated Area:2576 Sq. Ft.
First Floor:2576 Sq. Ft.
Unheated Area:
Bonus Room:464 Sq. Ft.
Garage:686 Sq. Ft.
Porch:943 Sq. Ft.
Dimensions
Architectural Styles
Exterior Wall Material
Vinyl SidingStuccoWood Siding
Roofing Type
Gable
Roofing Material
Asphalt ShinglesMetal
Roof Pitch
12/124/12
Ceiling Height
10 Foot Ceiling9 Foot Ceiling
Special Feature
FireplaceHome OfficeMud RoomBonus RoomFamily RoomMain Level LaundrySplit BathroomVaulted CeilingsVideoOpen Floor Plan
Garage Type
Attached GarageFront Entry
Fireplaces
Two Fireplaces
Exterior Wall Framing
2x6
Kitchen Features
Kitchen IslandNook/Breakfast AreaWalk-in PantryPeninsula/Eating BarEat-In Kitchen
Porches and Exterior Features
Covered Front PorchCovered Rear Patio
Master Suite Features
Main Floor MasterMaster BathroomWalk In ClosetSplit Master Bedroom

What’s Included

Most plan sets include the following:

icon text-secondary-400 includedCover Sheet - project statistics, including square footage, 3D images (typically), general notes, and drawings sheet index.

icon text-secondary-400 includedFoundation/basement plan - showing room/wall layout, beams, posts, joist direction, and often electrical outlets, switches, and light locations.

icon text-secondary-400 includedMain Level Plan - floor plan rooms and walls dimensioned, window and door sizes noted, plumbing, millwork locations, and other general notes.

icon text-secondary-400 includedUpper-Level Plan (if needed) - same information as Main Level.

icon text-secondary-400 includedMain Level Electrical Plan - electrical outlets, switches, and light locations shown.

icon text-secondary-400 includedUpper-Level Electrical Plan (if needed) - electrical outlets, switches, and light locations shown. (sometimes just the lighting is shown)

icon text-secondary-400 includedExterior Elevations - Elevations of the Front and Right side with notes, dimensions, and material designations.

icon text-secondary-400 includedSections and details - One or more building sections to show vertical relationships and construction plate heights, details as needed.

What’s Not Included

These items are  NOT included:

icon text-secondary-400 includedArchitectural or Engineering Stamp - handled locally if required.

icon text-secondary-400 includedSite Plan - handled locally when required.

icon text-secondary-400 includedMechanical Drawings (location of heating and air equipment and ductwork) - your subcontractors handle this.

icon text-secondary-400 includedPlumbing Drawings (drawings showing the actual plumbing pipe sizes and locations) - your subcontractors handle this.

icon text-secondary-400 includedEnergy calculations - handled locally when required.

Related House Plans

Plan Collection
Plan Collection
Plan Collection
Plan#109-1193
Starting at$1395
2156
Sq Ft
1
Story
3
Bed
3
Bath
3
Car
Plan Collection
Plan Collection
Plan Collection
Plan#106-1283
Starting at$1695
2531
Sq Ft
1
Story
3
Bed
3.5
Bath
3
Car
Plan Collection
Plan Collection
Plan Collection
Plan#175-1134
Starting at$1400
2684
Sq Ft
1
Story
3
Bed
3
Bath
2
Car
View All

Other Plans By This Designer

Plan Collection
Plan Collection
Plan Collection
Plan#194-1056
Starting at$1395
3582
Sq Ft
1
Story
4
Bed
4.5
Bath
4
Car
Plan Collection
Plan Collection
Plan Collection
Plan#194-1057
Starting at$1395
3692
Sq Ft
1
Story
4
Bed
4.5
Bath
4
Car
Plan Collection
Plan Collection
Plan Collection
Plan#194-1010
Starting at$1395
2605
Sq Ft
1
Story
2
Bed
2.5
Bath
3
Car