3-Bedroom, 2500 Sq Ft Barndominium Plan with Breezeway

Front elevation of Barndominium home (ThePlanCollection: House Plan #220-1001)

Images/Plans copyrighted by designer. Photos may reflect homeowner modifications.

About House Plan #220-1001

Sq Ft
2500
Sq Ft
Bedrooms
3
Bedrooms
Bathroom
2
Baths
Half Baths
0
Half Baths
Bedrooms
2
Cars
Bedrooms
1
Stories
Bedrooms
90' 6'
Width
Bedrooms
71
Depth
Starting at$1595.00What's included
STEP 1Bedrooms
STEP 2Bedrooms
STEP 3Bedrooms

Subtotal:$0
Plan Collection

How much will it cost to build?

Estimate your costs based on your location and materials.

Free Cost Instant Estimator

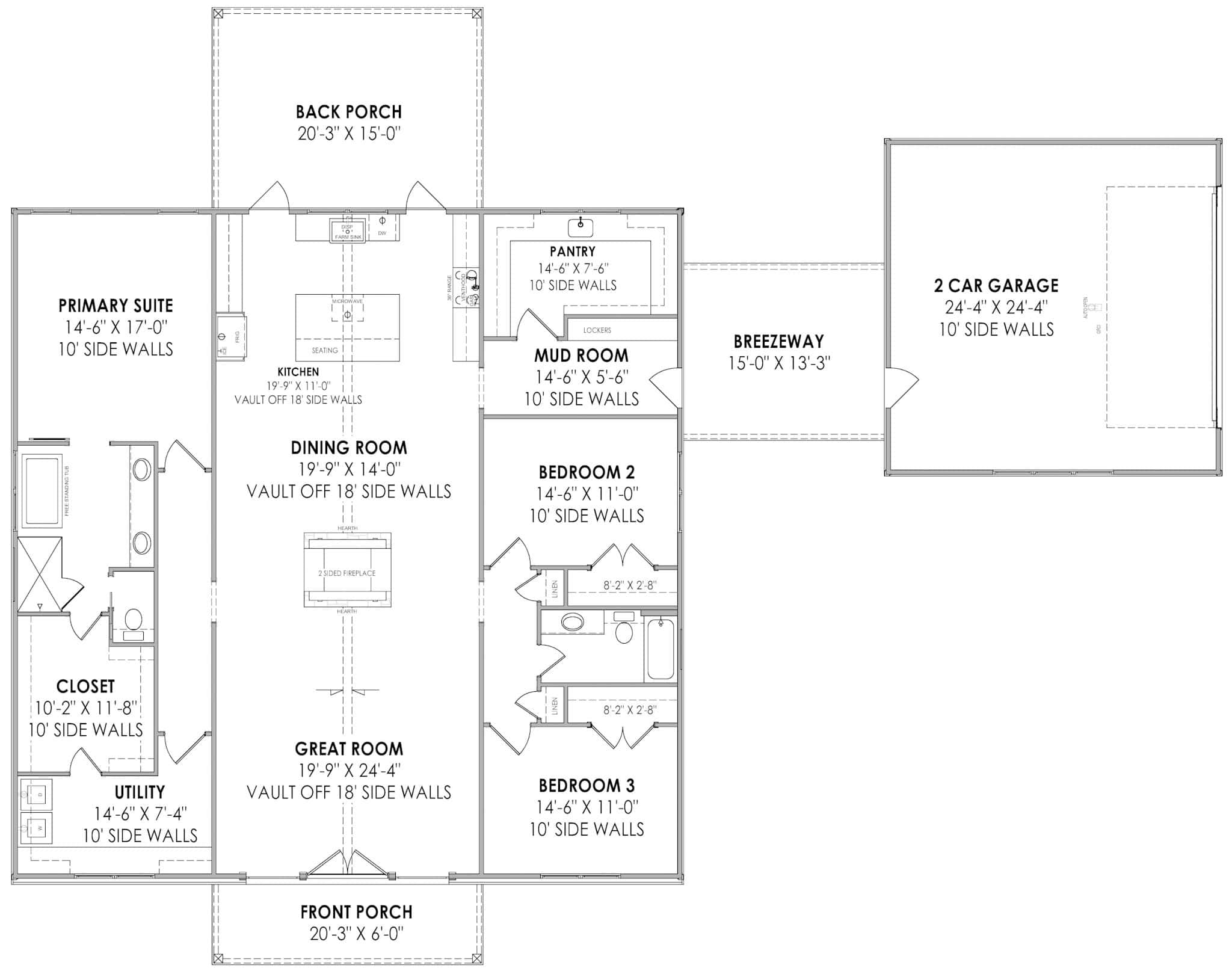
Floor Plans

Floor Plan First Story
Floor Plan First Story
Plan Collection

Can I modify this plan?

Yes! This plan can be customized—contact us for a free quote.

Additional Notes from Designer

Optional foundations are available. Please fill out a mod request to receive your free quote.

House Plan Description

Spanning 2,500 square feet, this Barndominium style abode comprises 3 bedrooms, 2 baths, and a 2-car garage, infused with the enchantment of its enduring Modern Farmhouse characteristics. Moreover, ir delivers a delightful array of features, embodying elegance in every aspect:

  • Great Room, Kitchen with Walk-in Pantry
  • Master Bedroom with Walk-in Closet, Master Bathroom
  • Open Floor Plan, Vaulted Ceiling, Breezeway

Home Details

Summary
Plan #:220-1001
Starting at:$1595.00
Floors:1
Bedrooms:3
Full Baths:2
Half Baths:0
Garage:
Square Footage
Heated Area:2500 Sq. Ft.
First Floor:2500 Sq. Ft.
Unheated Area:
Garage:638 Sq. Ft.
Porch:426 Sq. Ft.
Dimensions
Width:90' 6''
Depth:71' 7''
Architectural Styles
Exterior Wall Material
Vinyl Siding
Roofing Type
Gable
Roofing Material
Metal
Roof Pitch
3/126/12
Ceiling Height
10 Foot Ceiling
Special Feature
Mud RoomFamily RoomMain Level LaundryColor PhotosVaulted CeilingsOpen Floor PlanInterior Photos
Garage Type
Attached GarageSide Entry
Fireplaces
One Fireplace
Building Lot Type
Flat Site
Kitchen Features
Kitchen IslandWalk-in Pantry
Porches and Exterior Features
BreezewayCovered Front PorchCovered Rear Porch
Master Suite Features
Main Floor MasterMaster BathroomWalk In ClosetSplit Master Bedroom

What’s Included

Most plan sets include the following:

icon text-secondary-400 includedCover sheet

icon text-secondary-400 includedExterior elevations

icon text-secondary-400 includedFoundation plan

icon text-secondary-400 includedDetailed floor plans

icon text-secondary-400 includedRoof layout/overview

icon text-secondary-400 includedRoof framing plan

icon text-secondary-400 includedElectrical layout

What’s Not Included

These items are  NOT included:

icon text-secondary-400 includedArchitectural or Engineering Stamp - handled locally if required.

icon text-secondary-400 includedSite Plan - handled locally when required.

icon text-secondary-400 includedMechanical Drawings (location of heating and air equipment and ductwork) - your subcontractors handle this.

icon text-secondary-400 includedPlumbing Drawings (drawings showing the actual plumbing pipe sizes and locations) - your subcontractors handle this.

icon text-secondary-400 includedEnergy calculations - handled locally when required.

Related House Plans

Plan Collection
Plan Collection
Plan Collection
Plan#142-1168
Starting at$1395
2597
Sq Ft
1
Story
3
Bed
2.5
Bath
2
Car
Plan Collection
Plan Collection
Plan Collection
Plan#117-1092
Starting at$1095
2091
Sq Ft
1
Story
3
Bed
2.5
Bath
2
Car
Plan Collection
Plan Collection
Plan Collection
Plan#106-1276
Starting at$1295
2344
Sq Ft
1
Story
3
Bed
2.5
Bath
2
Car
View All

Other Plans By This Designer

Plan Collection
Plan Collection
Plan Collection
Plan#220-1000
Starting at$1995
3854
Sq Ft
1
Story
4
Bed
4.5
Bath
3
Car
Plan Collection
Plan Collection
Plan Collection
Plan#220-1002
Starting at$1995
3609
Sq Ft
1
Story
4
Bed
4.5
Bath
3
Car
Plan Collection
Plan Collection
Plan Collection
Plan#220-1003
Starting at$1995
3680
Sq Ft
1.5
Story
4
Bed
4.5
Bath
3
Car