Estimate your costs based on your location and materials.
Yes! This plan can be customized—contact us for a free quote.
Yes! This plan can be customized—contact us for a free quote.
PLEASE NOTE!! For this designer, The PDF that comes with the PRINT Packages (5 set+PDF and 8 set+PDF) is NOT Modifiable - it is for printing ONLY! PLEASE NOTE!! Optional Foundations (foundations that cost extra money) will take 5-10 business days to complete.
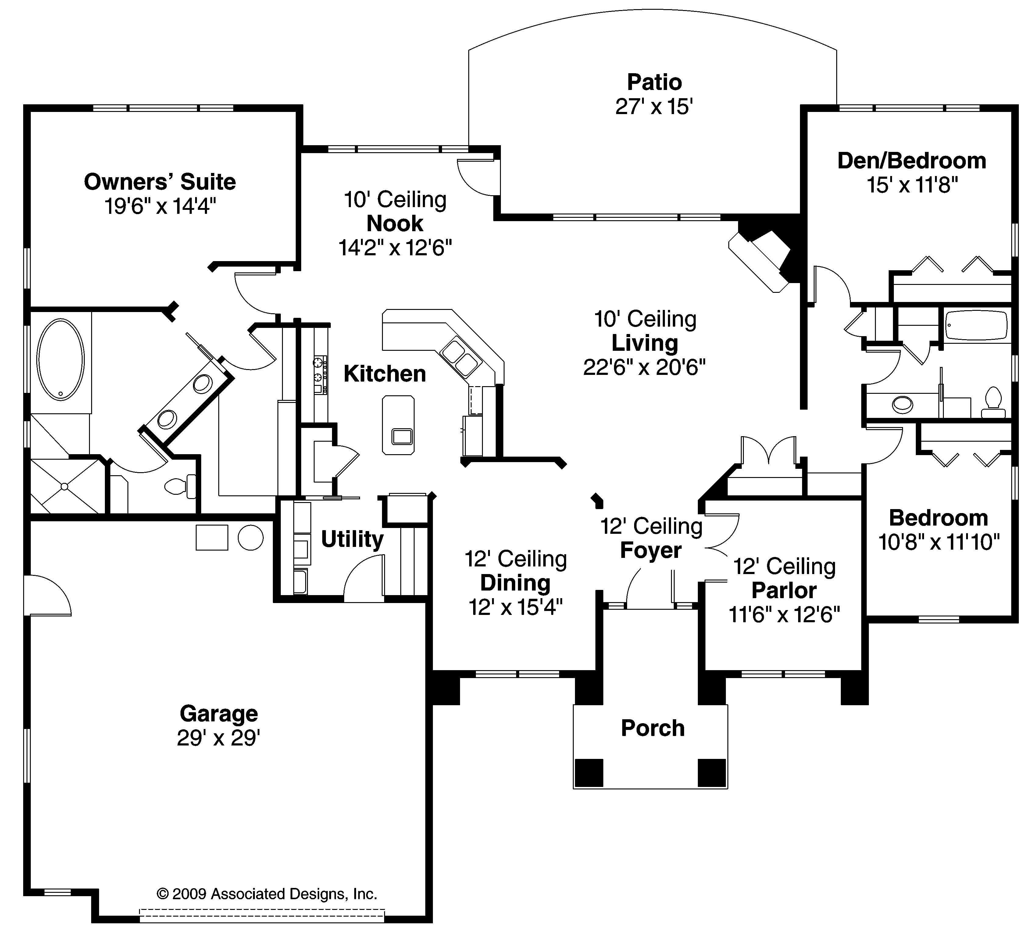
Looking at the #108-1486 puts the viewer in mind of sunny climes, like the Mediterranean, Florida, California, or the Southwest. Cool-looking stucco covers most of the exterior, and bold stuccoed columns highlight a trio of lofty arches that frame the front door and windows. The porch ceiling soars to 12 feet. Immediately inside the door, ceilings in the dining room, foyer and parlor are equally high. Formal rooms are on both sides of the foyer that channels people directly into a large, richly windowed living room at the rear. An arched opening on the left leads into a dining room. The...
Estimate your costs based on your location and materials.
All sales of house plans, modifications, and other products found on this site are final. No refunds or exchanges can be given once your order has begun the fulfillment process. Please see our Policies for additional information.
All plans offered on ThePlanCollection.com are designed to conform to the local building codes when and where the original plan was drawn.
The homes as shown in photographs and renderings may differ from the actual blueprints. For more detailed information, please review the floor plan images herein carefully.
Estimate your costs based on your location and materials.