4-Bedroom, 2380 Sq Ft Ranch Plan with His & Her Walk-in Closets

Country home (ThePlanCollection: Plan #123-1091)

Images/Plans copyrighted by designer. Photos may reflect homeowner modifications.

About House Plan #123-1091

Sq Ft
2380
Sq Ft
Bedrooms
4
Bedrooms
Bathroom
2
Baths
Half Baths
1
Half Baths
Bedrooms
2
Cars
Bedrooms
1
Stories
Bedrooms
87' 0'
Width
Bedrooms
54
Depth
Starting at$1050.00What's included
STEP 1Bedrooms
STEP 2Bedrooms
STEP 3Bedrooms

Subtotal:$0
Plan Collection

How much will it cost to build?

Estimate your costs based on your location and materials.

Free Cost Instant Estimator

Floor Plans

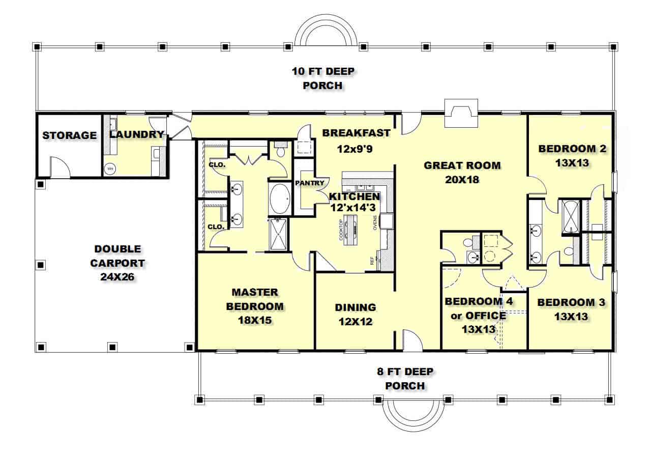
Floor Plan Main Level
Floor Plan Main Level
Plan Collection

Can I modify this plan?

Yes! This plan can be customized—contact us for a free quote.

Additional Notes from Designer

PLEASE NOTE! When ordering options such as an optional foundation, RRR or 2x4 or 2x6 conversions, the designer may require an additional 2-5 business days to create it. Please keep this in mind when ordering.

House Plan Description

This Country Ranch plan has 4 bedrooms, 2.5 baths, and a double carport. There is a total of 2380 total living square feet. A great feature of this plan can be found with the covered front and back porches, accentuating the Country style to its fullest.

Home Details

Summary
Plan #:123-1091
Starting at:$1050.00
Floors:1
Bedrooms:4
Full Baths:2
Half Baths:1
Garage:
Square Footage
Heated Area:2380 Sq. Ft.
First Floor:2380 Sq. Ft.
Unheated Area:
Dimensions
Architectural Styles
Exterior Wall Material
Vinyl SidingWood Siding
Roofing Type
Gable
Roofing Material
Asphalt Shingles
Ceiling Height
9 Foot Ceiling
Special Feature
FireplaceDining RoomHome OfficeFamily RoomMain Level LaundryStorage
Garage Type
Carport
Fireplaces
One Fireplace
Exterior Wall Framing
2x4
Building Lot Type
Flat Site
Kitchen Features
Kitchen IslandNook/Breakfast AreaWalk-in PantryPeninsula/Eating Bar
Porches and Exterior Features
Covered Front PorchCovered Rear Porch
Master Suite Features
Main Floor MasterMaster BathroomWalk In ClosetSplit Master Bedroom

What’s Included

Most plan sets include the following:

icon text-secondary-400 includedFloor plans - Included with your plans will be a detailed floor plan at 1/4" scale with a window and door schedule.

icon text-secondary-400 includedFoundation

icon text-secondary-400 includedElectrical Layout

icon text-secondary-400 includedExterior and Interior Elevations

icon text-secondary-400 includedBuilding Sections

icon text-secondary-400 includedDetails and Typical Specifications

icon text-secondary-400 includedSheet

What’s Not Included

These items are  NOT included:

icon text-secondary-400 includedArchitectural or Engineering Stamp - handled locally if required.

icon text-secondary-400 includedSite Plan - handled locally when required.

icon text-secondary-400 includedMechanical Drawings (location of heating and air equipment and ductwork) - your subcontractors handle this.

icon text-secondary-400 includedPlumbing Drawings (drawings showing the actual plumbing pipe sizes and locations) - your subcontractors handle this.

icon text-secondary-400 includedEnergy calculations - handled locally when required.

Related House Plans

Plan Collection
Plan Collection
Plan Collection
Plan#142-1170
Starting at$1395
2641
Sq Ft
1
Story
4
Bed
2.5
Bath
2
Car
Plan Collection
Plan Collection
Plan Collection
Plan#142-1204
Starting at$1345
2373
Sq Ft
1
Story
4
Bed
2.5
Bath
2
Car
Plan Collection
Plan Collection
Plan Collection
Plan#141-1148
Starting at$1570
2200
Sq Ft
1
Story
4
Bed
2.5
Bath
2
Car
View All

Other Plans By This Designer

Plan Collection
Plan Collection
Plan Collection
Plan#123-1112
Starting at$980
1611
Sq Ft
1
Story
3
Bed
2
Bath
2
Car
Plan Collection
Plan Collection
Plan Collection
Plan#123-1100
Starting at$850
1311
Sq Ft
1
Story
3
Bed
2
Bath
0
Car
Plan Collection
Plan Collection
Plan Collection
Plan#123-1116
Starting at$850
1035
Sq Ft
1
Story
3
Bed
2
Bath
0
Car