Estimate your costs based on your location and materials.
Yes! This plan can be customized—contact us for a free quote.
Yes! This plan can be customized—contact us for a free quote.
On some plans, Basement Foundations, Walkout Basement Foundations & 2x6 Conversions could take up to ONE WEEK to produce. Materials Lists could take up to FOUR WEEKS to produce and they will be for the ORIGINAL plan! Any modifications will NOT be reflected on the Materials List. NOTE FROM DESIGNER: If you purchase a CAD, you will automatically receive the unlimited build license - no need to purchase separately!
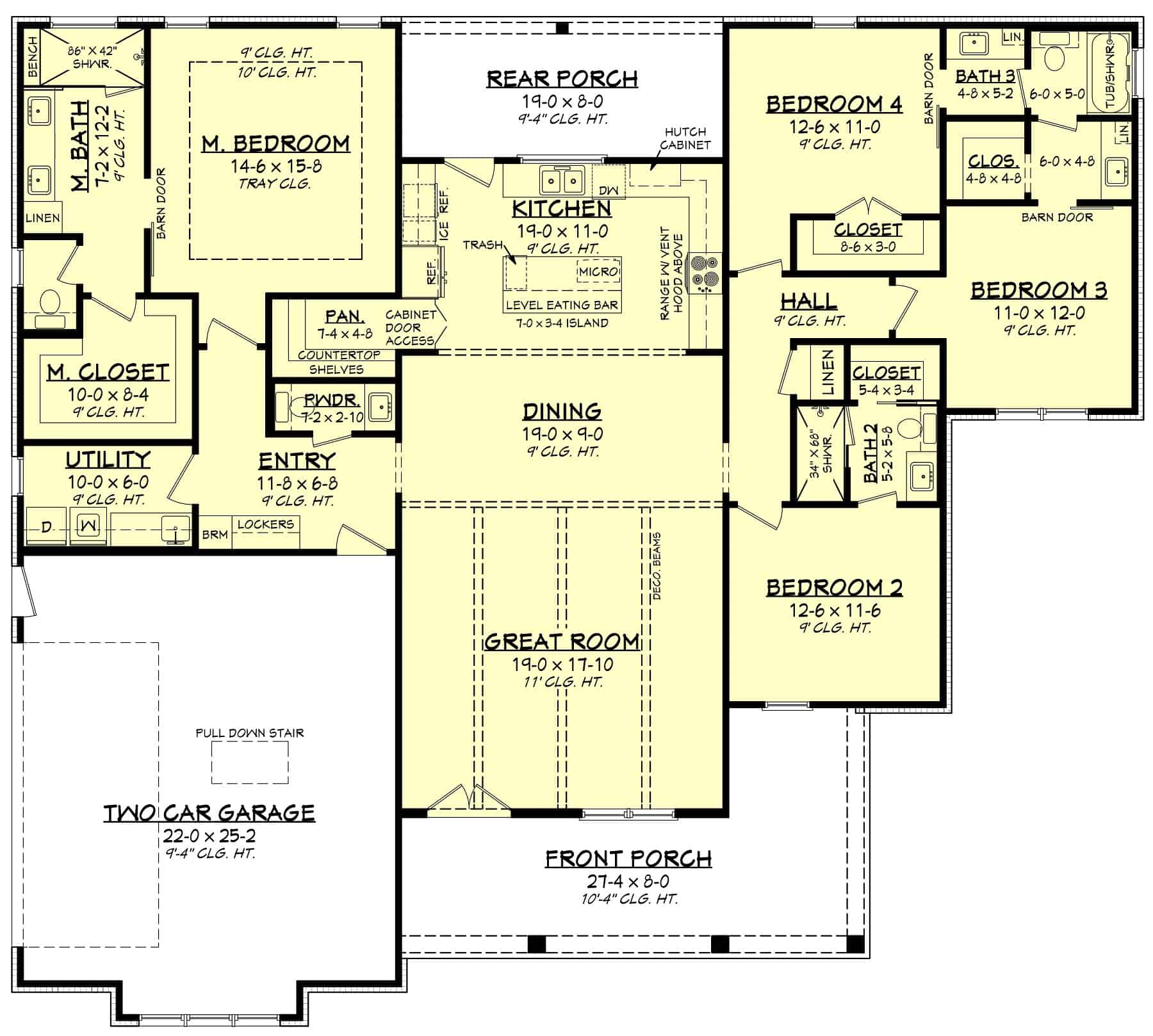
This single-family Contemporary Ranch Style House Plan has 2258 living square feet, 4 bedrooms, 3.5 bathrooms, and a 2-car garage space.
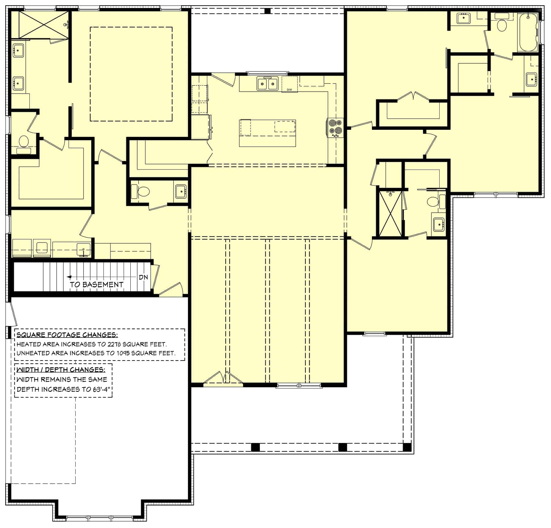
Note 1: With the basement option, the home has a total of 2278 heated square feet, 1095 unheated square feet, and the depth is 63’ 4”.
Note 2: Porch sq ft figures may include any deck sq ft as well.
If you have an eye for great design, you'll love this Contemporary Ranch style home with white vertical siding and covered entry porch with stately columns. You’ll also love the open and airy feel of the house with its variety of windows, making the rooms brilliant and bright. This well-done 1-story floor plan has 2258 square feet of heated and cooled living space and includes these special amenities:
• Huge walk-in pantry
• Powder room for the guest's convenience
• Spacious walk-in closets
Estimate your costs based on your location and materials.
All sales of house plans, modifications, and other products found on this site are final. No refunds or exchanges can be given once your order has begun the fulfillment process. Please see our Policies for additional information.
All plans offered on ThePlanCollection.com are designed to conform to the local building codes when and where the original plan was drawn.
The homes as shown in photographs and renderings may differ from the actual blueprints. For more detailed information, please review the floor plan images herein carefully.
Estimate your costs based on your location and materials.