3-Bedroom, 2200 Sq Ft Country Plan with Master Bathroom

Color rendering of Contemporary Cottage House Plan #116-1074

Images/Plans copyrighted by designer. Photos may reflect homeowner modifications.

About House Plan #116-1074

Sq Ft
2200
Sq Ft
Bedrooms
3
Bedrooms
Bathroom
2
Baths
Half Baths
1
Half Baths
Bedrooms
2
Cars
Bedrooms
2
Stories
Bedrooms
42' 0'
Width
Bedrooms
48
Depth
Starting at$1876.36What's included
STEP 1Bedrooms
STEP 2Bedrooms
STEP 3Bedrooms

Subtotal:$0
Plan Collection

How much will it cost to build?

Estimate your costs based on your location and materials.

Free Cost Instant Estimator

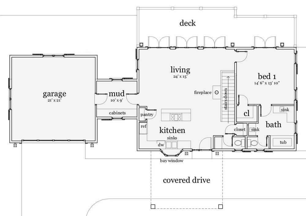
Floor Plans

Floor Plan Main Level
Floor Plan Main Level
Lower Level
Lower Level
Plan Collection

Can I modify this plan?

Yes! This plan can be customized—contact us for a free quote.

Additional Notes from Designer

CAD files for this plan will be delivered in both DXF (AutoCad readable) and Sketchup Pro formats.

House Plan Description

This lovely Cottage style home plan with Contemporary influences (House Plan #116-1074) has 2200 sq. ft. of living space. The 2 story floor plan has 3 bedrooms, 2 full bathrooms, and 1 half bath.

The home combines the relaxed atmosphere of rustic mountain living with the convenience of today's technology and efficiency. The grand living room features a fireplace and magnificent view of the property. The master suite is spacious and has its own access to the rear deck. Two complete suites downstairs are perfect for guests or family reunions.

Home Details

Summary
Plan #:116-1074
Starting at:$1876.36
Floors:2
Bedrooms:3
Full Baths:2
Half Baths:1
Garage:
Square Footage
Heated Area:2200 Sq. Ft.
Basement:1160 Sq. Ft.
First Floor:1040 Sq. Ft.
Unheated Area:
Garage:256 Sq. Ft.
Dimensions
Ridge Height:22' 0''
Architectural Styles
Exterior Wall Material
Rock/StoneWood Siding
Roofing Type
Gable
Roofing Material
Metal
Roof Pitch
8/12
Ceiling Height
10 Foot Ceiling8 Foot Ceiling
Special Feature
FireplaceGuest RoomMud RoomMain Level LaundrySplit BathroomOpen Floor Plan
Garage Type
Attached GarageFront Entry
Fireplaces
One Fireplace
Exterior Wall Framing
2x6
Building Lot Type
Down SiteNarrow Lot DesignView Lot
Kitchen Features
Kitchen IslandEat-In Kitchen
Porches and Exterior Features
BreezewaySundeckPortico
Master Suite Features
Main Floor MasterMaster BathroomPrivate DeckSecond Floor MasterSplit Master Bedroom

What’s Included

Most plan sets include the following:

icon text-secondary-400 includedFloor plans

icon text-secondary-400 includedExterior elevations

icon text-secondary-400 includedBuilding sections

icon text-secondary-400 includedFoundation plan

icon text-secondary-400 includedFloor & Roof structure layouts

icon text-secondary-400 includedWall section

icon text-secondary-400 includedNotes

icon text-secondary-400 includedElectrical layout (switches, outlets)

icon text-secondary-400 includedUnlimited license

What’s Not Included

These items are  NOT included:

icon text-secondary-400 includedArchitectural or Engineering Stamp - handled locally if required.

icon text-secondary-400 includedSite Plan - handled locally when required.

icon text-secondary-400 includedMechanical Drawings (location of heating and air equipment and ductwork) - your subcontractors handle this.

icon text-secondary-400 includedPlumbing Drawings (drawings showing the actual plumbing pipe sizes and locations) - your subcontractors handle this.

icon text-secondary-400 includedEnergy calculations - handled locally when required.

Related House Plans

Plan Collection
Plan Collection
Plan Collection
Plan#116-1015
Starting at$0
2459
Sq Ft
2
Story
3
Bed
2.5
Bath
2
Car
Plan Collection
Plan Collection
Plan Collection
Plan#126-1297
Starting at$1715
2257
Sq Ft
2
Story
3
Bed
2.5
Bath
2
Car
Plan Collection
Plan Collection
Plan Collection
Plan#169-1146
Starting at$720
1664
Sq Ft
2
Story
3
Bed
2.5
Bath
2
Car
View All

Other Plans By This Designer

Plan Collection
Plan Collection
Plan Collection
Plan#116-1106
Starting at$0
5165
Sq Ft
2
Story
5
Bed
5.5
Bath
3
Car
Plan Collection
Plan Collection
Plan Collection
Plan#116-1086
Starting at$0
2616
Sq Ft
2
Story
2
Bed
2.5
Bath
0
Car
Plan Collection
Plan Collection
Plan Collection
Plan#116-1126
Starting at$0
750
Sq Ft
1
Story
2
Bed
1
Bath
0
Car