4-Bedroom, 2066 Sq Ft Craftsman Plan with Family Room

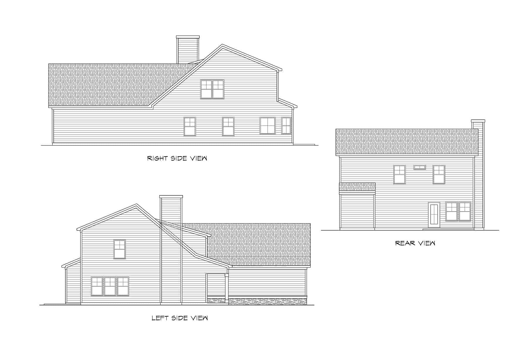
Front elevation of Craftsman home (ThePlanCollection: House Plan #213-1023)

Images/Plans copyrighted by designer. Photos may reflect homeowner modifications.

About House Plan #213-1023

Sq Ft
2066
Sq Ft
Bedrooms
4
Bedrooms
Bathroom
2
Baths
Half Baths
1
Half Baths
Bedrooms
2
Cars
Bedrooms
2
Stories
Bedrooms
39' 9'
Width
Bedrooms
65
Depth
Starting at$1300.00What's included
STEP 1Bedrooms
STEP 2Bedrooms
STEP 3Bedrooms

Subtotal:$0
Plan Collection

How much will it cost to build?

Estimate your costs based on your location and materials.

Free Cost Instant Estimator

Floor Plans

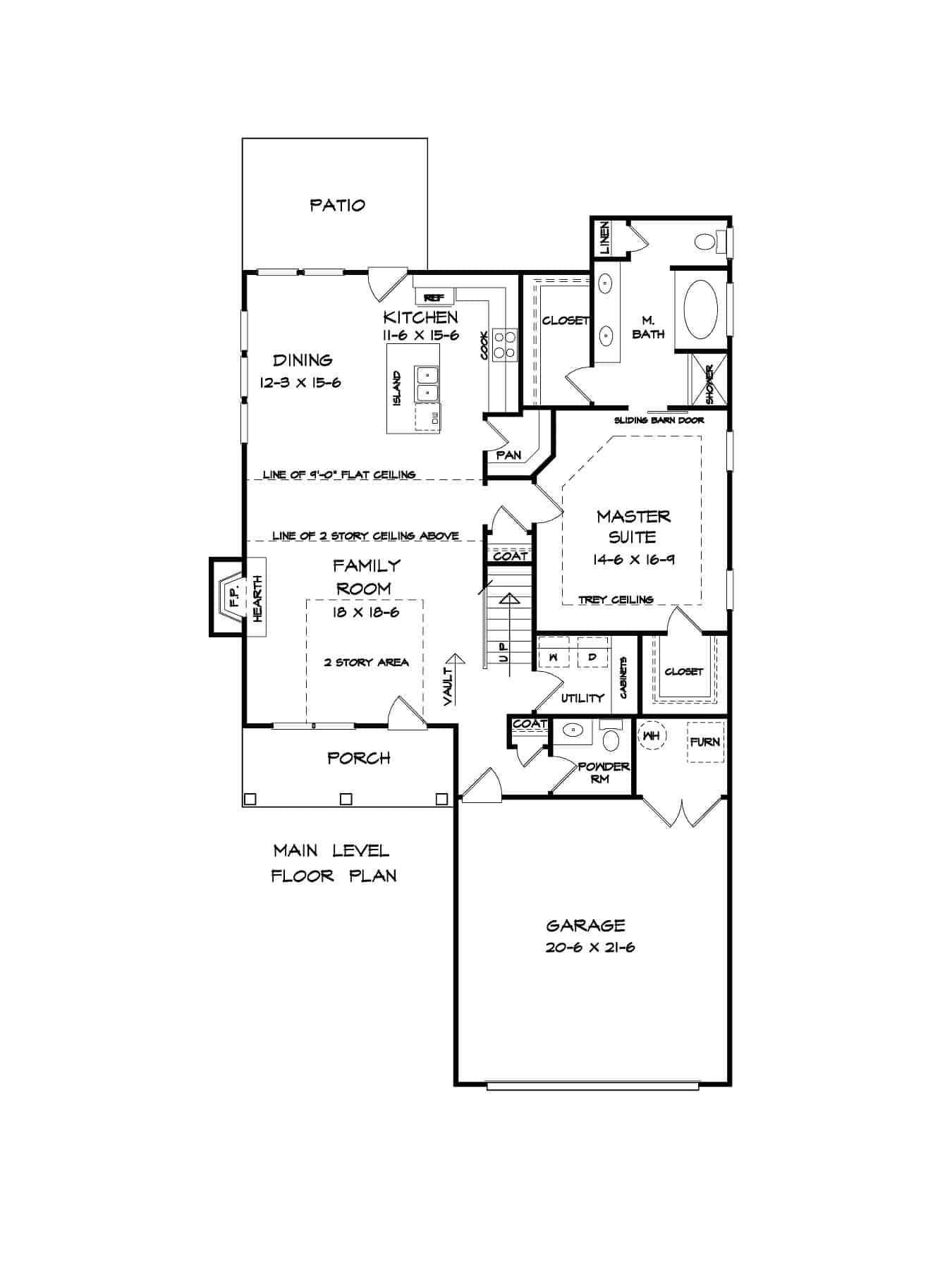
Floor Plan First Story
Floor Plan First Story
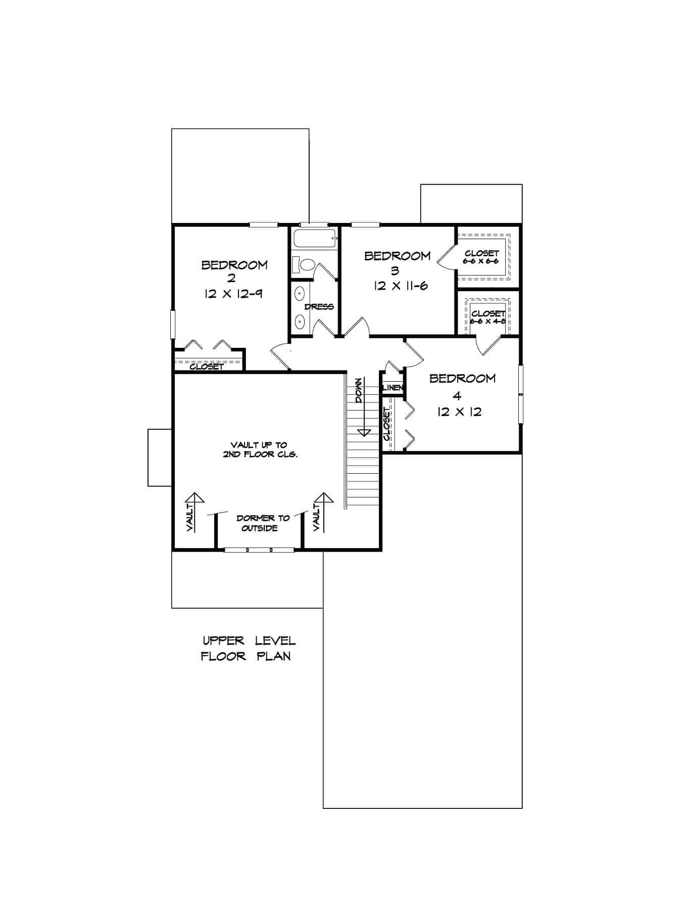
Floor Plan Second Story
Floor Plan Second Story
Plan Collection

Can I modify this plan?

Yes! This plan can be customized—contact us for a free quote.

Additional Notes from Designer

<p>Note 1: Alternative foundations for this plan are available as a modification. Please complete and submit our &quot;Modify this Plan&quot; form to get a free quote.</p> <p>Note 2: Porch sq ft figures may include any deck sq ft as well.</p>

House Plan Description

<p>This splendid Traditional home with Craftsman influences is 2,066 square feet with 4 bedrooms, 2.5 baths, and a 2-car garage. Additionally, this amazing home offers the following features:</p> <ul> <li>Family Room</li> <li>Mudroom</li> <li>Walk-in Pantry</li> <li>Master Bedroom with Walk-in Closet</li> </ul>

Home Details

Summary
Plan #:213-1023
Starting at:$1300.00
Floors:2
Bedrooms:4
Full Baths:2
Half Baths:1
Garage:
Square Footage
Heated Area:2066 Sq. Ft.
First Floor:1393 Sq. Ft.
Second Floor:673 Sq. Ft.
Unheated Area:
Garage:501 Sq. Ft.
Dimensions
Width:39' 9''
Depth:65' 10''
Architectural Styles
Exterior Wall Material
Vinyl SidingRock/StoneWood Siding
Roofing Type
Gable/Dormer
Roofing Material
Asphalt Shingles
Roof Pitch
7/1210/12
Ceiling Height
9 Foot Ceiling8 Foot Ceiling12 Foot Ceiling
Special Feature
FireplaceMud RoomFamily RoomMain Level LaundrySplit BathroomStorageVaulted CeilingsOpen Floor Plan
Garage Type
Attached GarageFront Entry
Fireplaces
One Fireplace
Exterior Wall Framing
2x4
Building Lot Type
Narrow Lot Design
Kitchen Features
Kitchen IslandWalk-in PantryEat-In Kitchen
Porches and Exterior Features
Covered Front PorchCovered Rear Patio
Master Suite Features
Main Floor MasterMaster BathroomWalk In ClosetSplit Master Bedroom

What’s Included

Most plan sets include the following:

What’s Not Included

These items are  NOT included:

Related House Plans

Plan Collection
Plan Collection
Plan Collection
Plan#169-1035
Starting at$720
2482
Sq Ft
2
Story
4
Bed
2.5
Bath
3
Car
Plan Collection
Plan Collection
Plan Collection
Plan#178-1080
Starting at$1005
1980
Sq Ft
2
Story
4
Bed
2.5
Bath
2
Car
Plan Collection
Plan Collection
Plan Collection
Plan#173-1015
Starting at$1150
1840
Sq Ft
2
Story
4
Bed
2.5
Bath
2
Car
View All

Other Plans By This Designer

Plan Collection
Plan Collection
Plan Collection
Plan#213-1004
Starting at$1400
3061
Sq Ft
1
Story
3
Bed
3.5
Bath
3
Car
Plan Collection
Plan Collection
Plan Collection
Plan#213-1009
Starting at$1400
3277
Sq Ft
2
Story
4
Bed
4.5
Bath
3
Car
Plan Collection
Plan Collection
Plan Collection
Plan#213-1019
Starting at$1400
3990
Sq Ft
1
Story
4
Bed
4.5
Bath
3
Car