Estimate your costs based on your location and materials.
Yes! This plan can be customized—contact us for a free quote.
Yes! This plan can be customized—contact us for a free quote.
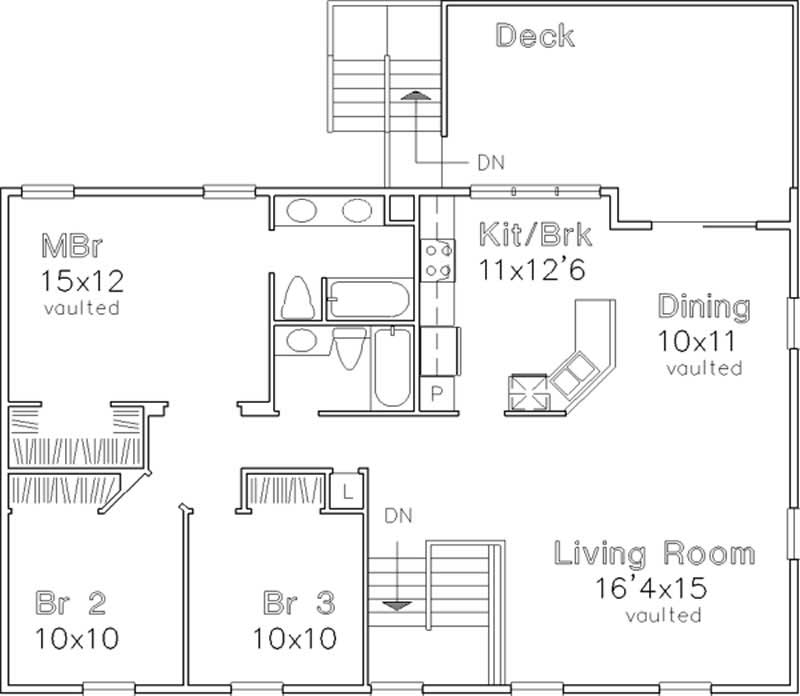
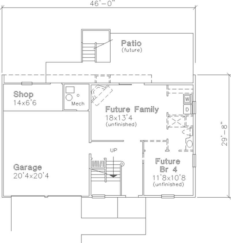
To save money at initial construction, the lower floor of this attractive starter home may be finished later. Brightened by a tall window, the stairway off the main entry leads up to the spacious living room. Enhanced by a soaring 12-ft. vaulted ceiling, the living room adjoins the dining room to create a continuous entertainment space. Sliding glass doors open to a backyard deck. The gourmet kitchen offers an angled snack counter, a handy pantry and a bright and airy breakfast nook. Down the hall, double doors open into the master bedroom, where an 11½-ft. vaulted ceiling adds a feeling of...
Estimate your costs based on your location and materials.
All sales of house plans, modifications, and other products found on this site are final. No refunds or exchanges can be given once your order has begun the fulfillment process. Please see our Policies for additional information.
All plans offered on ThePlanCollection.com are designed to conform to the local building codes when and where the original plan was drawn.
The homes as shown in photographs and renderings may differ from the actual blueprints. For more detailed information, please review the floor plan images herein carefully.
Estimate your costs based on your location and materials.