4-Bedroom, 2041 Sq Ft Contemporary Plan with Covered Rear Porch

Front elevation photo of this contemporary home (ThePlanCollection: House Plan #190-1006)

Images/Plans copyrighted by designer. Photos may reflect homeowner modifications.

About House Plan #190-1006

Sq Ft
2041
Sq Ft
Bedrooms
4
Bedrooms
Bathroom
2
Baths
Half Baths
0
Half Baths
Bedrooms
2
Cars
Bedrooms
1
Stories
Bedrooms
60' 4'
Width
Bedrooms
56
Depth
Starting at$1050.00What's included
STEP 1Bedrooms
STEP 2Bedrooms
STEP 3Bedrooms

Subtotal:$0
Plan Collection

How much will it cost to build?

Estimate your costs based on your location and materials.

Free Cost Instant Estimator

Floor Plans

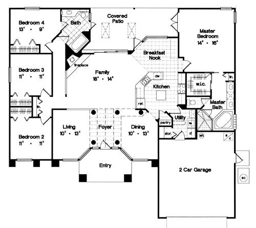
Floor Plan Main Level
Floor Plan Main Level
Plan Collection

Can I modify this plan?

Yes! This plan can be customized—contact us for a free quote.

House Plan Description

This lovely Contemporary style home ideal for a beachfront or vacation lifestyle (House Plan #190-1006) has 2041 square feet of living space. The 1 story floor plan includes 4 bedrooms.

Home Details

Summary
Plan #:190-1006
Starting at:$1050.00
Floors:1
Bedrooms:4
Full Baths:2
Half Baths:0
Garage:
Square Footage
Heated Area:2041 Sq. Ft.
First Floor:2041 Sq. Ft.
Unheated Area:
Garage:484 Sq. Ft.
Porch:340 Sq. Ft.
Dimensions
Width:60' 4''
Ridge Height:19'' 0''
Architectural Styles
Exterior Wall Material
Stucco
Roofing Type
Hip
Roofing Material
Tiles
Roof Pitch
6/12
Ceiling Height
8 Foot Ceiling
Special Feature
FireplaceDining RoomFamily RoomMain Level LaundryColor PhotosVaulted CeilingsOpen Floor Plan
Garage Type
Attached GarageFront Entry
Fireplaces
One Fireplace
Exterior Wall Framing
2x4
Building Lot Type
Flat Site
Kitchen Features
Kitchen IslandNook/Breakfast AreaWalk-in PantryPeninsula/Eating BarEat-In Kitchen
Porches and Exterior Features
Covered Front PorchCovered Rear Porch
Master Suite Features
Main Floor MasterMaster BathroomWalk In ClosetSplit Master Bedroom

What’s Included

Most plan sets include the following:

icon text-secondary-400 includedCover Sheet

icon text-secondary-400 includedNotes Page

icon text-secondary-400 includedFloor Plans

icon text-secondary-400 includedFoundation Plan

icon text-secondary-400 includedExterior Elevations & Section

icon text-secondary-400 includedRoof Plan – The roof plan shows a bird's eye view of the overall layout of the roof, ridges, valleys, and slopes. Our roofs are designed for trusses and a local truss manufacturer is needed to design the trusses for each home to comply with local codes and regulations

icon text-secondary-400 includedElectrical Plan

icon text-secondary-400 includedDetail Sheet(s)

What’s Not Included

These items are  NOT included:

icon text-secondary-400 includedArchitectural or Engineering Stamp - handled locally if required.

icon text-secondary-400 includedSite Plan - handled locally when required.

icon text-secondary-400 includedMechanical Drawings (location of heating and air equipment and ductwork) - your subcontractors handle this.

icon text-secondary-400 includedPlumbing Drawings (drawings showing the actual plumbing pipe sizes and locations) - your subcontractors handle this.

icon text-secondary-400 includedEnergy calculations - handled locally when required.

Related House Plans

Plan Collection
Plan Collection
Plan Collection
Plan#150-1008
Starting at$1345
1938
Sq Ft
1
Story
4
Bed
2
Bath
2
Car
Plan Collection
Plan Collection
Plan Collection
Plan#150-1004
Starting at$1345
1933
Sq Ft
1
Story
4
Bed
2
Bath
2
Car
Plan Collection
Plan Collection
Plan Collection
Plan#116-1031
Starting at$0
2457
Sq Ft
1
Story
4
Bed
2
Bath
2
Car
View All

Other Plans By This Designer

Plan Collection
Plan Collection
Plan Collection
Plan#190-1014
Starting at$3150
6462
Sq Ft
2
Story
5
Bed
5.5
Bath
4
Car
Plan Collection
Plan Collection
Plan Collection
Plan#190-1005
Starting at$1050
2089
Sq Ft
1
Story
4
Bed
3
Bath
2
Car
Plan Collection
Plan Collection
Plan Collection
Plan#190-1009
Starting at$1450
3424
Sq Ft
1
Story
5
Bed
4
Bath
3
Car