3-Bedroom, 1783 Sq Ft Mediterranean Plan with Split Master Bedroom

Front elevation of Mediterranean home (ThePlanCollection: House Plan #190-1013)

Images/Plans copyrighted by designer. Photos may reflect homeowner modifications.

About House Plan #190-1013

Sq Ft
1783
Sq Ft
Bedrooms
3
Bedrooms
Bathroom
2
Baths
Half Baths
0
Half Baths
Bedrooms
2
Cars
Bedrooms
1
Stories
Bedrooms
60' 0'
Width
Bedrooms
45
Depth
Starting at$950.00What's included
STEP 1Bedrooms
STEP 2Bedrooms
STEP 3Bedrooms

Subtotal:$0
Plan Collection

How much will it cost to build?

Estimate your costs based on your location and materials.

Free Cost Instant Estimator

Floor Plans

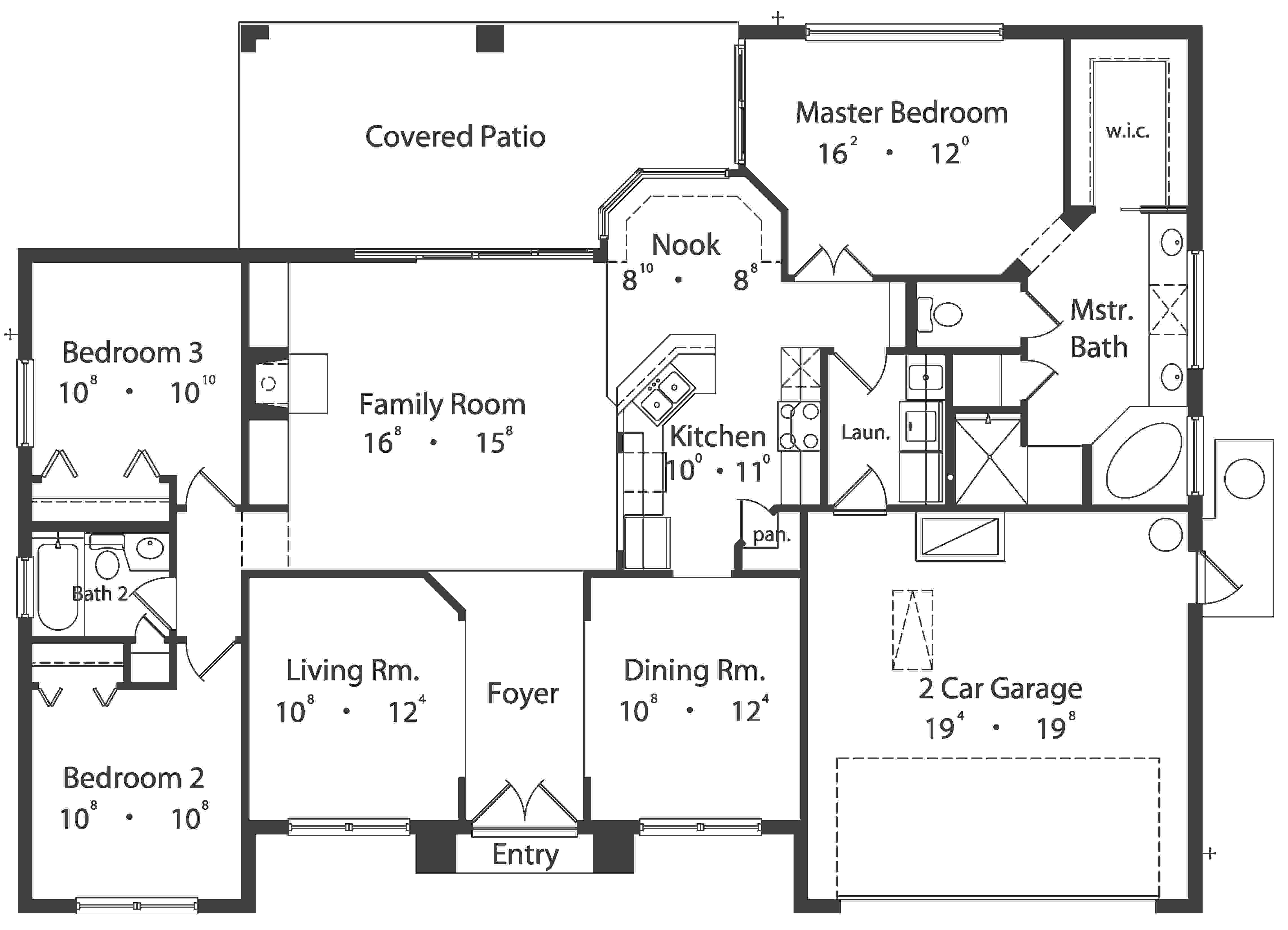
Floor Plan Main Level
Floor Plan Main Level
Floor Plan Main Level
Floor Plan Main Level
Plan Collection

Can I modify this plan?

Yes! This plan can be customized—contact us for a free quote.

House Plan Description

This lovely ranch home with contemporary influences (House Plan #190-1013) has 1783 square feet of living space. The 1 story floor plan includes 3 bedrooms. The floor plan also comes with an alternate layout for an additional 4th bedroom.

Home Details

Summary
Plan #:190-1013
Starting at:$950.00
Floors:1
Bedrooms:3
Full Baths:2
Half Baths:0
Garage:
Square Footage
Heated Area:1783 Sq. Ft.
First Floor:1783 Sq. Ft.
Unheated Area:
Garage:409 Sq. Ft.
Porch:279 Sq. Ft.
Dimensions
Ridge Height:20' 0''
Architectural Styles
Exterior Wall Material
Stucco
Roofing Type
Hip
Roofing Material
Asphalt Shingles
Roof Pitch
6/12
Ceiling Height
10 Foot Ceiling
Special Feature
FireplaceDining RoomFamily RoomMain Level LaundryVaulted CeilingsOpen Floor Plan
Garage Type
Attached Garage
Fireplaces
One Fireplace
Exterior Wall Framing
2x4
Kitchen Features
Kitchen IslandNook/Breakfast AreaWalk-in PantryPeninsula/Eating BarEat-In Kitchen
Porches and Exterior Features
Covered Front PorchCovered Rear Patio
Master Suite Features
Main Floor MasterSplit Master Bedroom

What’s Included

Most plan sets include the following:

icon text-secondary-400 includedCover Sheet

icon text-secondary-400 includedNotes Page

icon text-secondary-400 includedFloor Plans

icon text-secondary-400 includedFoundation Plan

icon text-secondary-400 includedExterior Elevations & Section

icon text-secondary-400 includedRoof Plan – The roof plan shows a bird's eye view of the overall layout of the roof, ridges, valleys, and slopes. Our roofs are designed for trusses and a local truss manufacturer is needed to design the trusses for each home to comply with local codes and regulations

icon text-secondary-400 includedElectrical Plan

icon text-secondary-400 includedDetail Sheet(s)

What’s Not Included

These items are  NOT included:

icon text-secondary-400 includedArchitectural or Engineering Stamp - handled locally if required.

icon text-secondary-400 includedSite Plan - handled locally when required.

icon text-secondary-400 includedMechanical Drawings (location of heating and air equipment and ductwork) - your subcontractors handle this.

icon text-secondary-400 includedPlumbing Drawings (drawings showing the actual plumbing pipe sizes and locations) - your subcontractors handle this.

icon text-secondary-400 includedEnergy calculations - handled locally when required.

Related House Plans

Plan Collection
Plan Collection
Plan Collection
Plan#117-1092
Starting at$1095
2091
Sq Ft
1
Story
3
Bed
2.5
Bath
2
Car
Plan Collection
Plan Collection
Plan Collection
Plan#141-1243
Starting at$1485
1640
Sq Ft
1
Story
3
Bed
2
Bath
2
Car
Plan Collection
Plan Collection
Plan Collection
Plan#176-1012
Starting at$600
1412
Sq Ft
1
Story
3
Bed
2
Bath
0
Car
View All

Other Plans By This Designer

Plan Collection
Plan Collection
Plan Collection
Plan#190-1014
Starting at$3150
6462
Sq Ft
2
Story
5
Bed
5.5
Bath
4
Car
Plan Collection
Plan Collection
Plan Collection
Plan#190-1005
Starting at$1050
2089
Sq Ft
1
Story
4
Bed
3
Bath
2
Car
Plan Collection
Plan Collection
Plan Collection
Plan#190-1009
Starting at$1450
3424
Sq Ft
1
Story
5
Bed
4
Bath
3
Car