2-Bed, 1763 Sq Ft Country Ranch with Walk-in Pantry

Ranch style house design (ThePlanCollection: Plan #196-1285)

Images/Plans copyrighted by designer. Photos may reflect homeowner modifications.

About House Plan #196-1285

Sq Ft
1763
Sq Ft
Bedrooms
2
Bedrooms
Bathroom
2
Baths
Half Baths
0
Half Baths
Bedrooms
3
Cars
Bedrooms
1
Stories
Bedrooms
81' 2'
Width
Bedrooms
45
Depth
Starting at$1225.00What's included
STEP 1Bedrooms
STEP 2Bedrooms
STEP 3Bedrooms

Subtotal:$0
Plan Collection

How much will it cost to build?

Estimate your costs based on your location and materials.

Free Cost Instant Estimator

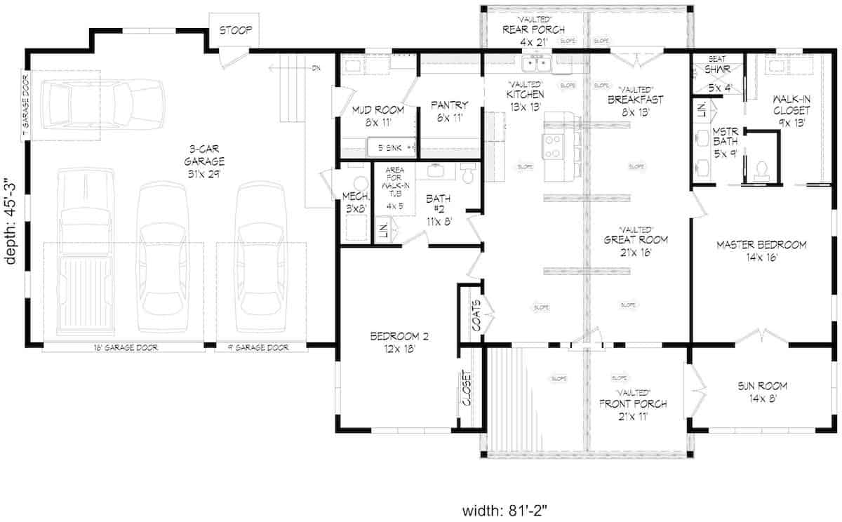
Floor Plans

Main Level
Main Level
Plan Collection

Can I modify this plan?

Yes! This plan can be customized—contact us for a free quote.

Additional Notes from Designer

NOTE FROM DESIGNER REGARDING PLAN PURCHASES: 80% of a 5 set purchase price can be applied to any PDF or CAD license upgrade. Additionally, 80% of PDF Study purchase price can be applied to any CAD or PDF license upgrade.

House Plan Description

Welcome to this excellently designed Ranch home with Country style inspiration – with a lovely vaulted porch roomy enough to fit a small seating area. Lots of living space makes this home the perfect place for relaxing and entertaining. The house covers a total heated and cooled area of 1763 square feet and includes features such as:

• Vaulted ceilings
• Spacious walk-in kitchen pantry
• Sunroom attached to the master suite
• Roomy mud/laundry room with a bench
• Vaulted...

Home Details

Summary
Plan #:196-1285
Starting at:$1225.00
Floors:1
Bedrooms:2
Full Baths:2
Half Baths:0
Garage:
Square Footage
Heated Area:1763 Sq. Ft.
First Floor:1763 Sq. Ft.
Unheated Area:
Garage:954 Sq. Ft.
Porch:313 Sq. Ft.
Dimensions
Width:81' 2''
Depth:45' 3''
Architectural Styles
Exterior Wall Material
StuccoWood Siding
Roofing Type
Gable
Roofing Material
Metal
Roof Pitch
12/126/12
Ceiling Height
9 Foot Ceiling
Special Feature
Mud RoomFamily RoomMain Level LaundrySplit BathroomStorageVaulted CeilingsOpen Floor Plan
Garage Type
Attached GarageFront Entry
Exterior Wall Framing
2x6
Building Lot Type
Flat Site
Kitchen Features
Kitchen IslandNook/Breakfast AreaWalk-in PantryPeninsula/Eating Bar
Porches and Exterior Features
Covered Front PorchCovered Rear Porch
Master Suite Features
Main Floor MasterMaster BathroomWalk In ClosetSplit Master Bedroom

What’s Included

Most plan sets include the following:

What’s Not Included

These items are  NOT included:

Related House Plans

Plan Collection
Plan Collection
Plan Collection
Plan#138-1003
Starting at$1050
1922
Sq Ft
1
Story
2
Bed
2
Bath
1
Car
Plan Collection
Plan Collection
Plan Collection
Plan#178-1047
Starting at$945
1394
Sq Ft
1
Story
2
Bed
2
Bath
2
Car
Plan Collection
Plan Collection
Plan Collection
Plan#100-1205
Starting at$1300
1440
Sq Ft
1
Story
2
Bed
2
Bath
2
Car
View All

Other Plans By This Designer

Plan Collection
Plan Collection
Plan Collection
Plan#196-1211
Starting at$695
650
Sq Ft
2
Story
1
Bed
1
Bath
2
Car
Plan Collection
Plan Collection
Plan Collection
Plan#196-1196
Starting at$810
1500
Sq Ft
1
Story
2
Bed
2
Bath
3
Car
Plan Collection
Plan Collection
Plan Collection
Plan#196-1216
Starting at$845
1727
Sq Ft
2
Story
2
Bed
2
Bath
2
Car