Estimate your costs based on your location and materials.
Yes! This plan can be customized—contact us for a free quote.
Yes! This plan can be customized—contact us for a free quote.
Alternative foundations for this plan are available as a modification. Please complete and submit our "Modify this Plan" form to get a free quote.
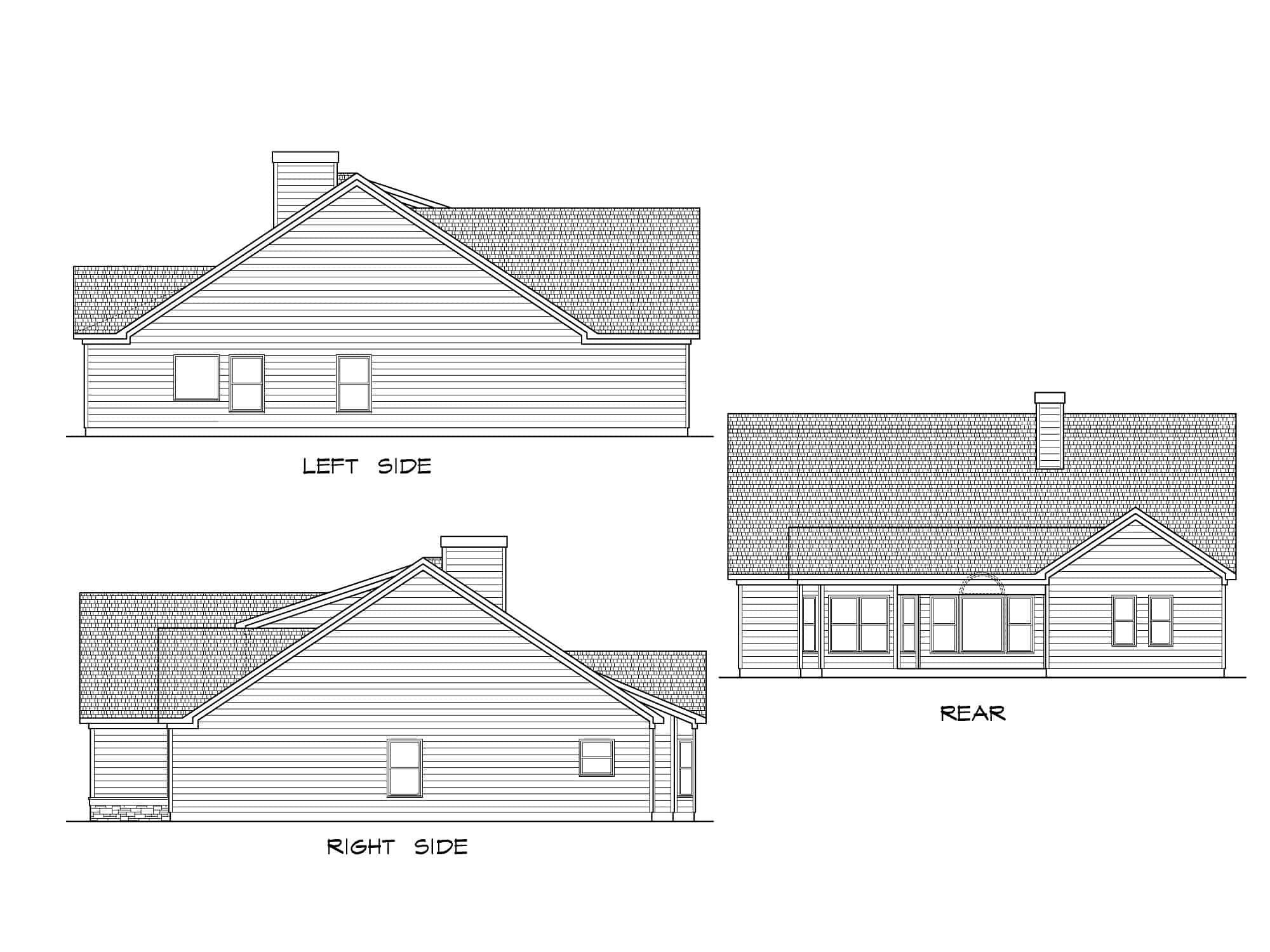
This stunning Ranch home with Craftsman influences is 1,730 square feet with 3 bedrooms, 2 baths, and a 2-car garage. Additionally, this beautiful home offers the following features:
Estimate your costs based on your location and materials.
All sales of house plans, modifications, and other products found on this site are final. No refunds or exchanges can be given once your order has begun the fulfillment process. Please see our Policies for additional information.
All plans offered on ThePlanCollection.com are designed to conform to the local building codes when and where the original plan was drawn.
The homes as shown in photographs and renderings may differ from the actual blueprints. For more detailed information, please review the floor plan images herein carefully.
Estimate your costs based on your location and materials.