2-Bedroom, 1712 Sq Ft Cape Cod Plan with Master Bathroom

Front view of Contemporary home (ThePlanCollection: House Plan #146-2056)

Images/Plans copyrighted by designer. Photos may reflect homeowner modifications.

About House Plan #146-2056

Sq Ft
1712
Sq Ft
Bedrooms
2
Bedrooms
Bathroom
2
Baths
Half Baths
0
Half Baths
Bedrooms
2
Cars
Bedrooms
2
Stories
Bedrooms
49' 0'
Width
Bedrooms
51
Depth
Starting at$980.00What's included
STEP 1Bedrooms
STEP 2Bedrooms
STEP 3Bedrooms

Subtotal:$0
Plan Collection

How much will it cost to build?

Estimate your costs based on your location and materials.

Free Cost Instant Estimator

Floor Plans

Main Level
Main Level
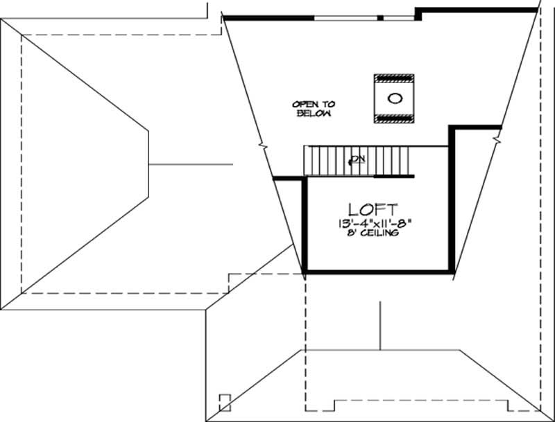
Upper Level
Upper Level
Plan Collection

Can I modify this plan?

Yes! This plan can be customized—contact us for a free quote.

House Plan Description

Tall, south-facing windows let solar energy into the home, where it is absorbed into the hard-surface flooring and fireplace mass walls. The open kitchen overlooks the dining area, which may be used for formal and informal meals. A skylighted loft overlooks the living room, while the master bedroom lies nestled in a corner quadrant.

Home Details

Summary
Plan #:146-2056
Starting at:$980.00
Floors:2
Bedrooms:2
Full Baths:2
Half Baths:0
Garage:
Square Footage
Heated Area:1712 Sq. Ft.
First Floor:1490 Sq. Ft.
Second Floor:222 Sq. Ft.
Unheated Area:
Dimensions
Ridge Height:21-0' 0''
Architectural Styles
Exterior Wall Material
Wood Siding
Roofing Type
Hip
Special Feature
FireplaceEnergy Efficient
Garage Type
Attached GarageSide Entry
Fireplaces
One Fireplace
Exterior Wall Framing
2x4

What’s Included

Most plan sets include the following:

What’s Not Included

These items are  NOT included:

icon text-secondary-400 includedArchitectural or Engineering Stamp - handled locally if required.

icon text-secondary-400 includedSite Plan - handled locally when required.

icon text-secondary-400 includedMechanical Drawings (location of heating and air equipment and ductwork) - your subcontractors handle this.

icon text-secondary-400 includedPlumbing Drawings (drawings showing the actual plumbing pipe sizes and locations) - your subcontractors handle this.

icon text-secondary-400 includedEnergy calculations - handled locally when required.

Related House Plans

Plan Collection
Plan Collection
Plan Collection
Plan#147-1009
Starting at$693
1687
Sq Ft
2
Story
2
Bed
2
Bath
2
Car
Plan Collection
Plan Collection
Plan Collection
Plan#119-1132
Starting at$1045
1888
Sq Ft
2
Story
2
Bed
2
Bath
0
Car
Plan Collection
Plan Collection
Plan Collection
Plan#146-1844
Starting at$885
1296
Sq Ft
2
Story
2
Bed
2
Bath
2
Car
View All

Other Plans By This Designer

Plan Collection
Plan Collection
Plan Collection
Plan#146-2806
Starting at$980
1933
Sq Ft
2
Story
3
Bed
2
Bath
0
Car
Plan Collection
Plan Collection
Plan Collection
Plan#146-2810
Starting at$1285
3594
Sq Ft
2
Story
4
Bed
3.5
Bath
2
Car
Plan Collection
Plan Collection
Plan Collection
Plan#146-1917
Starting at$1120
2525
Sq Ft
2
Story
4
Bed
2.5
Bath
3
Car