3-Bedroom, 1700 Sq Ft Cape Cod Plan with Butler's Pantry

Here is another computer rendering of a Cape Cod Homeplan.

Images/Plans copyrighted by designer. Photos may reflect homeowner modifications.

About House Plan #141-1091

Sq Ft
1700
Sq Ft
Bedrooms
3
Bedrooms
Bathroom
2
Baths
Half Baths
0
Half Baths
Bedrooms
2
Cars
Bedrooms
1
Stories
Bedrooms
66' 8'
Width
Bedrooms
47
Depth
Starting at$1485.00What's included
STEP 1Bedrooms
STEP 2Bedrooms
STEP 3Bedrooms

Subtotal:$0
Plan Collection

How much will it cost to build?

Estimate your costs based on your location and materials.

Free Cost Instant Estimator

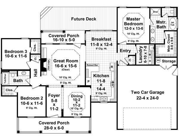
Floor Plans

Floor Plan First Story
Floor Plan First Story
Plan Collection

Can I modify this plan?

Yes! This plan can be customized—contact us for a free quote.

Additional Notes from Designer

Please Note! This designer does NOT ship paper copies to Canada. Please order your plans in electronic format (PDF or CAD)! USDA Approval is available for this plan. If interested, submit a modification request for a free quote. What is USDA Approval? Certification that a particular house plan meets the housing requirements of the US Department of Agriculture's Rural Housing Service. This is one of the requirements if you intend to apply for a loan through the Rural Housing Service.

House Plan Description

This inviting country home includes all the features that you and your family have always dreamed of having. The well-appointed floorplan design makes use of every available space while providing many extras that you would expect to find in a much larger floorplan!

Home Details

Summary
Plan #:141-1091
Starting at:$1485.00
Floors:1
Bedrooms:3
Full Baths:2
Half Baths:0
Garage:
Square Footage
Heated Area:1700 Sq. Ft.
First Floor:1700 Sq. Ft.
Unheated Area:
Dimensions
Width:66' 8''
Depth:47' 10''
Ridge Height:25' 0''
Architectural Styles
Exterior Wall Material
BrickWood Siding
Roofing Type
Gable/Dormer
Roofing Material
Asphalt Shingles
Roof Pitch
10/12
Special Feature
FireplaceDining RoomMain Level LaundryEnergy EfficientSplit BathroomStorage
Garage Type
Attached GarageFront Entry
Fireplaces
One Fireplace
Exterior Wall Framing
2x4
Building Lot Type
Flat Site
Kitchen Features
Nook/Breakfast AreaPeninsula/Eating BarEat-In Kitchen
Porches and Exterior Features
Covered Front PorchCovered Rear PorchSundeck
Master Suite Features
Main Floor MasterMaster BathroomWalk In Closet

What’s Included

Most plan sets include the following:

icon text-secondary-400 includedCover page with rendering

icon text-secondary-400 includedfoundation plan with typical details

icon text-secondary-400 includedfloor plans with ceiling framing notes

icon text-secondary-400 includedfour exterior views of exterior

icon text-secondary-400 includedroof plan, and rafter layout plan

icon text-secondary-400 includedfull cross section through house, and typical wall sections

icon text-secondary-400 includedstair section (if there are stairs)

icon text-secondary-400 includedBonus room/garage section if there is a bonus room/garage

icon text-secondary-400 includedInterior cabinet drawings

icon text-secondary-400 includedMisc. structural details

icon text-secondary-400 includedElectrical plan with lighting, outlets, switches, etc..

What’s Not Included

These items are  NOT included:

icon text-secondary-400 includedArchitectural or Engineering Stamp - handled locally if required.

icon text-secondary-400 includedSite Plan - handled locally when required.

icon text-secondary-400 includedMechanical Drawings (location of heating and air equipment and ductwork) - your subcontractors handle this.

icon text-secondary-400 includedPlumbing Drawings (drawings showing the actual plumbing pipe sizes and locations) - your subcontractors handle this.

icon text-secondary-400 includedEnergy calculations - handled locally when required.

Related House Plans

Plan Collection
Plan Collection
Plan Collection
Plan#117-1092
Starting at$1095
2091
Sq Ft
1
Story
3
Bed
2.5
Bath
2
Car
Plan Collection
Plan Collection
Plan Collection
Plan#142-1041
Starting at$1245
1300
Sq Ft
1
Story
3
Bed
2
Bath
2
Car
Plan Collection
Plan Collection
Plan Collection
Plan#141-1243
Starting at$1485
1640
Sq Ft
1
Story
3
Bed
2
Bath
2
Car
View All

Other Plans By This Designer

Plan Collection
Plan Collection
Plan Collection
Plan#141-1324
Starting at$1205
872
Sq Ft
1
Story
1
Bed
1.5
Bath
0
Car
Plan Collection
Plan Collection
Plan Collection
Plan#141-1166
Starting at$1485
1751
Sq Ft
1
Story
3
Bed
2
Bath
2
Car
Plan Collection
Plan Collection
Plan Collection
Plan#141-1319
Starting at$1485
1832
Sq Ft
1
Story
3
Bed
2
Bath
2
Car