3-Bedroom, 1620 Sq Ft Ranch Plan with Split Bedroom Layout

Front elevation of Ranch home (ThePlanCollection: House Plan #123-1135)

Images/Plans copyrighted by designer. Photos may reflect homeowner modifications.

About House Plan #123-1135

Sq Ft
1620
Sq Ft
Bedrooms
3
Bedrooms
Bathroom
2
Baths
Half Baths
0
Half Baths
Bedrooms
2
Cars
Bedrooms
1
Stories
Bedrooms
44' 0'
Width
Bedrooms
78
Depth
Starting at$980.00What's included
STEP 1Bedrooms
STEP 2Bedrooms
STEP 3Bedrooms

Subtotal:$0
Plan Collection

How much will it cost to build?

Estimate your costs based on your location and materials.

Free Cost Instant Estimator

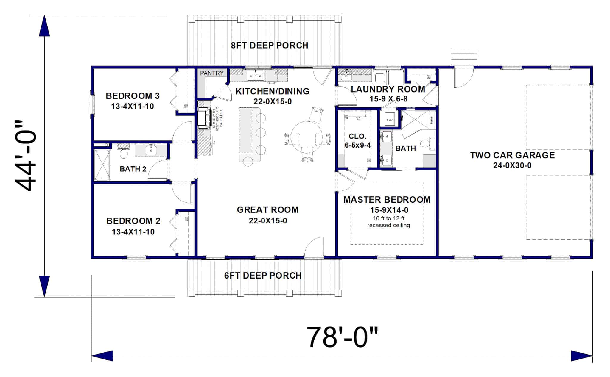
Floor Plans

Main Level
Main Level
Plan Collection

Can I modify this plan?

Yes! This plan can be customized—contact us for a free quote.

Additional Notes from Designer

PLEASE NOTE! When ordering options such as an optional foundation, RRR or 2x4 or 2x6 conversions, the designer may require an additional 2-5 business days to create it. Please keep this in mind when ordering.

House Plan Description

You'll be delighted with this lovely ranch house plan that offers three bedrooms, two baths, and a 2-car garage. Other great features of the home include:

  • Open Floor Plan
  • Kitchen with Center Island and Large Pantry
  • Split Bedroom Layout
  • Spacious Laundry Room w/ Additional Closet
  • All Doors are a minimum of 36" for "Aging in Place"

Home Details

Summary
Plan #:123-1135
Starting at:$980.00
Floors:1
Bedrooms:3
Full Baths:2
Half Baths:0
Garage:
Square Footage
Heated Area:1620 Sq. Ft.
First Floor:1620 Sq. Ft.
Unheated Area:
Garage:720 Sq. Ft.
Porch:336 Sq. Ft.
Dimensions
Architectural Styles
Exterior Wall Material
Board and Batten
Roofing Type
Gable
Roofing Material
Metal
Roof Pitch
8/1210/12
Ceiling Height
12 Foot Ceiling
Special Feature
Main Level LaundryStorageOpen Floor Plan
Garage Type
Attached Garage
Exterior Wall Framing
2x6
Building Lot Type
Flat SiteNarrow Lot DesignCorner Lot
Kitchen Features
Kitchen IslandNook/Breakfast Area
Porches and Exterior Features
Covered Front PorchCovered Rear Porch
Master Suite Features
Main Floor MasterWalk In ClosetSplit Master Bedroom

What’s Included

Most plan sets include the following:

icon text-secondary-400 includedFloor plans - Included with your plans will be a detailed floor plan at 1/4" scale with a window and door schedule.

icon text-secondary-400 includedFoundation

icon text-secondary-400 includedElectrical Layout

icon text-secondary-400 includedExterior and Interior Elevations

icon text-secondary-400 includedBuilding Sections

icon text-secondary-400 includedDetails and Typical Specifications

icon text-secondary-400 includedSheet

What’s Not Included

These items are  NOT included:

icon text-secondary-400 includedArchitectural or Engineering Stamp - handled locally if required.

icon text-secondary-400 includedSite Plan - handled locally when required.

icon text-secondary-400 includedMechanical Drawings (location of heating and air equipment and ductwork) - your subcontractors handle this.

icon text-secondary-400 includedPlumbing Drawings (drawings showing the actual plumbing pipe sizes and locations) - your subcontractors handle this.

icon text-secondary-400 includedEnergy calculations - handled locally when required.

Related House Plans

Plan Collection
Plan Collection
Plan Collection
Plan#123-1118
Starting at$850
1425
Sq Ft
1
Story
3
Bed
2
Bath
0
Car
Plan Collection
Plan Collection
Plan Collection
Plan#123-1133
Starting at$980
1620
Sq Ft
1
Story
3
Bed
2
Bath
0
Car
View All

Other Plans By This Designer

Plan Collection
Plan Collection
Plan Collection
Plan#123-1112
Starting at$980
1611
Sq Ft
1
Story
3
Bed
2
Bath
2
Car
Plan Collection
Plan Collection
Plan Collection
Plan#123-1100
Starting at$850
1311
Sq Ft
1
Story
3
Bed
2
Bath
0
Car
Plan Collection
Plan Collection
Plan Collection
Plan#123-1116
Starting at$850
1035
Sq Ft
1
Story
3
Bed
2
Bath
0
Car