3-Bedroom, 1559 Sq Ft Contemporary Plan with Loft

Contemporary home (ThePlanCollection: Plan #196-1192)

Images/Plans copyrighted by designer. Photos may reflect homeowner modifications.

About House Plan #196-1192

Sq Ft
1559
Sq Ft
Bedrooms
3
Bedrooms
Bathroom
2
Baths
Half Baths
0
Half Baths
Bedrooms
2
Cars
Bedrooms
2
Stories
Bedrooms
32' 7'
Width
Bedrooms
31
Depth
Starting at$1125.00What's included
STEP 1Bedrooms
STEP 2Bedrooms
STEP 3Bedrooms

Subtotal:$0
Plan Collection

How much will it cost to build?

Estimate your costs based on your location and materials.

Free Cost Instant Estimator

Floor Plans

Floor Plan Main Level
Floor Plan Main Level
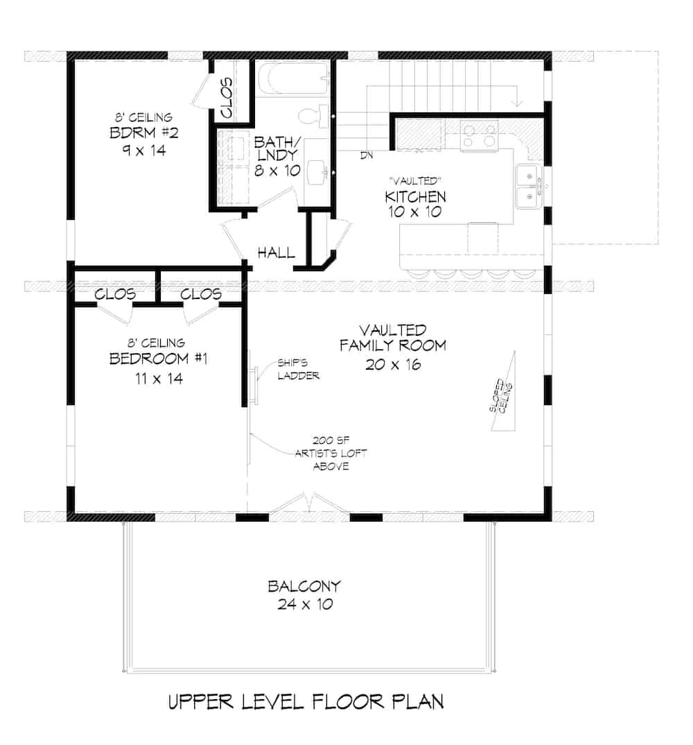
Floor Plan Upper Level
Floor Plan Upper Level
Floor Plan Upper Level
Floor Plan Upper Level
Plan Collection

Can I modify this plan?

Yes! This plan can be customized—contact us for a free quote.

Additional Notes from Designer

NOTE FROM DESIGNER REGARDING PLAN PURCHASES: 80% of a 5 set purchase price can be applied to any PDF or CAD license upgrade. Additionally, 80% of PDF Study purchase price can be applied to any CAD or PDF license upgrade.

House Plan Description

Inspired design and stunning architecture is in this Contemporary style house, which could also easily be a vacation getaway – especially if you have a view lot. You’ll love the open and airy feel of the house, with its variety of large windows making the rooms brilliant and sunny.  The sweet 2-story home's floor plan has 1559 square feet of fully conditioned living space and includes 3 bedrooms.

Home Details

Summary
Plan #:196-1192
Starting at:$1125.00
Floors:2
Bedrooms:3
Full Baths:2
Half Baths:0
Garage:
Square Footage
Heated Area:1559 Sq. Ft.
First Floor:367 Sq. Ft.
Second Floor:1192 Sq. Ft.
Unheated Area:
Garage:625 Sq. Ft.
Porch:311 Sq. Ft.
Dimensions
Width:32' 7''
Depth:31' 10''
Architectural Styles
Exterior Wall Material
Vinyl SidingRock/StoneWood Siding
Roofing Type
Shed
Roofing Material
Metal
Roof Pitch
3/12
Ceiling Height
10 Foot Ceiling8 Foot Ceiling
Special Feature
Family RoomMain Level LaundryColor PhotosLoftStorageVaulted CeilingsBalconyOpen Floor Plan
Garage Type
Attached GarageFront Entry
Exterior Wall Framing
2x6
Building Lot Type
Narrow Lot DesignView Lot
Kitchen Features
Peninsula/Eating Bar
Porches and Exterior Features
Covered Front PorchCovered Rear PorchSundeckPatio

What’s Included

Most plan sets include the following:

What’s Not Included

These items are  NOT included:

Related House Plans

Plan Collection
Plan Collection
Plan Collection
Plan#160-1009
Starting at$945
1235
Sq Ft
2
Story
3
Bed
2
Bath
0
Car
Plan Collection
Plan Collection
Plan Collection
Plan#117-1104
Starting at$895
1421
Sq Ft
2
Story
3
Bed
2
Bath
2
Car
Plan Collection
Plan Collection
Plan Collection
Plan#109-1029
Starting at$1195
1334
Sq Ft
2
Story
3
Bed
2.5
Bath
0
Car
View All

Other Plans By This Designer

Plan Collection
Plan Collection
Plan Collection
Plan#196-1211
Starting at$695
650
Sq Ft
2
Story
1
Bed
1
Bath
2
Car
Plan Collection
Plan Collection
Plan Collection
Plan#196-1196
Starting at$810
1500
Sq Ft
1
Story
2
Bed
2
Bath
3
Car
Plan Collection
Plan Collection
Plan Collection
Plan#196-1216
Starting at$845
1727
Sq Ft
2
Story
2
Bed
2
Bath
2
Car