Estimate your costs based on your location and materials.
Yes! This plan can be customized—contact us for a free quote.
Yes! This plan can be customized—contact us for a free quote.
Please Note that the designer's office will be closed for the summer holidays from July 20th to August 2024. This designer's plans take 7-10 additional business days regardless of the type of delivery (express, email, etc). Please keep this in mind when ordering.
BCIN is available for this designer - please submit a modification request for cost and time frame.
PLEASE NOTE! This designer's plans do NOT come with an electrical layout. They will provide an electrical layout for an additional fee.
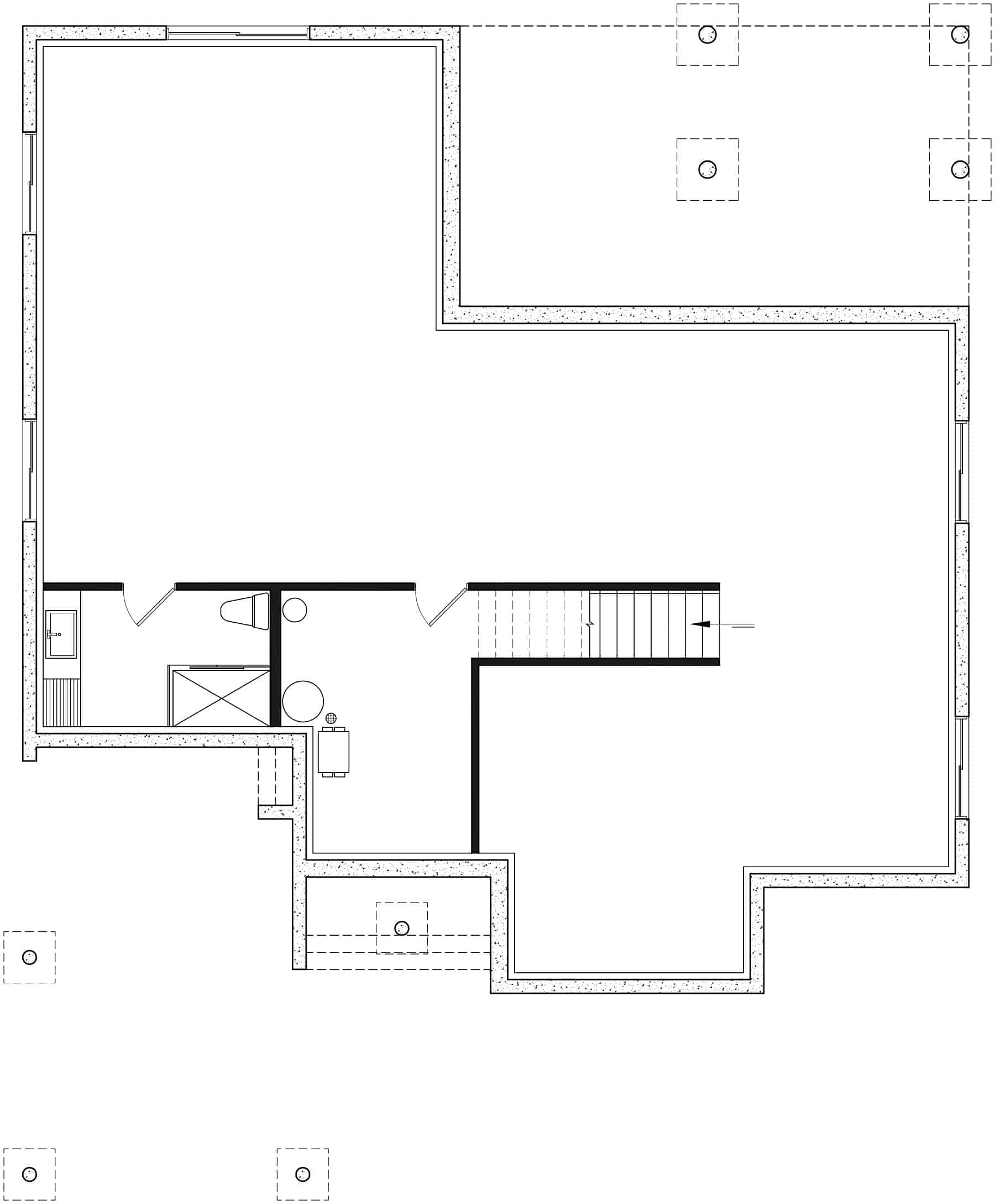
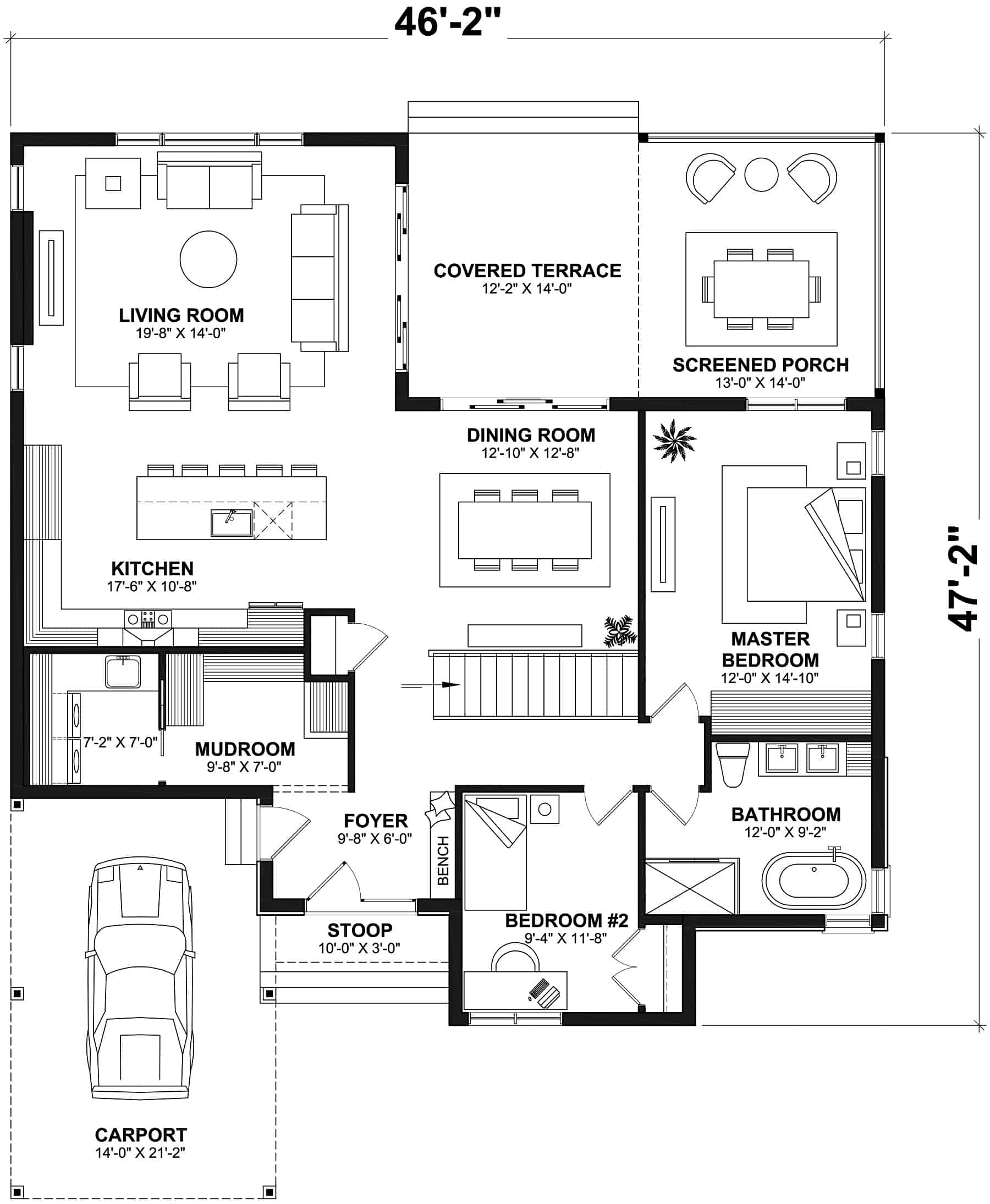
This Single Family Contemporary Ranch Style House Plan has 1555 square feet, 2 bedrooms, and 2 bathrooms.
This adorable Contemporary Ranch house is sure to be enjoyed by the whole family. It covers a total heated area of 1555 square feet with 1555-square-foot unfinished basement ready for future development. The different levels and the forwarded gables added by a natural materials used create a magnificent house design.
A majestic spacious covered front entry will welcome you upon stepping in front of the house. The main entrance floor opens to a grand foyer that leads to an even much grander area of the living room,...
Estimate your costs based on your location and materials.
All sales of house plans, modifications, and other products found on this site are final. No refunds or exchanges can be given once your order has begun the fulfillment process. Please see our Policies for additional information.
All plans offered on ThePlanCollection.com are designed to conform to the local building codes when and where the original plan was drawn.
The homes as shown in photographs and renderings may differ from the actual blueprints. For more detailed information, please review the floor plan images herein carefully.
Estimate your costs based on your location and materials.