5-Bedroom, 1550 Sq Ft Log Cabin Plan with Covered Front Porch

Main image for house plan # 17870

Images/Plans copyrighted by designer. Photos may reflect homeowner modifications.

About House Plan #160-1013

Sq Ft
1550
Sq Ft
Bedrooms
5
Bedrooms
Bathroom
2
Baths
Half Baths
1
Half Baths
Bedrooms
0
Cars
Bedrooms
2
Stories
Bedrooms
36' 0'
Width
Bedrooms
50
Depth
Starting at$945.00What's included
STEP 1Bedrooms
STEP 2Bedrooms
STEP 3Bedrooms

Subtotal:$0
Plan Collection

How much will it cost to build?

Estimate your costs based on your location and materials.

Free Cost Instant Estimator

Floor Plans

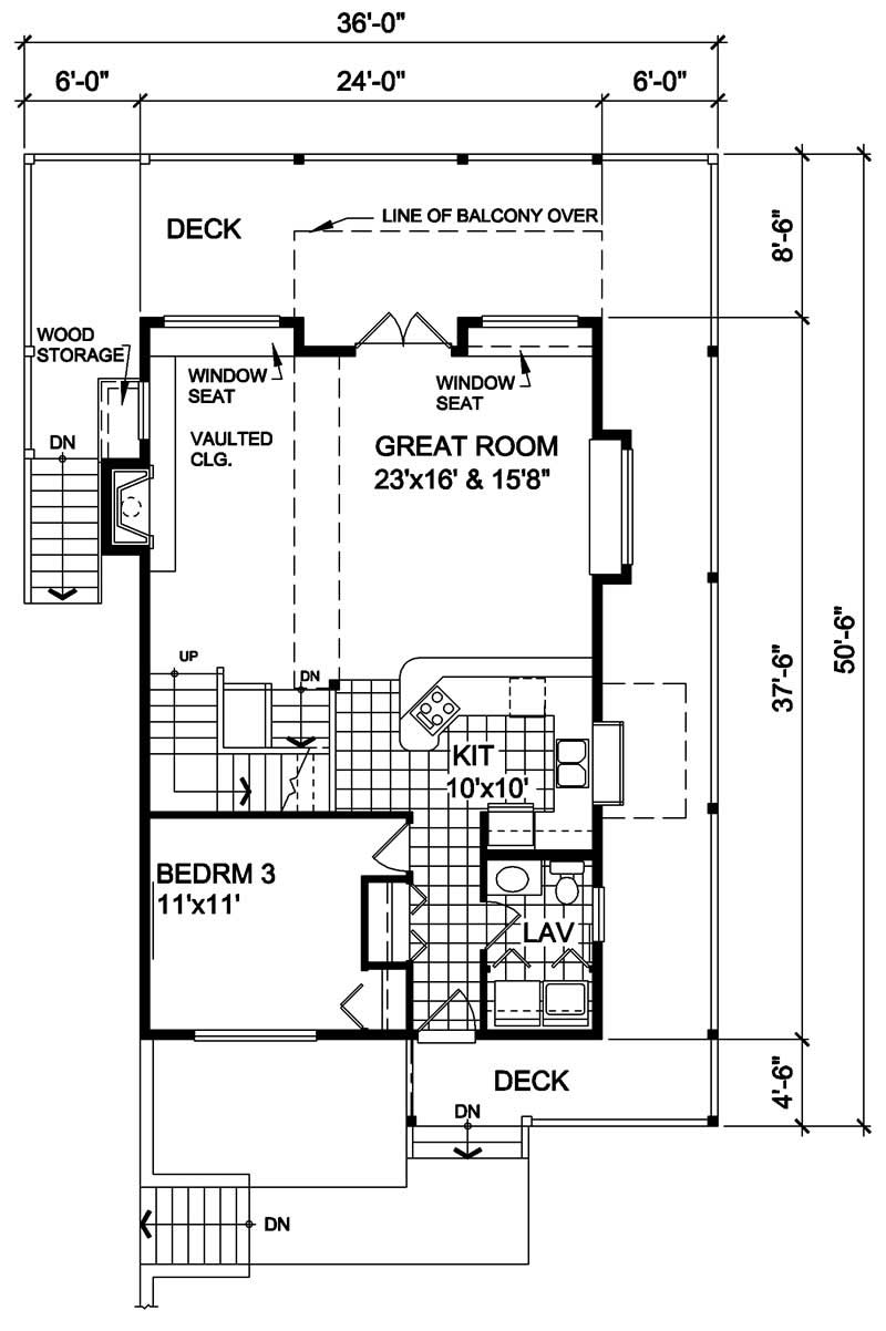
Main Floor Plan
Main Floor Plan
Second Floor Plan
Second Floor Plan
Plan Collection

Can I modify this plan?

Yes! This plan can be customized—contact us for a free quote.

Additional Notes from Designer

For our Ontario customers - BCIN is available for this designer's plans. Please submit a modification request to receive a free quote.

House Plan Description

The partially covered rear wrap-a-round deck encourages family activity expansion to an already open floor plan. The second floor bedrooms with ten and twelve foot ceilings bring a soothing airiness to this vaulted level. Daylight basement plan contains two additional bedrooms, shared bathroom and multipurpose recreation room with patio access. The separate private entrance easily transforms this level into a home office or business space.

Home Details

Summary
Plan #:160-1013
Starting at:$945.00
Floors:2
Bedrooms:5
Full Baths:2
Half Baths:1
Garage:
Square Footage
Heated Area:1550 Sq. Ft.
First Floor:864 Sq. Ft.
Second Floor:686 Sq. Ft.
Unheated Area:
Basement:864 Sq. Ft.
Dimensions
Depth:50' 6''
Ridge Height:25'' 0''
Architectural Styles
Exterior Wall Material
Wood Siding
Roofing Type
Gable
Roof Pitch
12/126/12
Ceiling Height
10 Foot Ceiling8 Foot Ceiling
Special Feature
Home Office
Fireplaces
One Fireplace
Exterior Wall Framing
2x6
Building Lot Type
Narrow Lot Design

What’s Included

Most plan sets include the following:

icon text-secondary-400 includedCover sheet with rendering and art floor plans.

icon text-secondary-400 includedGeneral notes and specifications.

icon text-secondary-400 includedFoundation plan

icon text-secondary-400 includedMain floor plan

icon text-secondary-400 includedSecond-floor plan (if applicable)

icon text-secondary-400 includedStructural floor/Roof information

icon text-secondary-400 includedElectrical layout

icon text-secondary-400 includedMinimum of two cross-sectionsDetails

icon text-secondary-400 includedExterior ElevationsGeneric detail sheet

What’s Not Included

These items are  NOT included:

icon text-secondary-400 includedArchitectural or Engineering Stamp - handled locally if required.

icon text-secondary-400 includedSite Plan - handled locally when required.

icon text-secondary-400 includedMechanical Drawings (location of heating and air equipment and ductwork) - your subcontractors handle this.

icon text-secondary-400 includedPlumbing Drawings (drawings showing the actual plumbing pipe sizes and locations) - your subcontractors handle this.

icon text-secondary-400 includedEnergy calculations - handled locally when required.

Other Plans By This Designer

Plan Collection
Plan Collection
Plan Collection
Plan#160-1015
Starting at$945
1370
Sq Ft
2
Story
3
Bed
2
Bath
0
Car
Plan Collection
Plan Collection
Plan Collection
Plan#160-1007
Starting at$945
1154
Sq Ft
2
Story
2
Bed
2
Bath
0
Car
Plan Collection
Plan Collection
Plan Collection
Plan#160-1011
Starting at$945
1333
Sq Ft
2
Story
2
Bed
2
Bath
0
Car