3-Bedroom, 1526 Sq Ft Vacation Homes Plan with Eat-In Kitchen

Color rendering of Vacation home plan (ThePlanCollection: House Plan #195-1031)

Images/Plans copyrighted by designer. Photos may reflect homeowner modifications.

About House Plan #195-1031

Sq Ft
1526
Sq Ft
Bedrooms
3
Bedrooms
Bathroom
2
Baths
Half Baths
0
Half Baths
Bedrooms
0
Cars
Bedrooms
2
Stories
Bedrooms
68' 0'
Width
Bedrooms
34
Depth
Starting at$930.00What's included
STEP 1Bedrooms
STEP 2Bedrooms
STEP 3Bedrooms

Subtotal:$0
Plan Collection

How much will it cost to build?

Estimate your costs based on your location and materials.

Free Cost Instant Estimator

Floor Plans

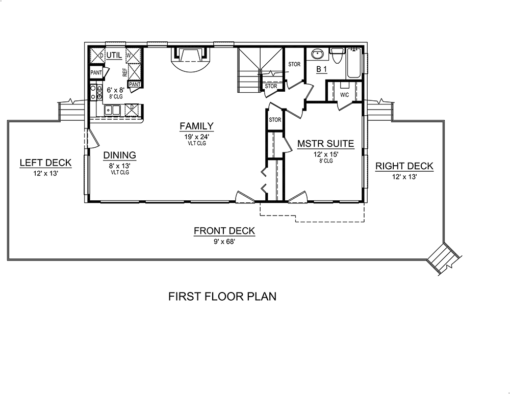
Floor Plan Main Level
Floor Plan Main Level
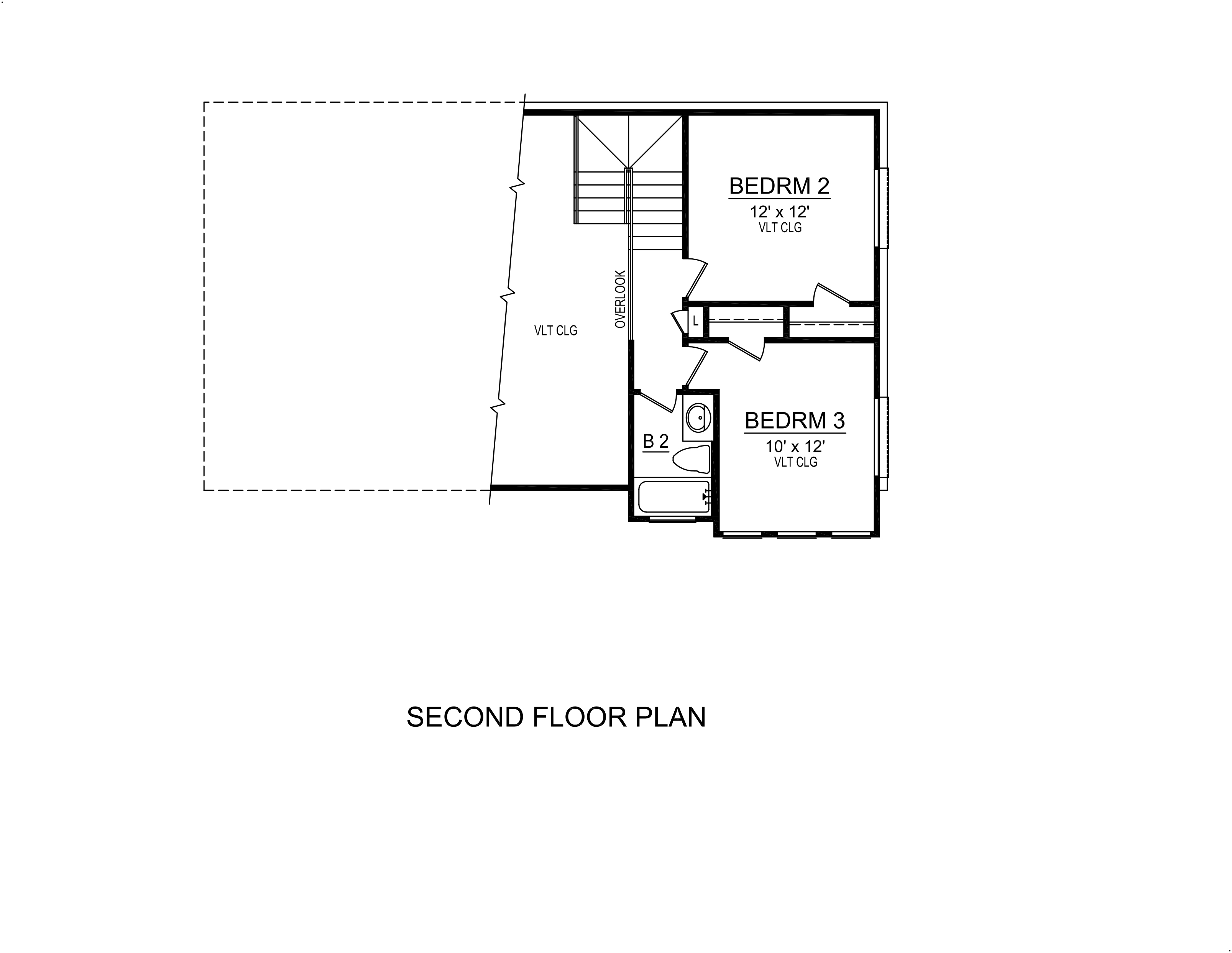
Floor Plan Upper Level
Floor Plan Upper Level
Plan Collection

Can I modify this plan?

Yes! This plan can be customized—contact us for a free quote.

Additional Notes from Designer

This designer does not offer ICF!

Total square feet under the roof is 1571 square feet.

House Plan Description

This lovely Vacation style home plan with Contemporary influences (House Plan #195-1031) has 1526 square feet of living space. The 2 story floor plan includes 3 bedrooms and 2 bathrooms.

Home Details

Summary
Plan #:195-1031
Starting at:$930.00
Floors:2
Bedrooms:3
Full Baths:2
Half Baths:0
Garage:
Square Footage
Heated Area:1526 Sq. Ft.
First Floor:1100 Sq. Ft.
Second Floor:426 Sq. Ft.
Unheated Area:
Dimensions
Ridge Height:25' 0''
Architectural Styles
Exterior Wall Material
Vinyl SidingBrickWood Siding
Roofing Type
Gable
Roofing Material
Asphalt Shingles
Roof Pitch
9/12
Ceiling Height
8 Foot Ceiling
Special Feature
FireplaceFamily RoomMain Level LaundryStorageVaulted CeilingsOpen Floor Plan
Fireplaces
One Fireplace
Kitchen Features
Walk-in PantryPeninsula/Eating Bar
Porches and Exterior Features
Sundeck
Master Suite Features
Main Floor MasterMaster BathroomWalk In ClosetSplit Master Bedroom

What’s Included

Most plan sets include the following:

icon text-secondary-400 includedDimension Plan

icon text-secondary-400 includedNotation Plan

icon text-secondary-400 includedElectrical Layout

icon text-secondary-400 includedElevations

icon text-secondary-400 includedRoof Plan

icon text-secondary-400 includedGeneral Specifications

icon text-secondary-400 includedGeneral Details

What’s Not Included

These items are  NOT included:

icon text-secondary-400 includedArchitectural or Engineering Stamp - handled locally if required.

icon text-secondary-400 includedSite Plan - handled locally when required.

icon text-secondary-400 includedMechanical Drawings (location of heating and air equipment and ductwork) - your subcontractors handle this.

icon text-secondary-400 includedPlumbing Drawings (drawings showing the actual plumbing pipe sizes and locations) - your subcontractors handle this.

icon text-secondary-400 includedEnergy calculations - handled locally when required.

Related House Plans

Plan Collection
Plan Collection
Plan Collection
Plan#160-1009
Starting at$945
1235
Sq Ft
2
Story
3
Bed
2
Bath
0
Car
Plan Collection
Plan Collection
Plan Collection
Plan#117-1104
Starting at$895
1421
Sq Ft
2
Story
3
Bed
2
Bath
2
Car
Plan Collection
Plan Collection
Plan Collection
Plan#109-1029
Starting at$1195
1334
Sq Ft
2
Story
3
Bed
2.5
Bath
0
Car
View All

Other Plans By This Designer

Plan Collection
Plan Collection
Plan Collection
Plan#195-1216
Starting at$3295
7587
Sq Ft
2
Story
5
Bed
6.5
Bath
3
Car
Plan Collection
Plan Collection
Plan Collection
Plan#195-1307
Starting at$7995
12720
Sq Ft
2
Story
5
Bed
6.5
Bath
5
Car
Plan Collection
Plan Collection
Plan Collection
Plan#195-1127
Starting at$9995
14727
Sq Ft
2
Story
9
Bed
8.5
Bath
9
Car