3-Bedroom, 1483 Sq Ft Ranch Plan with Covered Rear Porch

Main image for house plan # 16607

Images/Plans copyrighted by designer. Photos may reflect homeowner modifications.

About House Plan #103-1052

Sq Ft
1483
Sq Ft
Bedrooms
3
Bedrooms
Bathroom
2
Baths
Half Baths
0
Half Baths
Bedrooms
3
Cars
Bedrooms
1
Stories
Bedrooms
62' 0'
Width
Bedrooms
50
Depth
Starting at$895.00What's included
STEP 1Bedrooms
STEP 2Bedrooms
STEP 3Bedrooms

Subtotal:$0
Plan Collection

How much will it cost to build?

Estimate your costs based on your location and materials.

Free Cost Instant Estimator

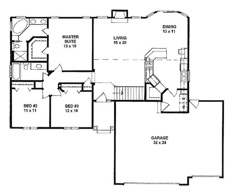
Floor Plans

MAIN FLOOR PLAN
MAIN FLOOR PLAN
Plan Collection

Can I modify this plan?

Yes! This plan can be customized—contact us for a free quote.

Additional Notes from Designer

PLEASE NOTE: For this designer, if you choose optional features such as but not limited to: 2x6 framing, reverse or optional basement, the designer will need an additional 2-5 business days to adjust the plan accordingly. Please keep this in mind when choosing your shipping option. If you would like Express or Priority shipping, the designer will ship the plan to you using the method you choose but you will still have the 2-5 business day waiting period BEFORE they ship! Please feel free to contact us with any questions!

House Plan Description

Vaulted ceilings in living, dining, kitchen, and master bed. !0' ceiling in bed #3, plant shelves, Jacuzzi tub, walk-in closet, bay window, fireplace, covered porch. and an optional finish basement with rec room, two beds, and one full bath.

Home Details

Summary
Plan #:103-1052
Starting at:$895.00
Floors:1
Bedrooms:3
Full Baths:2
Half Baths:0
Garage:
Square Footage
Heated Area:1483 Sq. Ft.
First Floor:1483 Sq. Ft.
Unheated Area:
Basement:1353 Sq. Ft.
Garage:768 Sq. Ft.
Dimensions
Ridge Height:18' 0''
Architectural Styles
Exterior Wall Material
Aluminum SidingVinyl SidingBrickWood Siding
Roofing Type
Gable
Roof Pitch
6/128/12
Ceiling Height
10 Foot Ceiling8 Foot Ceiling
Special Feature
Fireplace
Garage Type
Attached Garage

What’s Included

Most plan sets include the following:

icon text-secondary-400 includedFront, Side & Rear Elevations

icon text-secondary-400 includedFloor Plan

icon text-secondary-400 includedFoundation Plan

icon text-secondary-400 includedRoof Plan (Birdseye view)

icon text-secondary-400 includedElectrical Layout (location of outlets, switches - it does not have wiring schematics)

icon text-secondary-400 includedCabinet Details

icon text-secondary-400 includedWall Section

icon text-secondary-400 includedStair Details

icon text-secondary-400 includedBuilding Cross Section

What’s Not Included

These items are  NOT included:

icon text-secondary-400 includedArchitectural or Engineering Stamp - handled locally if required.

icon text-secondary-400 includedSite Plan - handled locally when required.

icon text-secondary-400 includedMechanical Drawings (location of heating and air equipment and ductwork) - your subcontractors handle this.

icon text-secondary-400 includedPlumbing Drawings (drawings showing the actual plumbing pipe sizes and locations) - your subcontractors handle this.

icon text-secondary-400 includedEnergy calculations - handled locally when required.

Related House Plans

Plan Collection
Plan Collection
Plan Collection
Plan#142-1041
Starting at$1245
1300
Sq Ft
1
Story
3
Bed
2
Bath
2
Car
Plan Collection
Plan Collection
Plan Collection
Plan#141-1243
Starting at$1485
1640
Sq Ft
1
Story
3
Bed
2
Bath
2
Car
Plan Collection
Plan Collection
Plan Collection
Plan#176-1012
Starting at$600
1412
Sq Ft
1
Story
3
Bed
2
Bath
0
Car
View All

Other Plans By This Designer

Plan Collection
Plan Collection
Plan Collection
Plan#103-1118
Starting at$870
1039
Sq Ft
1
Story
3
Bed
2
Bath
2
Car
Plan Collection
Plan Collection
Plan Collection
Plan#103-1119
Starting at$870
1108
Sq Ft
1
Story
3
Bed
2
Bath
2
Car
Plan Collection
Plan Collection
Plan Collection
Plan#103-1120
Starting at$870
1158
Sq Ft
1
Story
2
Bed
2
Bath
3
Car