2-Bedroom, 1470 Sq Ft Log Cabin Plan with Nook/Breakfast Area

Main image for house plan # 17867

Images/Plans copyrighted by designer. Photos may reflect homeowner modifications.

About House Plan #160-1012

Sq Ft
1470
Sq Ft
Bedrooms
2
Bedrooms
Bathroom
2
Baths
Half Baths
0
Half Baths
Bedrooms
0
Cars
Bedrooms
2
Stories
Bedrooms
51' 0'
Width
Bedrooms
28
Depth
Starting at$945.00What's included
STEP 1Bedrooms
STEP 2Bedrooms
STEP 3Bedrooms

Subtotal:$0
Plan Collection

How much will it cost to build?

Estimate your costs based on your location and materials.

Free Cost Instant Estimator

Floor Plans

Main Floor Plan
Main Floor Plan
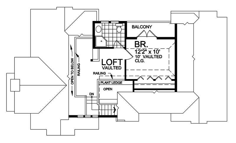
Second Floor Plan
Second Floor Plan
Plan Collection

Can I modify this plan?

Yes! This plan can be customized—contact us for a free quote.

Additional Notes from Designer

For our Ontario customers - BCIN is available for this designer's plans. Please submit a modification request to receive a free quote.

House Plan Description

This open floor plan invites family living and is well suited for a rear view orientation. Three French door locations allow the entertaining to continue on the expansive rear deck. The sitting area adjacent to the living room is warmed with a zero clearance fireplace. The loft or home office on the second level creates a bridge overlooking the first level. Separated bedroom suites boast vaulted ceiling details and maximum privacy. Plans designed with a crawl space foundation plan.

Home Details

Summary
Plan #:160-1012
Starting at:$945.00
Floors:2
Bedrooms:2
Full Baths:2
Half Baths:0
Garage:
Square Footage
Heated Area:1470 Sq. Ft.
First Floor:1130 Sq. Ft.
Second Floor:340 Sq. Ft.
Unheated Area:
Dimensions
Ridge Height:24'' 0''
Architectural Styles
Exterior Wall Material
Wood Siding
Roofing Type
Hip
Roof Pitch
10/12
Ceiling Height
10 Foot Ceiling8 Foot Ceiling
Special Feature
FireplaceHome OfficeColor PhotosColor Photos
Fireplaces
One Fireplace
Exterior Wall Framing
2x6

What’s Included

Most plan sets include the following:

icon text-secondary-400 includedCover sheet with rendering and art floor plans.

icon text-secondary-400 includedGeneral notes and specifications.

icon text-secondary-400 includedFoundation plan

icon text-secondary-400 includedMain floor plan

icon text-secondary-400 includedSecond-floor plan (if applicable)

icon text-secondary-400 includedStructural floor/Roof information

icon text-secondary-400 includedElectrical layout

icon text-secondary-400 includedMinimum of two cross-sectionsDetails

icon text-secondary-400 includedExterior ElevationsGeneric detail sheet

What’s Not Included

These items are  NOT included:

icon text-secondary-400 includedArchitectural or Engineering Stamp - handled locally if required.

icon text-secondary-400 includedSite Plan - handled locally when required.

icon text-secondary-400 includedMechanical Drawings (location of heating and air equipment and ductwork) - your subcontractors handle this.

icon text-secondary-400 includedPlumbing Drawings (drawings showing the actual plumbing pipe sizes and locations) - your subcontractors handle this.

icon text-secondary-400 includedEnergy calculations - handled locally when required.

Related House Plans

Plan Collection
Plan Collection
Plan Collection
Plan#108-1538
Starting at$725
1216
Sq Ft
2
Story
2
Bed
2
Bath
0
Car
Plan Collection
Plan Collection
Plan Collection
Plan#205-1018
Starting at$1775
1362
Sq Ft
2
Story
2
Bed
2
Bath
0
Car
Plan Collection
Plan Collection
Plan Collection
Plan#126-1546
Starting at$1395
1226
Sq Ft
2
Story
2
Bed
2
Bath
0
Car
View All

Other Plans By This Designer

Plan Collection
Plan Collection
Plan Collection
Plan#160-1015
Starting at$945
1370
Sq Ft
2
Story
3
Bed
2
Bath
0
Car
Plan Collection
Plan Collection
Plan Collection
Plan#160-1007
Starting at$945
1154
Sq Ft
2
Story
2
Bed
2
Bath
0
Car
Plan Collection
Plan Collection
Plan Collection
Plan#160-1011
Starting at$945
1333
Sq Ft
2
Story
2
Bed
2
Bath
0
Car