Estimate your costs based on your location and materials.
Yes! This plan can be customized—contact us for a free quote.
Yes! This plan can be customized—contact us for a free quote.
Please Note that the designer's office will be closed for the summer holidays from July 20th to August 2024. This designer's plans take 7-10 additional business days regardless of the type of delivery (express, email, etc). Please keep this in mind when ordering. BCIN is available for this designer - please submit a modification request for cost and time frame. PLEASE NOTE! This designer's plans do NOT come with an electrical layout. They will provide an electrical layout for an additional fee.
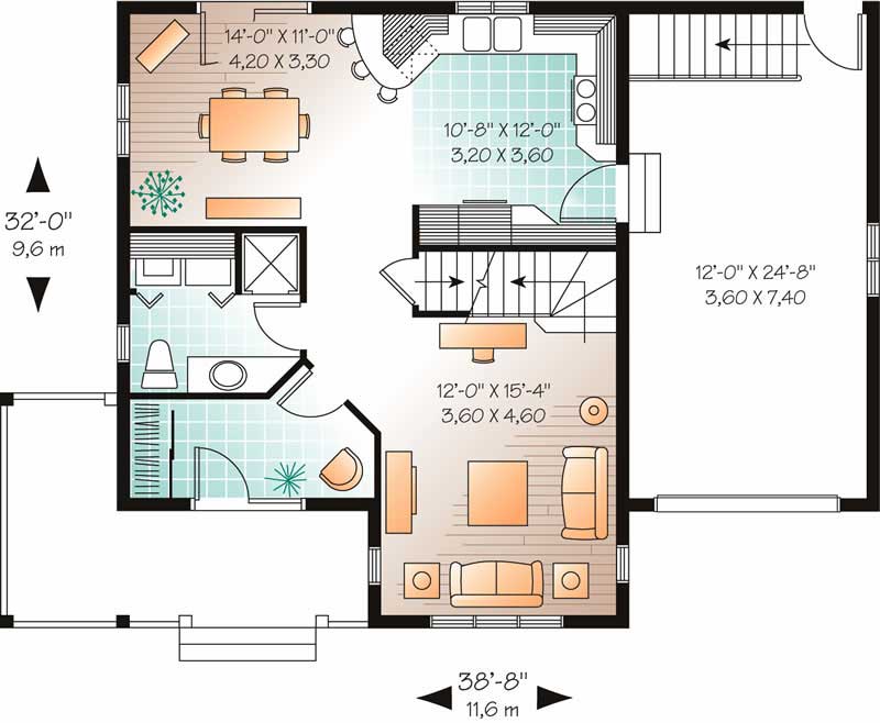
First level: Entry hall with coat closet, family room, dining room, kitchen with snack-bar, bathroom with laundry facilities. Second level: Master bedroom with walk-in closet, 2 secondary bedrooms, full bathroom. Access to basement from garage. Abundant windowing. Corner bath.
With 3 large bedrooms and 2 bathrooms this house plan is thoughtful and well designed (Plan# 126-1771). As you enter the home, you’re greeted by a large foyer which includes a closet. As you continue, you enter the spacious family room. The kitchen has an eating bar that flows into the dining area....
Estimate your costs based on your location and materials.
All sales of house plans, modifications, and other products found on this site are final. No refunds or exchanges can be given once your order has begun the fulfillment process. Please see our Policies for additional information.
All plans offered on ThePlanCollection.com are designed to conform to the local building codes when and where the original plan was drawn.
The homes as shown in photographs and renderings may differ from the actual blueprints. For more detailed information, please review the floor plan images herein carefully.
Estimate your costs based on your location and materials.