Estimate your costs based on your location and materials.
Yes! This plan can be customized—contact us for a free quote.
Yes! This plan can be customized—contact us for a free quote.
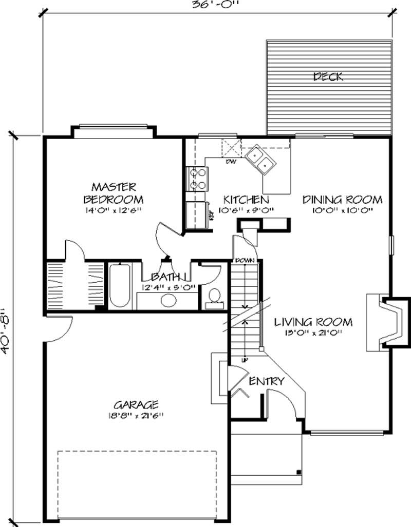
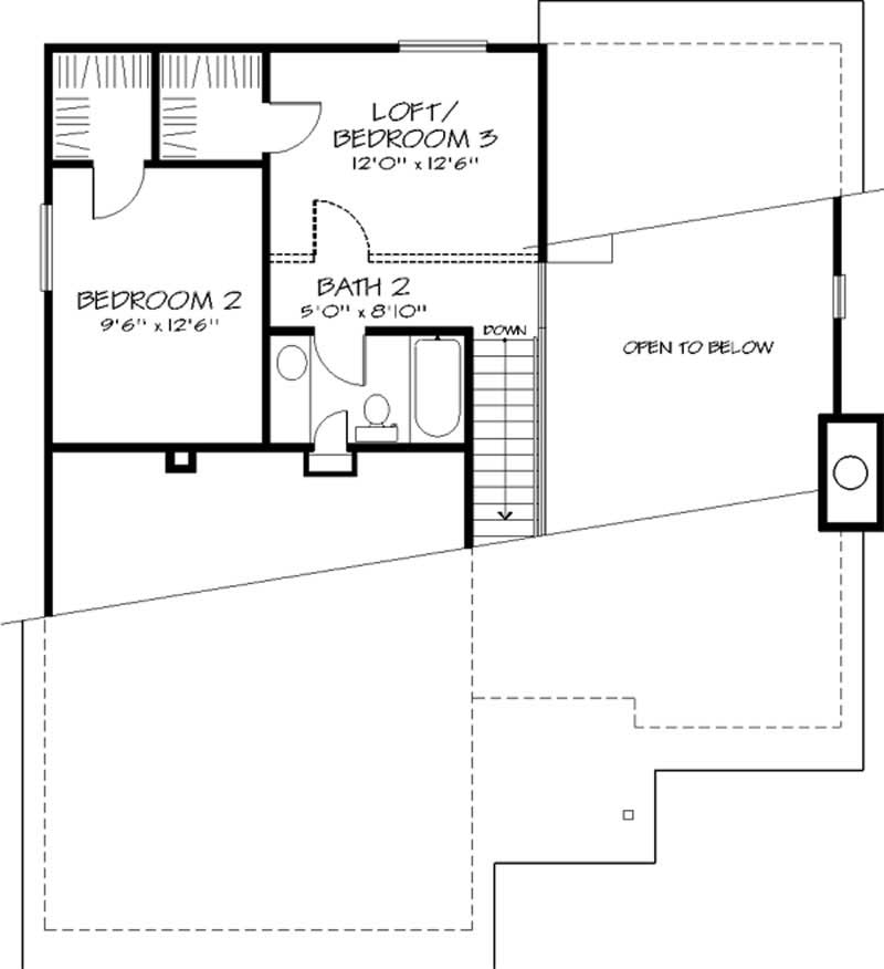
Perfectly sized for a narrow lot, this charming modern cottage boasts space efficiency and affordability. The inviting raised foyer steps down into the two-story-high vaulted living room. Brightened by lovely front windows with high transoms, the living room also offers a handsome fireplace. The adjoining dining area is highlighted by overhead plant shelves and features sliding glass doors to a backyard deck. The cleverly designed, space-saving kitchen includes a stylish snack counter and a pantry shelf. Enhanced by a bright boxed-out bay with a window seat, the master bedroom also has a...
Estimate your costs based on your location and materials.
All sales of house plans, modifications, and other products found on this site are final. No refunds or exchanges can be given once your order has begun the fulfillment process. Please see our Policies for additional information.
All plans offered on ThePlanCollection.com are designed to conform to the local building codes when and where the original plan was drawn.
The homes as shown in photographs and renderings may differ from the actual blueprints. For more detailed information, please review the floor plan images herein carefully.
Estimate your costs based on your location and materials.