2-Bedroom, 1275 Sq Ft Country Plan with Covered Rear Porch

Front view of Country home (ThePlanCollection: House Plan #146-1343)

Images/Plans copyrighted by designer. Photos may reflect homeowner modifications.

About House Plan #146-1343

Sq Ft
1275
Sq Ft
Bedrooms
2
Bedrooms
Bathroom
2
Baths
Half Baths
0
Half Baths
Bedrooms
1
Cars
Bedrooms
1
Stories
Bedrooms
46' 0'
Width
Bedrooms
50
Depth
Starting at$885.00What's included
STEP 1Bedrooms
STEP 2Bedrooms
STEP 3Bedrooms

Subtotal:$0
Plan Collection

How much will it cost to build?

Estimate your costs based on your location and materials.

Free Cost Instant Estimator

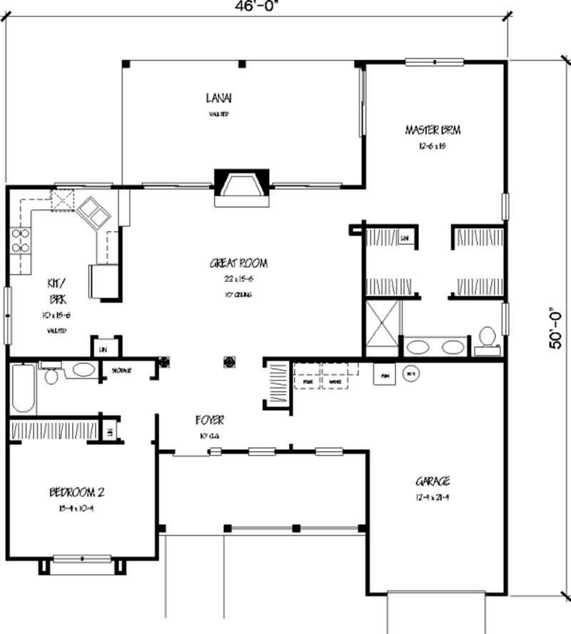
Floor Plans

Floor Plan First Story
Floor Plan First Story
Plan Collection

Can I modify this plan?

Yes! This plan can be customized—contact us for a free quote.

House Plan Description

A host of quality features, such as high ceilings and a huge Great Room, adds to the livability of this terrific two-bedroom home. Articulating the exterior is a boxed-out window whose graceful arch is echoed by the detailing of the front porch. A roomy foyer accented by columns and a 10-ft.-high ceiling introduces the interior, which is dominated by a fantastic Great Room. Here, the central fireplace is framed by sliding glass doors that open to a covered lanai with a 10-ft. vaulted ceiling. An arched opening leads from the Great Room to the kitchen/breakfast area, where the ceiling vaults...

Home Details

Summary
Plan #:146-1343
Starting at:$885.00
Floors:1
Bedrooms:2
Full Baths:2
Half Baths:0
Garage:
Square Footage
Heated Area:1275 Sq. Ft.
First Floor:1275 Sq. Ft.
Unheated Area:
Dimensions
Architectural Styles
Exterior Wall Material
Wood Siding
Roofing Type
Gable
Roofing Material
Asphalt Shingles
Special Feature
FireplaceMain Level LaundrySplit Bathroom
Garage Type
Attached GarageFront Entry
Fireplaces
One Fireplace
Exterior Wall Framing
2x4
Building Lot Type
Flat Site
Kitchen Features
Nook/Breakfast AreaPeninsula/Eating BarEat-In Kitchen
Porches and Exterior Features
Covered Front PorchCovered Lanai
Master Suite Features
Main Floor MasterMaster BathroomWalk In Closet

What’s Included

Most plan sets include the following:

What’s Not Included

These items are  NOT included:

icon text-secondary-400 includedArchitectural or Engineering Stamp - handled locally if required.

icon text-secondary-400 includedSite Plan - handled locally when required.

icon text-secondary-400 includedMechanical Drawings (location of heating and air equipment and ductwork) - your subcontractors handle this.

icon text-secondary-400 includedPlumbing Drawings (drawings showing the actual plumbing pipe sizes and locations) - your subcontractors handle this.

icon text-secondary-400 includedEnergy calculations - handled locally when required.

Related House Plans

Plan Collection
Plan Collection
Plan Collection
Plan#123-1071
Starting at$850
1292
Sq Ft
1
Story
2
Bed
2
Bath
0
Car
Plan Collection
Plan Collection
Plan Collection
Plan#132-1697
Starting at$1145
1176
Sq Ft
1
Story
2
Bed
2
Bath
0
Car
Plan Collection
Plan Collection
Plan Collection
Plan#174-1050
Starting at$610
1036
Sq Ft
1
Story
2
Bed
2
Bath
1
Car
View All

Other Plans By This Designer

Plan Collection
Plan Collection
Plan Collection
Plan#146-2806
Starting at$980
1933
Sq Ft
2
Story
3
Bed
2
Bath
0
Car
Plan Collection
Plan Collection
Plan Collection
Plan#146-2810
Starting at$1285
3594
Sq Ft
2
Story
4
Bed
3.5
Bath
2
Car
Plan Collection
Plan Collection
Plan Collection
Plan#146-1917
Starting at$1120
2525
Sq Ft
2
Story
4
Bed
2.5
Bath
3
Car