1178 Sq Ft, 2-Car Garage Plan with Flex Space

Front elevation of Garage home (ThePlanCollection: House Plan #160-1001)

Images/Plans copyrighted by designer. Photos may reflect homeowner modifications.

About House Plan #160-1001

Sq Ft
1178
Sq Ft
Bedrooms
0
Bedrooms
Bathroom
0
Baths
Half Baths
0
Half Baths
Bedrooms
2
Cars
Bedrooms
2
Stories
Bedrooms
24' 0'
Width
Bedrooms
35
Depth
Starting at$545.00What's included
STEP 1Bedrooms
STEP 2Bedrooms
STEP 3Bedrooms

Subtotal:$0
Plan Collection

How much will it cost to build?

Estimate your costs based on your location and materials.

Free Cost Instant Estimator

Floor Plans

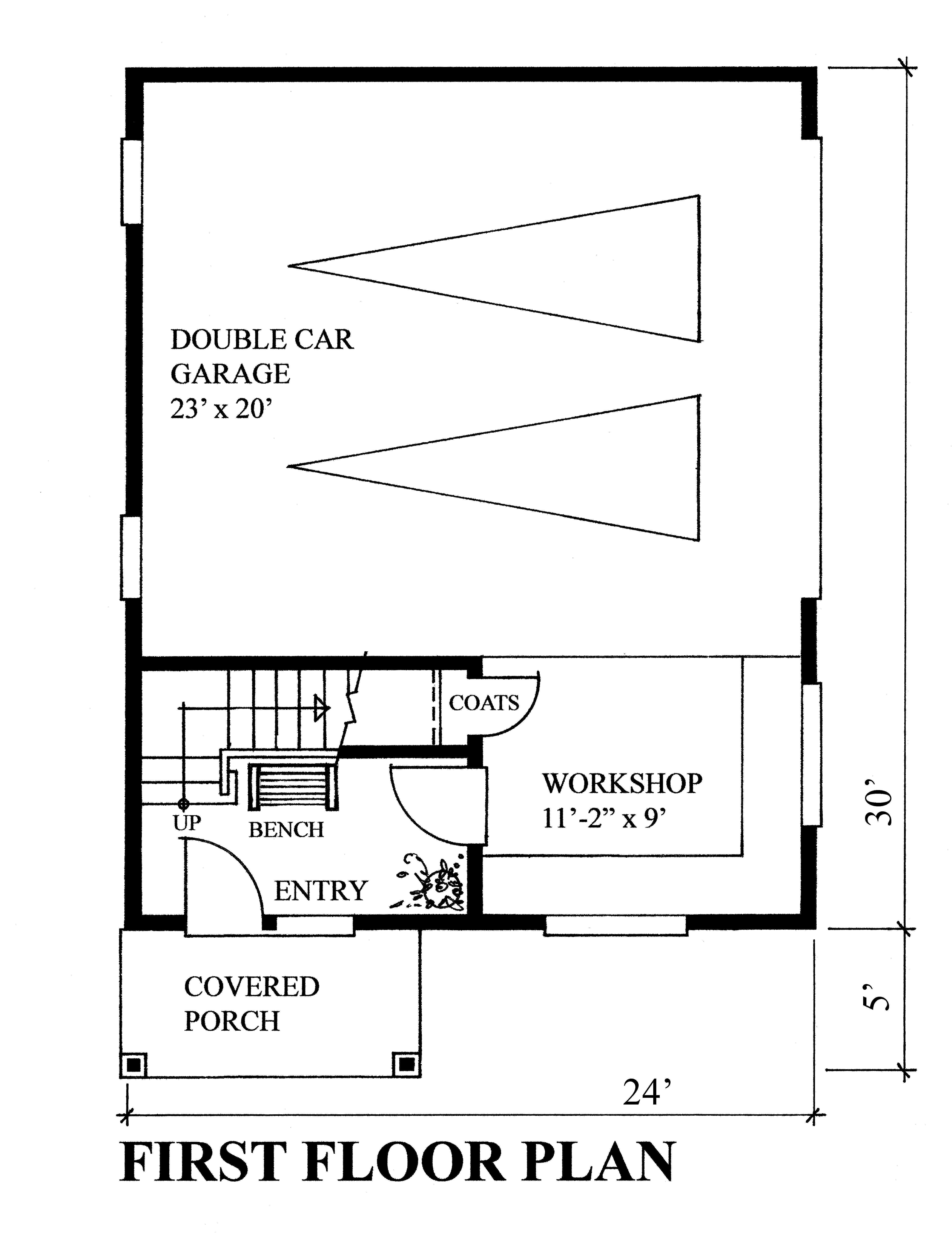
Floor Plan First Story
Floor Plan First Story
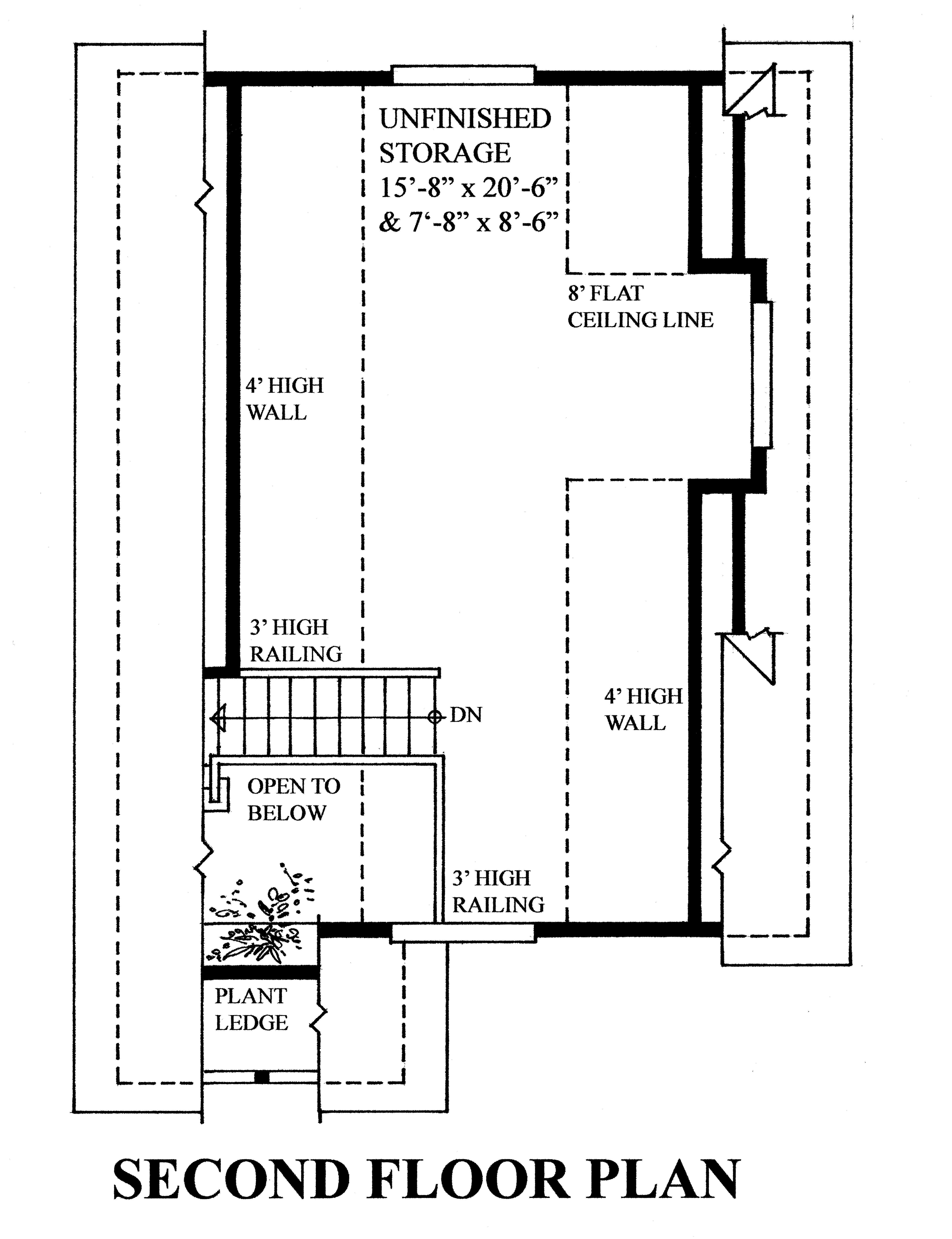
Floor Plan Second Story
Floor Plan Second Story
Plan Collection

Can I modify this plan?

Yes! This plan can be customized—contact us for a free quote.

Additional Notes from Designer

For our Ontario customers - BCIN is available for this designer's plans. Please submit a modification request to receive a free quote.

House Plan Description

The spacious workshop with two window locations is open to the garage which easily accommodates everyone from the hobby enthusiast up to the weekend mechanic. The second level unfinished storage loft is presently a blank canvass awaiting your personalized transformation into a quaint home office, guest room or exercise room retreat enhanced with a large view dormer and generous window openings at either end.

Home Details

Summary
Plan #:160-1001
Starting at:$545.00
Floors:2
Bedrooms:0
Full Baths:0
Half Baths:0
Garage:
Square Footage
Heated Area:1178 Sq. Ft.
First Floor:720 Sq. Ft.
Second Floor:458 Sq. Ft.
Unheated Area:
Dimensions
Ridge Height:23' 0''
Architectural Styles
Roof Pitch
12/12
Ceiling Height
8 Foot Ceiling
Special Feature
StorageVaulted CeilingsWorkshop
Exterior Wall Framing
2x6
Building Lot Type
Flat SiteNarrow Lot Design
Porches and Exterior Features
Covered Front Porch

What’s Included

Most plan sets include the following:

icon text-secondary-400 includedCover sheet with rendering and art floor plans.

icon text-secondary-400 includedGeneral notes and specifications.

icon text-secondary-400 includedFoundation plan

icon text-secondary-400 includedMain floor plan

icon text-secondary-400 includedSecond-floor plan (if applicable)

icon text-secondary-400 includedStructural floor/Roof information

icon text-secondary-400 includedElectrical layout

icon text-secondary-400 includedMinimum of two cross-sectionsDetails

icon text-secondary-400 includedExterior ElevationsGeneric detail sheet

What’s Not Included

These items are  NOT included:

icon text-secondary-400 includedArchitectural or Engineering Stamp - handled locally if required.

icon text-secondary-400 includedSite Plan - handled locally when required.

icon text-secondary-400 includedMechanical Drawings (location of heating and air equipment and ductwork) - your subcontractors handle this.

icon text-secondary-400 includedPlumbing Drawings (drawings showing the actual plumbing pipe sizes and locations) - your subcontractors handle this.

icon text-secondary-400 includedEnergy calculations - handled locally when required.

Related House Plans

Plan Collection
Plan Collection
Plan Collection
Plan#160-1023
Starting at$545
1058
Sq Ft
2
Story
0
Bed
0
Bath
2
Car
Plan Collection
Plan Collection
Plan Collection
Plan#100-1059
Starting at$750
1000
Sq Ft
2
Story
0
Bed
0
Bath
3
Car
Plan Collection
Plan Collection
Plan Collection
Plan#100-1157
Starting at$650
1321
Sq Ft
2
Story
0
Bed
0
Bath
2
Car
View All

Other Plans By This Designer

Plan Collection
Plan Collection
Plan Collection
Plan#160-1015
Starting at$945
1370
Sq Ft
2
Story
3
Bed
2
Bath
0
Car
Plan Collection
Plan Collection
Plan Collection
Plan#160-1007
Starting at$945
1154
Sq Ft
2
Story
2
Bed
2
Bath
0
Car
Plan Collection
Plan Collection
Plan Collection
Plan#160-1011
Starting at$945
1333
Sq Ft
2
Story
2
Bed
2
Bath
0
Car