Poolhouse Craftsman Style Plan with 1134 Sq Ft with Vaulted Ceiling

Front elevation of Garage home (ThePlanCollection: House Plan #108-2076)

Images/Plans copyrighted by designer. Photos may reflect homeowner modifications.

About House Plan #108-2076

Sq Ft
1134
Sq Ft
Bedrooms
0
Bedrooms
Bathroom
1
Baths
Half Baths
0
Half Baths
Bedrooms
0
Cars
Bedrooms
1
Stories
Bedrooms
58' 0'
Width
Bedrooms
28
Depth
Starting at$575.00What's included
STEP 1Bedrooms
STEP 2Bedrooms
STEP 3Bedrooms

Subtotal:$0
Plan Collection

How much will it cost to build?

Estimate your costs based on your location and materials.

Free Cost Instant Estimator

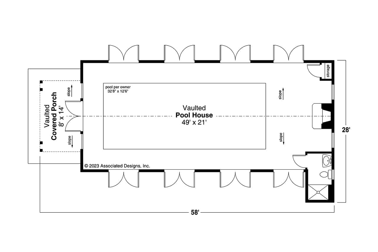
Floor Plans

Main Level
Main Level
Plan Collection

Can I modify this plan?

Yes! This plan can be customized—contact us for a free quote.

Additional Notes from Designer

PLEASE NOTE!! For this designer, The PDF that comes with the PRINT Packages (5 set+PDF and 8 set+PDF) is NOT Modifiable - it is for printing ONLY! PLEASE NOTE!! Optional Foundations (foundations that cost extra money) will take 5-10 business days to complete.

PLEASE NOTE: Optional foundations may take an additional 5-10 business days to complete BEFORE they can be shipped out, regardless of the plan package or shipping method you order!

House Plan Description

If you desire an ideal poolhouse that complements your home, search no more than this remarkable Craftsman style garage design. It boasts a vaulted outdoor area with a complete bathroom and ample space for outdoor living, making it an absolute haven for relaxation and enjoyment.

Home Details

Summary
Plan #:108-2076
Starting at:$575.00
Floors:1
Bedrooms:0
Full Baths:1
Half Baths:0
Garage:
Square Footage
Heated Area:1134 Sq. Ft.
First Floor:1134 Sq. Ft.
Unheated Area:
Dimensions
Architectural Styles
Exterior Wall Material
Vinyl SidingWood SidingLap Siding
Roofing Type
Gable
Roofing Material
Asphalt Shingles
Roof Pitch
8/12
Ceiling Height
10 Foot Ceiling
Special Feature
Swimming PoolVaulted Ceilings
Fireplaces
One Fireplace
Exterior Wall Framing
2x6
Building Lot Type
Flat Site
Porches and Exterior Features
Covered Front Porch

What’s Included

Most plan sets include the following:

icon text-secondary-400 included Artist’s rendering of the home,

icon text-secondary-400 included Front/Rear/Left and Right Elevations,

icon text-secondary-400 included Main floor plan, Second or Basement floor plans (if applicable),

icon text-secondary-400 included Foundation plan and detail,

icon text-secondary-400 included Floor framing plan,

icon text-secondary-400 included Roof framing plan, supporting details and

icon text-secondary-400 included Electric layout.

What’s Not Included

These items are  NOT included:

icon text-secondary-400 includedArchitectural or Engineering Stamp - handled locally if required.

icon text-secondary-400 includedSite Plan - handled locally when required.

icon text-secondary-400 includedMechanical Drawings (location of heating and air equipment and ductwork) - your subcontractors handle this.

icon text-secondary-400 includedPlumbing Drawings (drawings showing the actual plumbing pipe sizes and locations) - your subcontractors handle this.

icon text-secondary-400 includedEnergy calculations - handled locally when required.

Related House Plans

Plan Collection
Plan Collection
Plan Collection
Plan#108-1029
Starting at$350
900
Sq Ft
1
Story
0
Bed
1
Bath
1
Car
Plan Collection
Plan Collection
Plan Collection
Plan#132-1371
Starting at$995
998
Sq Ft
1
Story
0
Bed
1
Bath
4
Car
Plan Collection
Plan Collection
Plan Collection
Plan#137-1034
Starting at$550
861
Sq Ft
1
Story
0
Bed
1
Bath
2
Car
View All

Other Plans By This Designer

Plan Collection
Plan Collection
Plan Collection
Plan#108-1923
Starting at$1150
2928
Sq Ft
1
Story
4
Bed
3
Bath
2
Car
Plan Collection
Plan Collection
Plan Collection
Plan#108-1538
Starting at$725
1216
Sq Ft
2
Story
2
Bed
2
Bath
0
Car
Plan Collection
Plan Collection
Plan Collection
Plan#108-2031
Starting at$450
1808
Sq Ft
2
Story
2
Bed
1
Bath
2
Car