3-Car, 1225 Sq Ft Garage Plan with Carport

This is the front rendering of these garage plans.

Images/Plans copyrighted by designer. Photos may reflect homeowner modifications.

About House Plan #108-1076

Sq Ft
1225
Sq Ft
Bedrooms
0
Bedrooms
Bathroom
1
Baths
Half Baths
0
Half Baths
Bedrooms
3
Cars
Bedrooms
1
Stories
Bedrooms
50' 0'
Width
Bedrooms
26
Depth
Starting at$575.00What's included
STEP 1Bedrooms
STEP 2Bedrooms
STEP 3Bedrooms

Subtotal:$0
Plan Collection

How much will it cost to build?

Estimate your costs based on your location and materials.

Free Cost Instant Estimator

Floor Plans

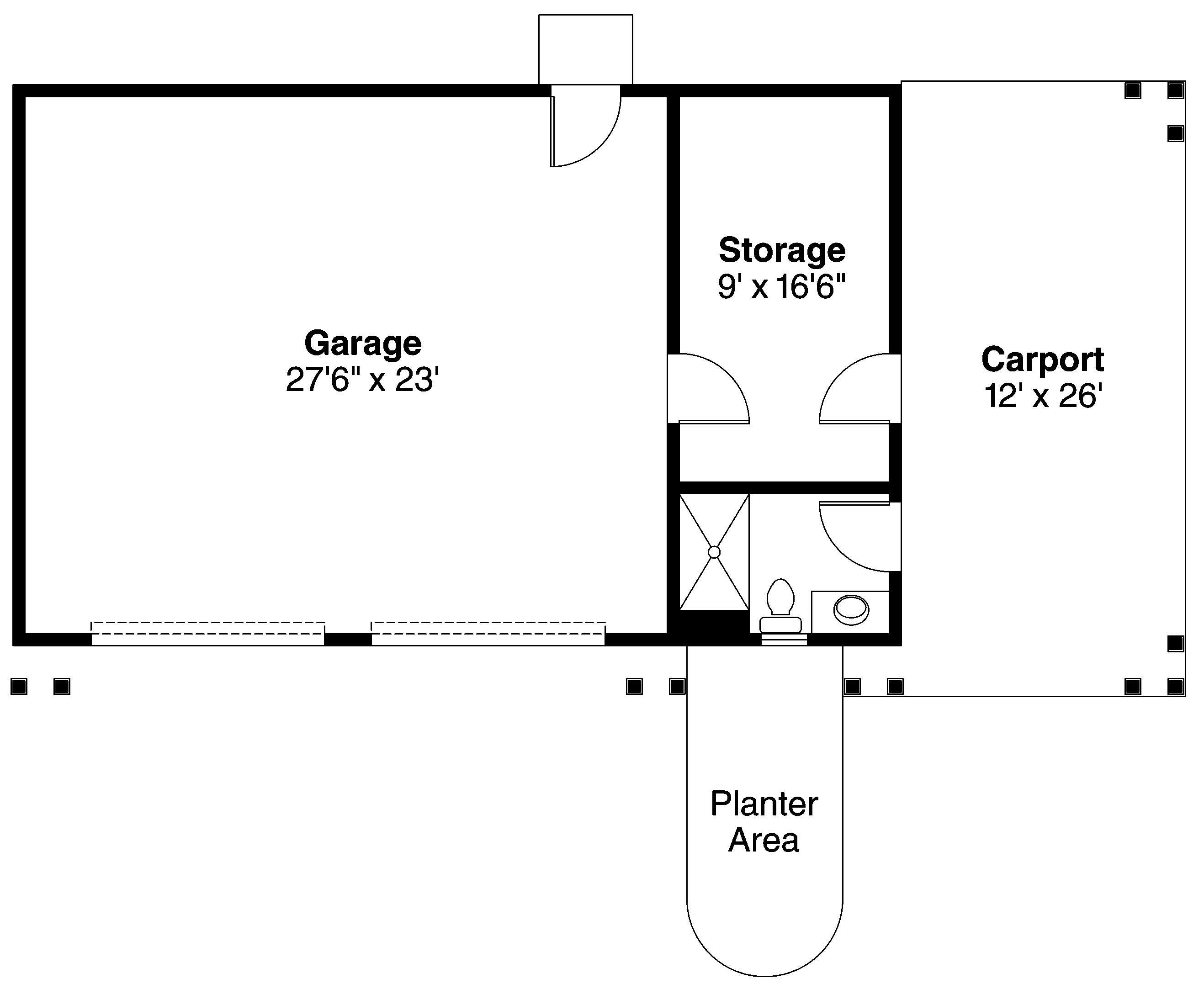
Floor Plan First Story
Floor Plan First Story
Plan Collection

Can I modify this plan?

Yes! This plan can be customized—contact us for a free quote.

Additional Notes from Designer

PLEASE NOTE!! For this designer, The PDF that comes with the PRINT Packages (5 set+PDF and 8 set+PDF) is NOT Modifiable - it is for printing ONLY! PLEASE NOTE!! Optional Foundations (foundations that cost extra money) will take 5-10 business days to complete.

House Plan Description

This craftsman-style garage plan has room for 3 cars (2 in the garage and one in the carport). It also has a spacious storage room and a full bathroom.

Home Details

Summary
Plan #:108-1076
Starting at:$575.00
Floors:1
Bedrooms:0
Full Baths:1
Half Baths:0
Garage:
Square Footage
Heated Area:1225 Sq. Ft.
Unheated Area:
First Floor:240 Sq. Ft.
Garage:985 Sq. Ft.
Dimensions
Ridge Height:19-4' 0''
Architectural Styles
Roof Pitch
8/12
Special Feature
Storage
Garage Type
Attached GarageCourtyard EntryFront Entry
Exterior Wall Framing
2x6

What’s Included

Most plan sets include the following:

icon text-secondary-400 included Artist’s rendering of the home,

icon text-secondary-400 included Front/Rear/Left and Right Elevations,

icon text-secondary-400 included Main floor plan, Second or Basement floor plans (if applicable),

icon text-secondary-400 included Foundation plan and detail,

icon text-secondary-400 included Floor framing plan,

icon text-secondary-400 included Roof framing plan, supporting details and

icon text-secondary-400 included Electric layout.

What’s Not Included

These items are  NOT included:

icon text-secondary-400 includedArchitectural or Engineering Stamp - handled locally if required.

icon text-secondary-400 includedSite Plan - handled locally when required.

icon text-secondary-400 includedMechanical Drawings (location of heating and air equipment and ductwork) - your subcontractors handle this.

icon text-secondary-400 includedPlumbing Drawings (drawings showing the actual plumbing pipe sizes and locations) - your subcontractors handle this.

icon text-secondary-400 includedEnergy calculations - handled locally when required.

Related House Plans

Plan Collection
Plan Collection
Plan Collection
Plan#132-1371
Starting at$995
998
Sq Ft
1
Story
0
Bed
1
Bath
4
Car
Plan Collection
Plan Collection
Plan Collection
Plan#108-1087
Starting at$350
1176
Sq Ft
1
Story
0
Bed
1
Bath
2
Car
Plan Collection
Plan Collection
Plan Collection
Plan#108-2076
Starting at$350
1134
Sq Ft
1
Story
0
Bed
1
Bath
0
Car
View All

Other Plans By This Designer

Plan Collection
Plan Collection
Plan Collection
Plan#108-1923
Starting at$1150
2928
Sq Ft
1
Story
4
Bed
3
Bath
2
Car
Plan Collection
Plan Collection
Plan Collection
Plan#108-1538
Starting at$725
1216
Sq Ft
2
Story
2
Bed
2
Bath
0
Car
Plan Collection
Plan Collection
Plan Collection
Plan#108-2031
Starting at$450
1808
Sq Ft
2
Story
2
Bed
1
Bath
2
Car