Estimate your costs based on your location and materials.
Yes! This plan can be customized—contact us for a free quote.
Yes! This plan can be customized—contact us for a free quote.
For this designer, if you choose optional features such as but not limited to: 2x6 exterior walls, reverse or optional basement, the designer will need an additional 2-5 business days to adjust the plan accordingly. Please keep this in mind when choosing your shipping option. if you would like Express or Priority shipping, the designer will ship the plan to you using the method you choose but you will still have the 2-5 business day waiting period BEFORE they ship! This designer does not offer Framing. Please feel free to contact us with any questions!
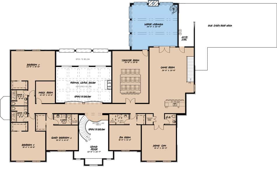
This luxurious European-style Mansion Plan has 10759 square feet, 6 bedrooms, 6 bathrooms, and 2 half baths.
Everyone in your family will surely fall in love with this European-style mansion and make it their top choice. This luxurious, highly attractive, and desirable home gives you a total heated area of 10,759 square feet with 2 separate garages that have a total of 2,183 square feet and a very flexible layout making the possibility of adding a workshop or storage. The multiple roof levels and shapes give this house great curb appeal. You can also enjoy these superb amenities that include:
• Fireplace in the living room and master bedroom suite
Estimate your costs based on your location and materials.
All sales of house plans, modifications, and other products found on this site are final. No refunds or exchanges can be given once your order has begun the fulfillment process. Please see our Policies for additional information.
All plans offered on ThePlanCollection.com are designed to conform to the local building codes when and where the original plan was drawn.
The homes as shown in photographs and renderings may differ from the actual blueprints. For more detailed information, please review the floor plan images herein carefully.
Estimate your costs based on your location and materials.