6-Bedroom, 8662 Sq Ft Colonial Plan with Walk-in Pantry

Main image for house plan # 19448

Images/Plans copyrighted by designer. Photos may reflect homeowner modifications.

About House Plan #156-1686

Sq Ft
8662
Sq Ft
Bedrooms
6
Bedrooms
Bathroom
6
Baths
Half Baths
1
Half Baths
Bedrooms
4
Cars
Bedrooms
2
Stories
Bedrooms
143' 0'
Width
Bedrooms
95
Depth
Starting at$1450.00What's included
STEP 1Bedrooms
STEP 2Bedrooms
STEP 3Bedrooms

Subtotal:$0
Plan Collection

How much will it cost to build?

Estimate your costs based on your location and materials.

Free Cost Instant Estimator

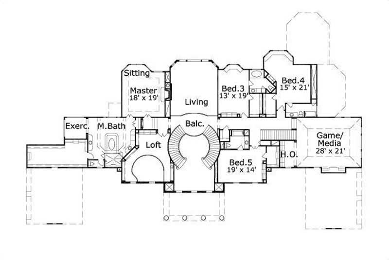
Floor Plans

MAIN LEVEL FLOOR PLAN
MAIN LEVEL FLOOR PLAN
SECOND LEVEL FLOOR PLAN
SECOND LEVEL FLOOR PLAN
Plan Collection

Can I modify this plan?

Yes! This plan can be customized—contact us for a free quote.

Additional Notes from Designer

CAD files may take up to 3 business days to receive - please contact us for availability.

House Plan Description

This majestic, two story, luxurious, Colonial style house plan will be the talk of the neighborhood. The Colonial style can be seen in the exterior, such as the columned entry way. Not only does this house plan have style, it is also extremely functional. The main floor plan primarily consists of the living and dining areas split between the center living area. As you enter the second floor plan up the beautiful staircases on either side of the foyer you eventually are placed on the second floor balcony. 4 bedrooms occupy the second story, including the master bedroom and...

Home Details

Summary
Plan #:156-1686
Starting at:$1450.00
Floors:2
Bedrooms:6
Full Baths:6
Half Baths:1
Garage:
Square Footage
Heated Area:8662 Sq. Ft.
First Floor:4559 Sq. Ft.
Second Floor:4103 Sq. Ft.
Unheated Area:
Dimensions
Ridge Height:38' 0''
Architectural Styles
Exterior Wall Material
Stucco
Roofing Type
Hip

What’s Included

Most plan sets include the following:

icon text-secondary-400 includedExterior,

icon text-secondary-400 includedElevations

icon text-secondary-400 includedFloor Plans

icon text-secondary-400 includedElectrical Layout

icon text-secondary-400 includedBuilding Sections

icon text-secondary-400 includedRoofing Plan

icon text-secondary-400 includedInterior Elevations

icon text-secondary-400 includedGeneral Details

icon text-secondary-400 includedWall Sections

What’s Not Included

These items are  NOT included:

icon text-secondary-400 includedArchitectural or Engineering Stamp - handled locally if required.

icon text-secondary-400 includedSite Plan - handled locally when required.

icon text-secondary-400 includedMechanical Drawings (location of heating and air equipment and ductwork) - your subcontractors handle this.

icon text-secondary-400 includedPlumbing Drawings (drawings showing the actual plumbing pipe sizes and locations) - your subcontractors handle this.

icon text-secondary-400 includedEnergy calculations - handled locally when required.

Related House Plans

Plan Collection
Plan Collection
Plan Collection
Plan#106-1206
Starting at$4095
8210
Sq Ft
2
Story
6
Bed
6.5
Bath
4
Car
Plan Collection
Plan Collection
Plan Collection
Plan#116-1108
Starting at$0
9465
Sq Ft
2
Story
6
Bed
6.5
Bath
6
Car
Plan Collection
Plan Collection
Plan Collection
Plan#120-2531
Starting at$7490
9360
Sq Ft
2
Story
6
Bed
6.5
Bath
4
Car
View All

Other Plans By This Designer

Plan Collection
Plan Collection
Plan Collection
Plan#156-1607
Starting at$1450
5509
Sq Ft
3
Story
6
Bed
6.5
Bath
3
Car
Plan Collection
Plan Collection
Plan Collection
Plan#156-1085
Starting at$1100
3900
Sq Ft
2
Story
4
Bed
3.5
Bath
3
Car
Plan Collection
Plan Collection
Plan Collection
Plan#156-1734
Starting at$1700
6775
Sq Ft
2
Story
6
Bed
4.5
Bath
2
Car