4-Bedroom, 4514 Sq Ft Colonial Plan with Walk In Closet

Main image for house plan # 8686

Images/Plans copyrighted by designer. Photos may reflect homeowner modifications.

About House Plan #134-1186

Sq Ft
4514
Sq Ft
Bedrooms
4
Bedrooms
Bathroom
5
Baths
Half Baths
2
Half Baths
Bedrooms
3
Cars
Bedrooms
2
Stories
Bedrooms
90' 0'
Width
Bedrooms
60
Depth
Starting at$10833.60What's included
STEP 1Bedrooms
STEP 2Bedrooms
STEP 3Bedrooms

Subtotal:$0
Plan Collection

How much will it cost to build?

Estimate your costs based on your location and materials.

Free Cost Instant Estimator

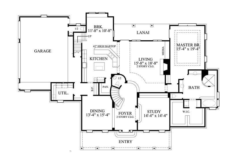
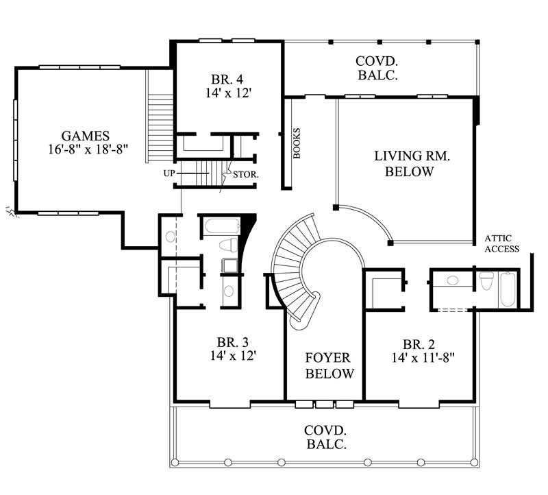
Floor Plans

FLOOR PLAN FIRST STORY
FLOOR PLAN FIRST STORY
FLOOR PLAN SECOND STORY
FLOOR PLAN SECOND STORY
Plan Collection

Can I modify this plan?

Yes! This plan can be customized—contact us for a free quote.

House Plan Description

Home Plan GMLD-514 is a luxury styled two story home with 4 bedrooms, 5 bathrooms, and a 3 car garage. This home plan has 4514 total living square feet.

Home Details

Summary
Plan #:134-1186
Starting at:$10833.60
Floors:2
Bedrooms:4
Full Baths:5
Half Baths:2
Garage:
Square Footage
Heated Area:4514 Sq. Ft.
First Floor:2837 Sq. Ft.
Second Floor:1677 Sq. Ft.
Unheated Area:
Dimensions
Architectural Styles
Ceiling Height
10 Foot Ceiling9 Foot Ceiling
Garage Type
Attached GarageSide Entry
Exterior Wall Framing
2x4

What’s Included

Most plan sets include the following:

icon text-secondary-400 included1/4 scale elevations

icon text-secondary-400 includedFully dimensioned floor plans

icon text-secondary-400 includedFoundation footprint

icon text-secondary-400 includedRoof plan and section details

What’s Not Included

These items are  NOT included:

icon text-secondary-400 includedArchitectural or Engineering Stamp - handled locally if required.

icon text-secondary-400 includedSite Plan - handled locally when required.

icon text-secondary-400 includedMechanical Drawings (location of heating and air equipment and ductwork) - your subcontractors handle this.

icon text-secondary-400 includedPlumbing Drawings (drawings showing the actual plumbing pipe sizes and locations) - your subcontractors handle this.

icon text-secondary-400 includedEnergy calculations - handled locally when required.

Related House Plans

Plan Collection
Plan Collection
Plan Collection
Plan#153-1058
Starting at$1650
4996
Sq Ft
2
Story
4
Bed
5.5
Bath
3
Car
Plan Collection
Plan Collection
Plan Collection
Plan#134-1350
Starting at$0
5303
Sq Ft
2
Story
4
Bed
5.5
Bath
4
Car
Plan Collection
Plan Collection
Plan Collection
Plan#106-1191
Starting at$1695
5613
Sq Ft
2
Story
4
Bed
5
Bath
3
Car
View All

Other Plans By This Designer

Plan Collection
Plan Collection
Plan Collection
Plan#134-1400
Starting at$0
3929
Sq Ft
1
Story
4
Bed
3.5
Bath
3
Car
Plan Collection
Plan Collection
Plan Collection
Plan#134-1027
Starting at$0
6634
Sq Ft
2
Story
4
Bed
5.5
Bath
4
Car
Plan Collection
Plan Collection
Plan Collection
Plan#134-1355
Starting at$0
8617
Sq Ft
2
Story
5
Bed
5.5
Bath
3
Car