4-Bedroom, 2115 Sq Ft French Plan with Covered Front Porch

Front elevation of French home (ThePlanCollection: House Plan #136-1015)

Images/Plans copyrighted by designer. Photos may reflect homeowner modifications.

About House Plan #136-1015

Sq Ft
2115
Sq Ft
Bedrooms
4
Bedrooms
Bathroom
2
Baths
Half Baths
0
Half Baths
Bedrooms
2
Cars
Bedrooms
1
Stories
Bedrooms
66' 5'
Width
Bedrooms
56
Depth
Starting at$1650.00What's included
STEP 1Bedrooms
STEP 2Bedrooms
STEP 3Bedrooms

Subtotal:$0
Plan Collection

How much will it cost to build?

Estimate your costs based on your location and materials.

Free Cost Instant Estimator

Floor Plans

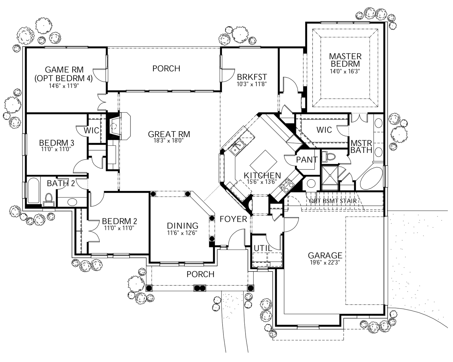
Floor Plan First Story
Floor Plan First Story
Plan Collection

Can I modify this plan?

Yes! This plan can be customized—contact us for a free quote.

Additional Notes from Designer

PLEASE NOTE: This plan may take 1-2 weeks to prepare prior to shipment.

House Plan Description

Brick details accent this home's stone and stucco elevation. A large kitchen with an island opens to the great room and to the breakfast area thru arches. A game room, which can also serve as a fourth bedroom, has an access to a large covered back porch. The master suite is entered thru a sitting area and has a 10' coffered ceiling. A side entry two-car garage can also be modified into a front entry or a three-car garage.

Home Details

Summary
Plan #:136-1015
Starting at:$1650.00
Floors:1
Bedrooms:4
Full Baths:2
Half Baths:0
Garage:
Square Footage
Heated Area:2115 Sq. Ft.
First Floor:2115 Sq. Ft.
Unheated Area:
Dimensions
Width:66' 5''
Architectural Styles
Exterior Wall Material
StuccoRock/Stone
Ceiling Height
10 Foot Ceiling
Special Feature
Game RoomMain Level LaundrySplit Bathroom
Garage Type
Attached Garage
Fireplaces
One Fireplace
Porches and Exterior Features
Covered Front PorchCovered Rear Porch
Master Suite Features
Main Floor MasterMaster BathroomWalk In ClosetSplit Master Bedroom

What’s Included

Most plan sets include the following:

icon text-secondary-400 includedCover Sheet

icon text-secondary-400 includedFloor Plans

icon text-secondary-400 includedExterior Elevations

icon text-secondary-400 includedInterior Elevations

icon text-secondary-400 includedElectrical Layout

icon text-secondary-400 includedSchematic Framing Plan

icon text-secondary-400 includedRoof Plan

icon text-secondary-400 includedFoundation Plan (non-engineered)

icon text-secondary-400 includedGeneric wall sections & details​

What’s Not Included

These items are  NOT included:

icon text-secondary-400 includedArchitectural or Engineering Stamp - handled locally if required.

icon text-secondary-400 includedSite Plan - handled locally when required.

icon text-secondary-400 includedMechanical Drawings (location of heating and air equipment and ductwork) - your subcontractors handle this.

icon text-secondary-400 includedPlumbing Drawings (drawings showing the actual plumbing pipe sizes and locations) - your subcontractors handle this.

icon text-secondary-400 includedEnergy calculations - handled locally when required.

Related House Plans

Plan Collection
Plan Collection
Plan Collection
Plan#142-1170
Starting at$1395
2641
Sq Ft
1
Story
4
Bed
2.5
Bath
2
Car
Plan Collection
Plan Collection
Plan Collection
Plan#142-1204
Starting at$1345
2373
Sq Ft
1
Story
4
Bed
2.5
Bath
2
Car
Plan Collection
Plan Collection
Plan Collection
Plan#141-1148
Starting at$1570
2200
Sq Ft
1
Story
4
Bed
2.5
Bath
2
Car
View All

Other Plans By This Designer

Plan Collection
Plan Collection
Plan Collection
Plan#136-1036
Starting at$1800
2002
Sq Ft
1
Story
3
Bed
2.5
Bath
2
Car
Plan Collection
Plan Collection
Plan Collection
Plan#136-1037
Starting at$1950
2772
Sq Ft
1
Story
4
Bed
3.5
Bath
2
Car
Plan Collection
Plan Collection
Plan Collection
Plan#136-1030
Starting at$2250
3716
Sq Ft
2
Story
4
Bed
4.5
Bath
3
Car